Z przyjemnością przedstawiam naszą ofertę na budowę domu w balu drewnianym, opartego na projekcie Gródek DW 13. Nasza firma specjalizuje się w tworzeniu nowoczesnych i komfortowych domów z bali drewnianych, zarówno całorocznych, jak i letniskowych.
Dom z bali naturalnie okrągłych 30 cm (bez mszenia),
Stan Surowy Zamknięty,
Blachodachówka,
Okna 3 szybowe PCV.
CENA: 251 000 zł netto + 8% VAT
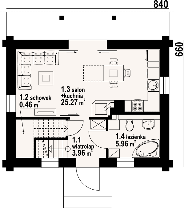
Dom Gródek DW 13 oferuje przestronny i wygodny salon z aneksem kuchennym, kominkiem oraz wyjściem na taras, gdzie będzie można cieszyć się świeżym powietrzem i pięknymi widokami. W skład parteru wchodzi również łazienka, wiatrołap oraz schody prowadzące na poddasze. Na poddaszu znajdują się dwa pokoje, łazienka oraz przestrzeń komunikacyjna. Dodatkowo, oba pokoje mają dostęp do balkonu, który dodaje uroku i stwarza dodatkową przestrzeń do relaksu.
Budując ten dom, stawiamy na solidność, funkcjonalność i oszczędność. Wykorzystujemy wysokiej jakości materiały oraz sprawdzone technologie, które zapewniają nie tylko szybką i tanią budowę, ale również niskie koszty eksploatacji. Poniżej przedstawiamy szczegóły techniczne dotyczące budowy:
Ściany zewnętrzne wykonane z bali litych o grubości 16cm, co zapewnia doskonałą izolację termiczną oraz estetyczny wygląd zewnętrzny.
Ściany wewnętrzne będą wykonane zarówno z bali, jak i w konstrukcji szkieletowej, co pozwoli na elastyczne aranżacje wnętrza i dostosowanie go do indywidualnych potrzeb.
Konstrukcja dachu oparta na krokwiach i jętkach, co gwarantuje trwałość oraz bezpieczeństwo konstrukcyjne.
Pokrycie dachu wykonane będzie z trwałej blachodachówki, która zapewni ochronę przed warunkami atmosferycznymi, oraz rynny PVC dla skutecznego odprowadzania wody.
Okna będą wielokomorowe, trzyszybowe, wykonane z PCV, otwieralno-uchylne, co zapewni doskonałą izolację akustyczną i termiczną, oraz komfort użytkowania.
Montaż wszystkich elementów zostanie wykonany przez naszych doświadczonych i profesjonalnych pracowników, gwarantujących najwyższą jakość i dokładność wykonania.
Pełna prezentacja projektu domu: https://wybieramprojekt.pl/gotowe-projekty/domy-na-zgloszenie/32219/grodek-dw-13-dpr.794
Budowa domów drewnianych 30 lat na rynku










