Śmiałek 2 dr-S (DR-S)
Specyfikacja i charakterstyka projektu
Wizualizacja projektu
Parametry podstawowe
Parametry techniczne projektu
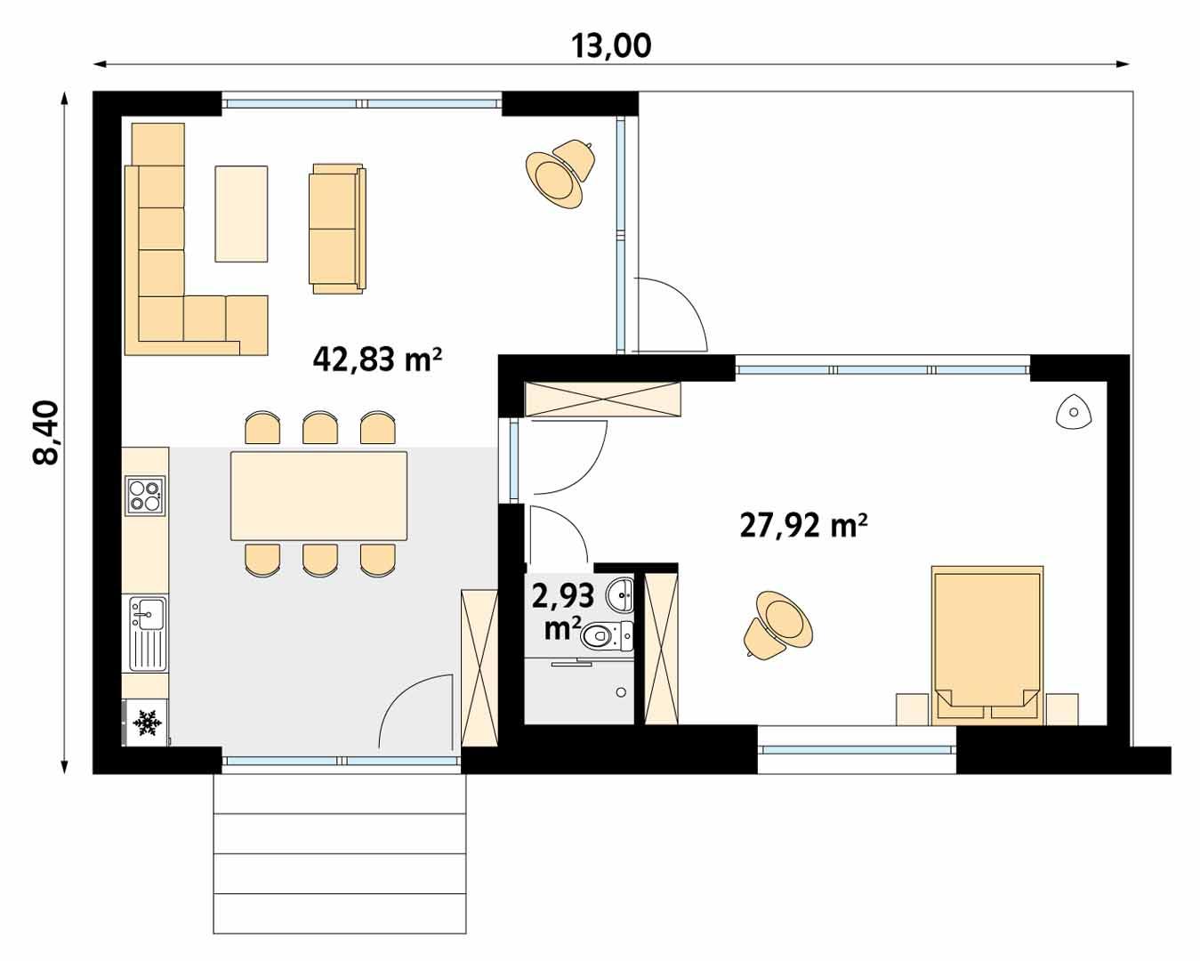
Rzuty projektu - kondygnacje i działka
📂 Uzyskaj rysunki szczegółowe do projektu
Szczegółowy opis projektu
Powiązane kategorie
Informacje szczegółowe
➡ Najczęściej wprowadzane zmiany, warianty i adaptację projektu
💰 Szacunkowy koszt realizacji budowy projektu
🚀 Wycena budowy projektu w technologii szkieletowej/modułowej
Zalety zakupu projektu na wybieramprojekt.pl
Nasze biuro posiada szeroki zakres usług związanych z adaptacją gotowych projektów do warunków konkretnej działki, doradztwem w zakresie kosztorysów i technologii oraz budową domu. Do zakupu każdego projektu dodajemy również obszerny pakiet korzyści.
Pakiet korzyści w zestawie przy zakupie projektu
Uzyskaj informacje o korzystnych kredytach na budowę domu
Skorzystaj z bezpłatnej pomocy eksperta finansowego
💼 Zawartość gotowego projektu architektoniczno-budowlanego
Każdy PROJEKT GOTOWY to wysokiej jakości dokumentacja architektoniczno-techniczna sporządzona wedle wytycznych Prawa Budowlanego, pozwalajaca złożyć dokumentację w urzędzie do zgłoszenia budowy lub do pozwolenia na budowę. Wszystkie nasze projekty gotowe i projekty gotowe autorów, z którymi współpracujemy są zweryfikowane i posiadają zaświadczenie o zgodności projektu z PB. Dostępność i aktualizacje każdego projektu są indywidualnie potwierdzane.
Każdy gotowy projekt jest zgodny z Prawem Budowlanym i zawiera:
- Projekt opisowo-architektoniczny
- Projekt techniczny
- Zgodę na modyfikację projektu i adaptację
- Kopię uprawnień architektów i branżystów
- Projekty domów posiadają charakterystykę energetyczną (brak w projektach garaży i gospodarczych)
Szczegółową zawartość projektu możesz sprawdzić na stronie:
Zawartość projektu gotowego
Każdy projekt gotowy domu jednorodzinnego możemy zanalizować pod kątem zgodności z działką i omówić zmiany planowane w projekcie. Z nami zyskujesz kompleksowo bezpieczeństwo zakupu projektu!
✍🏻 Standardowa zgoda na zmiany do projektu
Co możesz modyfikować?
Standardowa zgoda to szeroki zakres możliwości. Pamiętaj od nas UZYSKASZ INDYWIDUALNĄ DODTAKOWĄ ZGODĘ BEZPŁATNIE na Twoje życzenie.
STANDARDOWO DOŁĄCZANA ZGODY NA ZMIANY obejmuje:
- zmianę funkcji użytkowania pomieszczeń,
- zmiany technologiczne i materiałowe - rodzaj stropu, materiały ścienne, izolacyjne i wykończeniowe, pokrycie dachowe,
- dostosowanie posadowienia budynku do warunków geotechnicznych,
- wykonanie podpiwniczenia budynku,
- zmiany usytuowania ścian działowych,
- zmiana wielkości, ilości i lokalizacji otworów drzwiowych i okiennych,
- zmiana nachylenia kąta połaci dachowej do 5 stopni,
- zmiany w wymiarach zewnętrznych budynku w zakresie 5%,
- zmiana materiałów instalacyjnych i przebiegu instalacji wewnętrznych.
- Warto uzyskać dodatkowa zgodę na zmiany* :
- zmianę sposobu ogrzewania budynku,
- zmianę usytuowania kominów,
- likwidację/doprojektowanie balkonów, podcieni, lukarn,
- zmianę usytuowania i kształtu tarasu,
- podniesienie ścianki kolankowej,
- zmianę wysokości budynku.
w/w zmiany pojawiają się bardzo często już na etapie wykonywania adaptacji, czy też realizacji budowy.
Potrzebujesz więcej informacji technicznych dotyczących projektu, by zamówić projekt domu, zapraszamy. Informację dotyczące warunków zakupu i zwrotów dostępne są na stronie Regulaminu, o szczegółach dotyczących czasu realizacji projektu, warunków zakupu i warunków wymian lub zwrotów poinformuje doradca po sprawdzeniu konkretnych warunków zakładanych przez konkretnego autora projektu.
Warunki zwrotów
ZWROTY: do 14 dni Każda osoba fizyczna dokonująca zakupu towaru w sklepie internetowym Sprzedającego ma możliwość jego zwrotu w terminie 14 dni od daty otrzymania przesyłki. Osoba fizyczna prowadząca działalność gospodarczą ma prawo do zwrotu towaru w terminie 14 dni, wówczas gdy zakup towaru nie jest bezpośrednio związany z branżą lub specjalizacją, którą ta osoba wykonuje bądź reprezentuje. Towar zakupiony przez osoby prowadzące działalność gospodarczą poza granicami Polski i wysyłany poza granice kraju nie podlega zwrotowi. Prawo do zwrotu towaru nie dotyczy projektów przygotowywanych na indywidualne zamówienie. Projekty są sporządzane w czytelnej technice graficznej, są oprawione w okładkę oraz zabezpieczane plombą oraz hologramem, które świadczą o oryginalności projektu oraz uniemożliwiają jego dekompletację. Wraz z projektem wysyłany jest również egzemplarz okazowy w formacie A4, z którym Kupujący zobowiązuje się zapoznać przed wykorzystaniem projektu architektonicznego. Projekt okazowy umożliwia Kupującemu sprawdzenie zakupionego projektu pod kątem warunków zabudowy oraz dopasowania projektu do działki. Zwrotowi nie podlegają projekty, które zostały wykorzystane. Przez wykorzystanie projektu rozumie się:
- naruszenie hologramów,
- przerwanie plomby,
- rozszycie projektu,
- adaptacja projektu.
W przypadku zwrotu niewykorzystanego projektu należy zwrócić kompletną dokumentację, tj. 3 egzemplarze zaplombowanego projektu architektoniczno-budowlanego oraz 2 egzemplarze zaplombowanego projektu technicznego. Wraz z projektem należy odesłać wszystkie dodatki otrzymane przy jego zakupie. Odsyłany projekt podlega ochronie prawnej na podstawie Ustawy o prawie autorskim i prawach pokrewnych z dnia 04.02.1994 r. (Dz.U.2021.1062, tekst jednolity z dnia 14 czerwca 2021 z późn. zmianami .). Zabronione jest kopiowanie projektu. Rozwiązania architektoniczne zawarte w dokumentacji projektowej nie mogą zostać wykorzystane w celu wykonania projektu budowlanego przez innego projektanta. Zwrot niewykorzystanego projektu w ustawowym terminie 14 dni nie podlega opłacie manipulacyjnej. Wraz z projektem należy przysłać wypełnione i podpisane Oświadczenie o odstąpieniu od umowy
WYMIANA: do 14 dni Każda osoba fizyczna dokonująca zakupu towaru w sklepie internetowym Sprzedającego ma możliwość jego wymiany w terminie do 14 dni od daty otrzymania przesyłki bez opłaty manipulacyjnej. Osoba fizyczna prowadząca działalność gospodarczą ma prawo do wymiany towaru w terminie 14 dni, wówczas gdy zakup towaru nie jest bezpośrednio związany z branżą lub specjalizacją, którą ta osoba wykonuje bądź reprezentuje. Prawo do wymiany towaru przez osoby prowadzące działalność gospodarczą (z wyjątkiem osób wymienionych w pkt. 21) będzie rozpatrywane indywidualnie przez Sprzedającego. Towar zakupiony przez osoby prowadzące działalność gospodarczą poza granicami Polski i wysyłany poza granice kraju nie podlega wymianie. Prawo do wymiany towaru nie dotyczy projektów przygotowywanych na indywidualne zamówienie. Wymianie podlegają projekty, które nie zostały wykorzystane. Przez wykorzystanie projektu rozumie się:
- naruszenie hologramów,
- przerwanie plomby,
- rozszycie projektu,
- adaptacja projektu.
W przypadku wymiany projektu w terminie od 15 do 30 dni od daty otrzymania przesyłki pobierana jest opłata manipulacyjna w wysokości 30% wartości wymienianego projektu
Informacje ogólne dotyczące działania sklepu internetowego zawarte są na stronie Regulaminu






















