Projekt domu Chatka 2 drewniana to jednorodzinny, parterowy dom drewniany z poddaszem użytkowym. Jest to częsty wybór osób, które szukają urokliwego, funkcjonalnego projektu. Z powodzeniem wykorzystywany jest jako dom letni, rekreacyjny jak i całoroczny. Chatka 2 drewniana ma prosta bryłę, więc jego realizacja nie będzie trudna w realizacji oraz zbytnio kosztowna. W tym domu zaplanowano przestrzeń dla 3-4 osobowej rodziny. Powierzchnia użytkowa domu wynosi 64,78 m2(kubatura 264 m3). Chatka 2 drewniana sprawdzi się szczególnie na niewielkiej działce. Dom może powstać na działce o minimalnych wymiarach: 15,04 x 16,50 m.
Chatka 2 drewniana: architektura
W tym projekcie kalenica skierowana jest prostopadle do drogi, co jest istotne ze względu na wymagania określone w planie zagospodarowania przestrzennego. Dom ma delikatną linię i nawiązuje do architektury podhalańskiej. Mimo dominującego stylu, dom ten będzie się dobrze prezentować zarówno w krainie jezior jak i górskim krajobrazie. Całość zwieńczona jest dachem dwuspadowym o kącie nachylenia 50 stopni. Duży i zadaszony balkon od strony ogrodu wraz z szerokim, przeszklonym wejściem dają fantastyczny efekt otwarcia na zieloną, kwiecistą przestrzeń. Strefa wejściowa do budynku jest w przedsionku dołączonym do bocznej ściany. Obszerny taras znajduje się nad frontową ścianą. Na dwóch kolumnach wsparty jest zadaszony balkon. Drewniane elementy architektoniczne dodają całości nadzwyczajny efekt przytulności.
Wnętrza projektu Chatka 2 drewniana
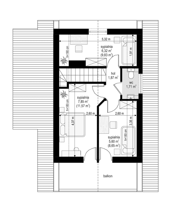
Projekt Chatka 2 drewniana to dom parterowy z poddaszem użytkowym, co sprawia, że jego powierzchnia jest wyraźnie podzielona strefy: dzienną i nocną. Po wejściu do wnętrza wchodzimy do sieni, w której jest miejsce na szafę. Bezpośrednio z sieni dostajemy się do kotłowni lub salonu. Projektanci przewidzieli kotłownię z piecem centralnego ogrzewania. Zwolenników przestronnych wnętrz ucieszy przewidziana w projekcie część dzienna. Otwarta kuchnia na parterze to świetne rozwiązanie dla osób lubiących spędzać czas na rozmowie z domownikami podczas przygotowywania posiłków. Jest to również bardzo praktyczna propozycja dla rodziców, którzy doglądają małych dzieci podczas zabawy. Duży salon z wyeksponowanymi schodami i kominkiem to miejsce wspólnej zabawy oraz spożywania posiłków. Na poddaszu zaplanowane są maksymalnie 3 sypialnie i jedna toaleta. Zadaszony taras jest idealnym miejscem do organizowania spotkań na świeżym powietrzu i chwili relaksu. Zalecana przez architekta technologia zapewnia trwałość i solidność konstrukcji.
Koszty budowy projektu Chatka 2 drewniana
Projekt domu jednorodzinnego Chatka 2 uwzględnia technologię murowaną, co zapewnia trwałość i solidność konstrukcji. Tradycyjna technologia wraz z nowoczesnymi instalacjami korzystnie wpływa na energooszczędność budynku.
Istnieje możliwość dostosowania projektu do standardu NF 40.
W gotowym projekcie Chatka 2 drewniana można wprowadzać zmiany, a pracownia do każdej dokumentacji dołącza bezpłatnie „Zgodę na zmiany”, dzięki której modyfikacje do projektu Chatka 2 drewniana może wprowadzić każdy projektant z uprawnieniami w Polsce.
Rekomendujemy, by do projektu zamówić dodatkowe pakiety rysunków, które poprawiają wygodę użytkowania budynku, rozszerzają funkcjonalność czy zwiększają energooszczędność budynku. Są to na przykład: pakiet odkurzacz centralny, pakiet kotłownia na paliwo stałe, pakiet ogrzewanie podłogowe.
Zapraszamy do zapoznania się z innymi wariantami tego projektu: Chatka, Chatka drewniana, Chatka drewniana 2
MGProjekt posiada plany projektów z odbiciem lustrzanym każdego projektu
Materiały:
- Fundamenty betonowe
- Ściany zewnętrzne szkielet drewniany
- Strop wiązary kratownicowe
- Pokrycie dachu dachówka lub blacha dachówkowa















