Szarejka: Mały domek z wielkim potencjałem - idealny dla rodziny i letniego wypoczynku
Szukasz niedrogiego domu o dużej funkcjonalności? Szarejka to perełka wśród małych domów, która sprawdzi się zarówno jako całoroczny budynek mieszkalny, jak i domek letniskowy.
Prosta bryła i funkcjonalne wnętrze:
- Kompaktowa konstrukcja na planie prostokąta z dwuspadowym dachem zapewnia optymalne wykorzystanie przestrzeni.
- Zadaszenie wiaty garażowej i tarasu tworzy praktyczne strefy na świeżym powietrzu.
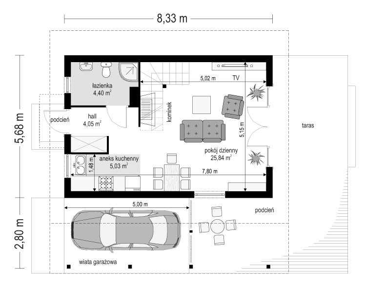
- Przestronny salon z aneksem kuchennym na parterze to idealne miejsce do wspólnego spędzania czasu.
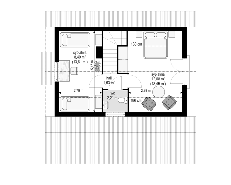
- Dwie sypialnie i toaleta na poddaszu zapewniają komfortowy wypoczynek dla całej rodziny.
- Duże, częściowo zadaszone taras stanowi przedłużenie salonu i stwarza idealne warunki do relaksu w każdych warunkach pogodowych.
Ekonomiczna budowa i eksploatacja:
- Szkieletowa konstrukcja drewniana jest łatwa i szybka w montażu, a także zapewnia doskonałą izolację termiczną.
- Ogrzewanie kominkowe i elektryczne grzejniki gwarantują niskie koszty eksploatacji.
- Bardzo dobre docieplenie przegród zapewnia komfort cieplny i oszczędność energii.
Szukasz swojego azylu? Szarejka czeka na Ciebie!
Szarejka to domek idealny dla każdego, kto pragnie stworzyć własne, przytulne gniazdko. Niezależnie, czy szukasz niedrogiego i funkcjonalnego domu dla swojej małej rodziny, wymarzonego domku letniskowego na weekendowe wypady, czy po prostu cenisz prostotę i komfort, Szarejka spełni Twoje oczekiwania.
Zaufaj nam i zbuduj swój wymarzony mały domek!


















