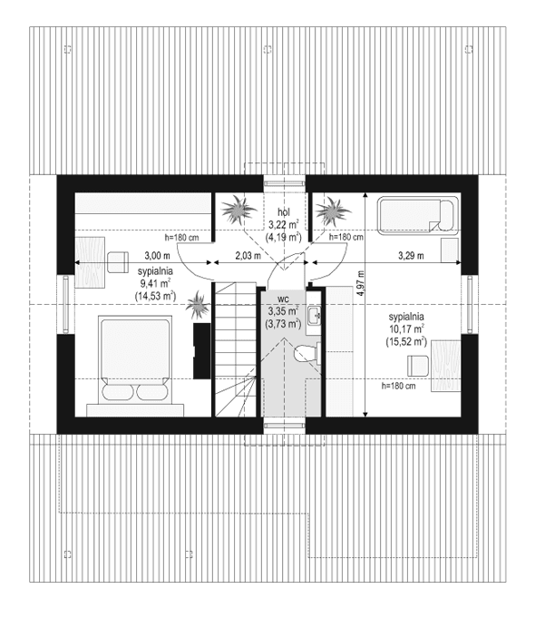
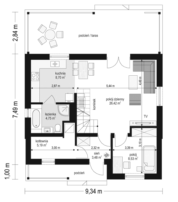
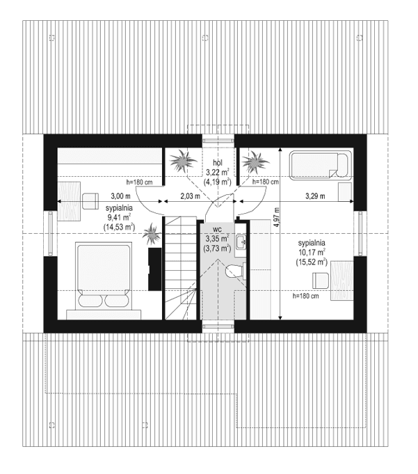
Projekt domu Sosenka 5 to kolejna odsłona projektu z popularnej serii Sosenek z pracowni MG Projekt. Projekt domu Sosenka 5 zaprojektowano dla 3-4 osobowej rodziny, do wykorzystania jako całoroczny dom jednorodzinny. Budynek może też służyć jako letniskowy. Biorąc pod uwagę uzyskaną powierzchnię projekt jest prosty i niedrogi w realizacji. Bryła w projekcie domu Sosenka 5 składa się z zasadniczej części z poddaszem użytkowym, przykrytej dwuspadowym symetrycznym dachem, oraz dwóch dobudówek. Frontowej - mieszczącej pokój na parterze i werandę wejściową, oraz tylnej z dużym zadaszonym tarasem. Zadaszony taras to świetne rozwiązanie powiększające optycznie pokój dzienny. Dach budynku ozdobiono dwiema niewielkimi lukarnami - po jednej na każdej połaci. Wewnątrz, na parterze zaprojektowano przestronny salon z wyeksponowanymi schodami i kominkiem, kuchnię, łazienkę, dodatkowy pokój - na przykład sypialnię dla gości, oraz sień i kotłownię. Na poddaszu zaplanowano dwie sypialnie i toaletę. W domu Sosenka 5 zaprojektowano ogrzewanie centralne z pieca w kotłowni. Pracownia posiada wersję odbicia lustrzanego projektu oraz inne odsłony: tańsza w wykonaniu (projekt domu Sosenka), z tarasem na froncie domu (projekt domu Sosenka 2 ), z innym układem pomieszczeń (projekt domu Sosenka 3), w technologii drewnianej z bocznym tarasem i balkonem (projekt domu Sosenka 4).
Materiały:
- Fundamenty betonowe ławy i ściany fundamentowe z bloczków betonowych
- Ściany zewnętrzne ściany murowane - pustaki gazobetonowe 24 + styropian + tynk cienkowarstwowy
- Strop Teriva
- Elewacje tynk cienkowarstwowy na styropianie
- Pokrycie dachu dachówka















