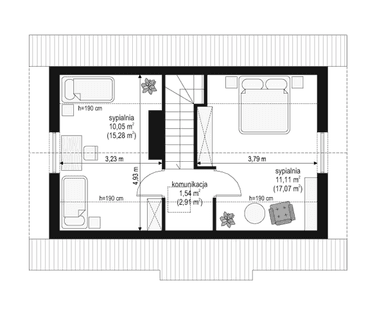
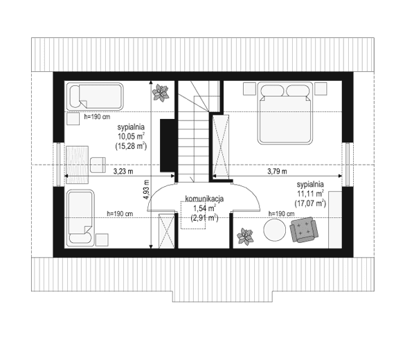
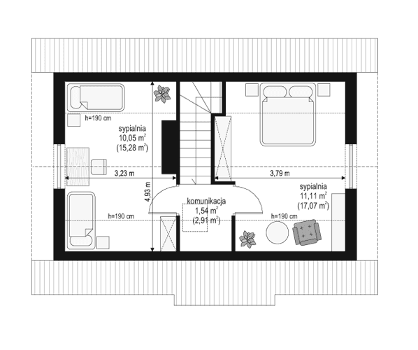
Projekt domu Sosenka 3, to kolejna wersja z serii Sosenek z pracowni MG Projekt. Projekt domku jednorodzinnego mogącego służyć jako budynek całoroczny, ale również letniskowy. Tym razem pracownia prezentuje dom z gankiem wejściowym, oraz pomieszczeniem gospodarczym z osobnym wejściem. Domek Sosenka 3 przystosowany jest do ogrzewania kotłem, oraz dodatkowo kominkiem. Na parterze zaprojektowano pokój dzienny ze schodami, kominkiem i wyjściem na taras, oraz kuchnię i łazienkę. Na poddaszu umieszczono dwa pokoje sypialne o podobnej wielkości. Dom dzięki prostej konstrukcji jest łatwy i niedrogi w budowie. Doskonale będzie spełniać rolę "letniaka", lub małego budynku jednorodzinnego. Pracownia posiada kilka innych ciekawych wersji projektu Sosenka 3 : wersja bazowa (projekt domu Sosenka), wersja z tarasem przed domem (projekt domu Sosenka 2), wersja w technologii drewnianej z balkonem i tarasem na bocznej elewacji (projekt domu Sosenka 4), wariant największy (projekt domu Sosenka 5), wariant najmniejszy w technologii drewnianej (projekt Sosenka drewniana). Sosenka 3 dostępna jest również w odbiciu lustrzanym.
Materiały:
- Fundamenty ławy betonowe, ściany z bloczków
- Ściany zewnętrzne dwuwarstwowe: gazobeton + styropian
- Ściany wewnętrzne gazobeton
- Strop drewniany belkowy
- Elewacje tynk cienkowarstwowy
- Pokrycie dachu dachówka




















