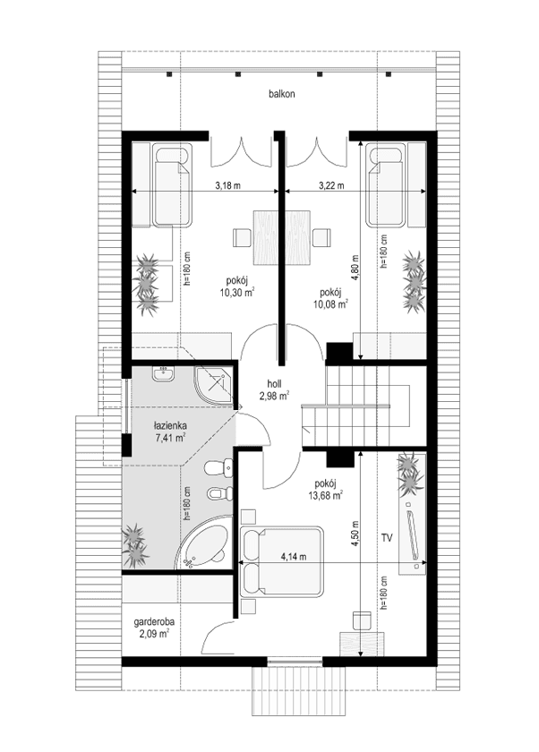
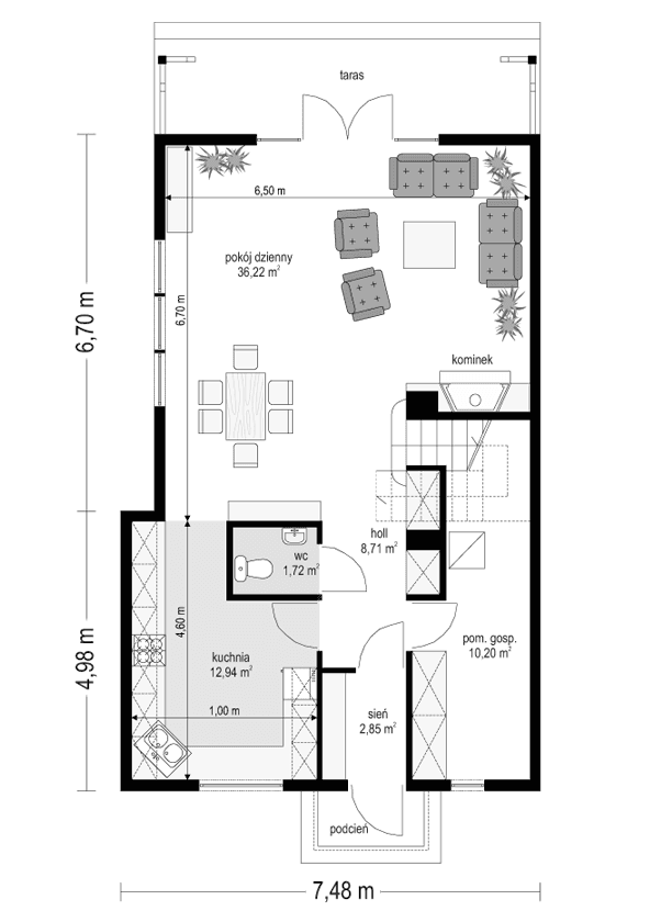
Projekt domu Słowik to parterowy budynek z poddaszem użytkowym. Dom jednorodzinny przeznaczony dla rodziny 4- 5-osobowej, mogący służyć zarówno jako domek jednorodzinny całoroczny jak i letniskowy. Urokliwy, dzięki ciekawym detalom dom ma w rzeczywistości dość prosty układ. Budynek, ze względu na nieskomplikowaną konstrukcję, będzie łatwy w budowie, co odbije się pozytywnie na kosztach inwestycji. Projekt domu Słowik został stworzony w technologii szkieletowej drewnianej. Elewacja domu jest szalowana deskami, ale można również wykonać ją jako tynkową. Domek Słowik dzięki niewielkiej szerokości doskonale wpasuje się również na wąską działkę. Na parterze domu, zaprojektowano jednoprzestrzenną część dzienną, z salonem, holem i częściowo otwartą kuchnią. Z salonu szerokimi drzwiami wychodzimy na częściowo zadaszony taras. W projekcie obok przedsionka umieszczono kotłownię. Na poddaszu znajdują się trzy sypialnie i łazienka. Projekt domu Słowik dostępny jest też w wersji odbicia lustrzanego.
Materiały:
- Fundamenty betonowe wylewane
- Ściany zewnętrzne szkielet drewniany + wełna mineralna + szalówka
- Strop drewniany belkowy
- Elewacje szalówka
- Pokrycie dachu blachodachówka


















