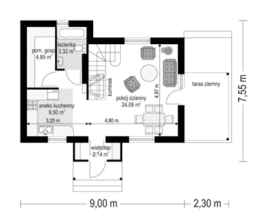
Projekt domu Okruszek jest rozbudowaną wersją projektu domu Sosenka. Budynek powiększony został o pomieszczenie gospodarcze na parterze, przedsionek z daszkiem przed wejściem i zadaszony częściowo taras. Projekt domku Okruszek jest świetnym rozwiązaniem dla małej rodziny, może służyć zarówno jako dom letniskowy jak i całoroczny. Budynek jest tani w budowie, jak i późniejszej eksploatacji. Jego bryła ukształtowana zaprojektowana została z myślą o ewentualnej rozbudowie. Częściowe podpiwniczenie może być pomocne przy konieczności umieszczenia w domu np. hydroforu. Duży salon na parterze z kominkiem, z wyjściem na częściowo zadaszony taras. Na poddaszu zaprojektowano dwie obszerne sypialnie. Pracownia posiada odbicie lustrzane projektu domu Okruszek oraz wersję niepodpiwniczoną lub z całkowitym podpiwniczeniem. Zapraszamy do obejrzenia wszystkich domków z tej serii: https://www.mgprojekt.com.pl/okruszek, https://www.mgprojekt.com.pl/okruszek-wariant-b, https://www.mgprojekt.com.pl/okruszek-wariant-e
Materiały:
- Fundamenty żelbetowe wylewane
- Ściany zewnętrzne bloczki z betonu komórkowego + styropian lub pustaki ceramiczne + styropian
- Strop drewniany lub żelbetowy Teriva
- Elewacje tynk cienkopowłokowy
- Pokrycie dachu dachówka ceramiczna lub blachodachówka


















