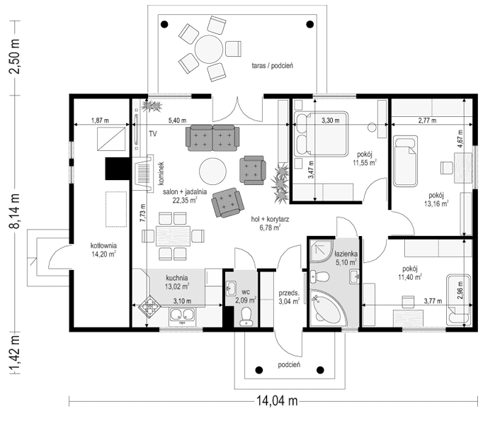
Projekt domu Jaskółka to idealna propozycja zarówno na dom letni, jak i całoroczny. Projekt domku jednorodzinnego Jaskółka z bala litego z wewnętrzną ocieploną wełną mineralną konstrukcją. Budynek Jaskółka zaprojektowany został z myślą o czteroosobowej rodzinie. Architektonicznie domek Jaskółka najlepiej wpasuje się w tereny podmiejskie i wiejskie. Dość prosta bryła przekryta czterospadowym dachem urozmaicona została malowniczym portykiem wejściowym i ogrodową zadaszoną werandą, na której właściciele mogą przesiadywać popołudniami - podziwiając swój ogród. Wnętrze w domu Jaskółka to otwarta część dzienna z przestronną kuchnią, oraz część nocna - bardziej prywatna, z sypialniami domowników. Z boku domu Jaskółka zaprojektowano duże pomieszczenie gospodarcze, przeznaczone na kotłownię. W projekcie domku Jaskółka opcjonalnie przewidziano podpiwniczenie pod pomieszczeniem gospodarczym. Projekt domu Jaskółka, dzięki prostej formie i konstrukcji jest tani w samej budowie jak i późniejszym utrzymaniu. Ten domek jednorodzinny można zamówić również w wersji odbicia lustrzanego.
Materiały:
- Fundamenty betonowe wylewane
- Ściany zewnętrzne bale lite 9 cm + izolacja z wełny mineralnej + szalówka wewnętrzna
- Konstrukcja dachu wiązary drewniane kratownicowe
- Sufit nad parterem podwieszany do wiązarów
- Elewacje bale lite
- Pokrycie dachu blachodachówka lub dachówka

















