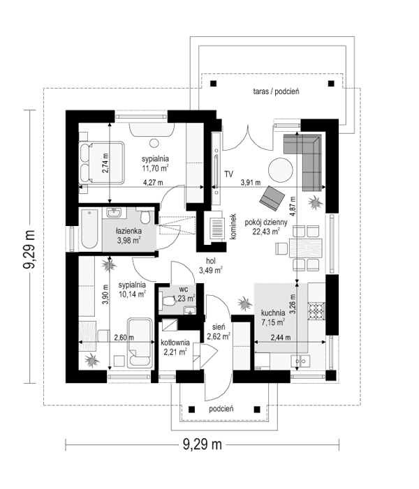
Projekt domu Bambi to nieduży, parterowy domek jednorodzinny, przewidziany dla 3- 4-osobowej rodziny. Budynek przekryty został czterospadowym, kopertowym dachem. Bardzo prosta bryła domu, oparta na planie kwadratu, oraz kopertowym dachu, połączona z dobrze dobranymi proporcjami i ciekawymi detalami architektonicznymi, tworzą spójną, atrakcyjną całość. Domek Bambi jest łatwy w budowie, a dzięki zwartej bryle - niedrogi w ogrzewaniu. W projekcie domu Bambi przestrzeń parteru podzielono na otwartą część dzienną, z kuchnią, salonem i holem, oraz część nocną - z dwiema sypialniami i łazienką. Z salonu szerokimi drzwiami balkonowymi wychodzimy na taras i ogród. Taras budynku jest częściowo zadaszony. W centralnym miejscu domu umiejscowiono kominek, którym alternatywnie można ogrzać całe wnętrze. Z holu wyciąganymi schodkami możemy dostać się na spory strych nad parterem, który wariantowo można zaadaptować na pokoik na poddaszu. Domek może pełnić funkcję budynku jednorodzinnego, ale również domu letniskowego. Pracownia posiada wersję odbicia lustrzanego projektu domu Bambi.
Materiały:
- Fundamenty betonowe ławy i ściany fundamentowe z bloczków betonowych
- Ściany zewnętrzne ściany murowane - pustaki porotherm 25 + styropian + tynk cienkowarstwowy
- Strop Teriva
- Elewacje tynk cienkowarstwowy na styropianie
- Pokrycie dachu dachówka


















