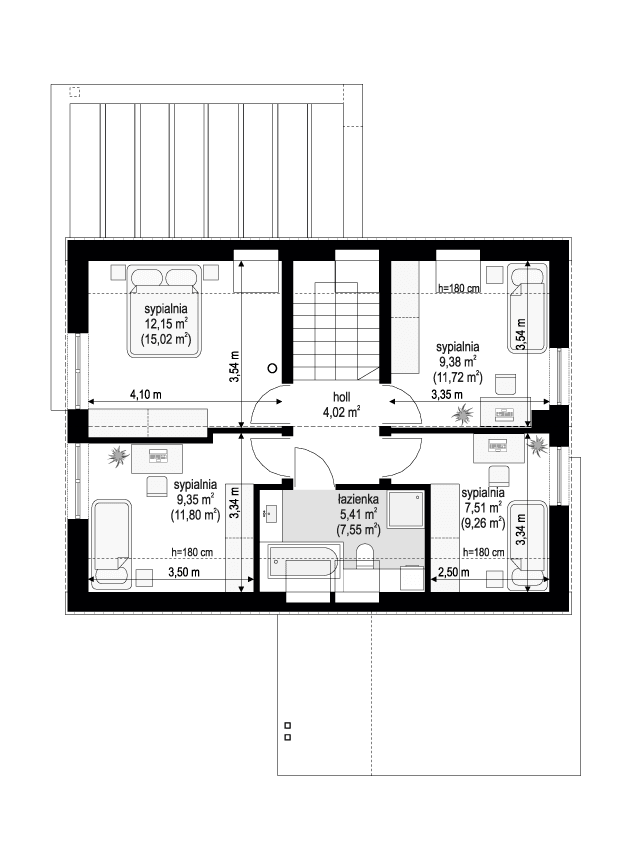
Projekt domu Przyjemny 6, przeznaczony dla 3-5 osobowej rodziny. Projekt domu parterowego z poddaszem użytkowym, zbudowany na prostokątnym rzucie, przykryty dwuspadowym dachem, z jednostanowiskowym garażem. Architektura budynku łączy w sobie tradycyjną bryłę z nowoczesnymi detalami. Dwuspadowy dach koresponduje tutaj z nowoczesnym detalami wykończenia ścian. Przyjemny 6 jest funkcjonalny, ma spokojną stonowaną, ponadczasową stylistykę. W budynku, mimo niewielkiej powierzchni, udało się uzyskać wygodne i funkcjonalne wnętrze pozwalające komfortowe mieszkać minimum czteroosobowej rodzinie. Na parterze zaprojektowano przestrzeń dzienną salonu, holu i kuchni, dodatkowy pokój oraz garaż jednostanowiskowy. Pod schodami przewidziano schowek. Na poddaszu zaprojektowano wariantowo : cztery sypialnie. Na parterze w pokoju dziennym - szerokie przeszklenie balkonowe otwiera wnętrze na taras i ogród. Zaproponowaliśmy tam drzwi przesuwne, ale można je oczywiście zastąpić tańszymi drzwiami balkonowymi z szerokim oknem do ziemi. Daszek nad tarasem to pergola przykryta poliwęglanowymi płytami. Konstrukcja może być drewniana lub aluminiowa. Można też zastąpić pergolę markizą lub żaglem - dowolnie. Nie jest to element stały budynku. „Przyjemnego 6” zaprojektowaliśmy jako dom maksymalnie prosty i łatwy w budowie. Jego prosta konstrukcja będzie łatwym zadaniem dla dowolnej ekipy. Nie ma tutaj dużych podciągów, podrażających konstrukcję elementów stalowych. Prosta bryła bez udziwnień i dobre izolacje termiczne przegród dają w efekcie dom energooszczędny. Instalacja c.o. bazowo zasilana jest z kotła gazowego, ale można też zastosować tutaj kocioł na paliwo stałe, albo pompę ciepła. „Przyjemny 6” to doskonała propozycja dla osób planujących budowę niedużego, funkcjonalnego domu, za skończoną określoną kwotę -bez przesady i bujania w obłokach. Dla Inwestorów wolących mieć dom mniejszy, za to lepiej i do końca wykończony. To projekt dla osób pragnących architektury ponadczasowej, osadzonej w tradycji, w nowoczesnym ujęciu, która nie zestarzeje się wraz z odchodzącymi chwilowymi modami. Zapraszamy !
Materiały:
| Fundamenty: | betonowe ławy i ściany fundamentowe z bloczków betonowych |
| Ściany zewnętrzne: | ściany murowane - bloczki gazobeton + styropian |
| Strop: | betonowy teriva |
| Elewacje: | tynk cienkowarstwowy |
| Pokrycie dachu: | dachówka |















