Domidea 12 w.6 – Przestronność, nowoczesność i maksymalna oszczędność w kompaktowej formie
Marzysz o własnym domu, ale zależy Ci na racjonalizacji kosztów budowy i późniejszej eksploatacji? Projekt Domidea 12 w.6 to idealna odpowiedź na potrzeby współczesnych inwestorów. Ta nowoczesna, kompaktowa parterówka łączy w sobie przemyślaną funkcjonalność z prostą, tanią w realizacji bryłą. To doskonała alternatywa dla mieszkania w bloku, oferująca nieporównywalny komfort życia na własnej działce.
Sztuka optymalizacji kosztów budowy
Dlaczego Domidea 12 w.6 to projekt wybitnie ekonomiczny? Sekretem jest architektura oparta na prostej, prostokątnej bryle przykrytej klasycznym dachem dwuspadowym. Zastosowaliśmy tu niezwykle inteligentne rozwiązanie konstrukcyjne: prefabrykowane wiązary dachowe. Pozwala to na całkowitą rezygnację z wykonania drogiego, ciężkiego i czasochłonnego stropu żelbetowego. Dzięki temu proces budowy ulega znacznemu przyspieszeniu, a koszty materiałów i robocizny drastycznie spadają – i to bez absolutnie żadnych kompromisów na jakości czy bezpieczeństwie konstrukcji.
Wysoki salon – poczuj przestrzeń
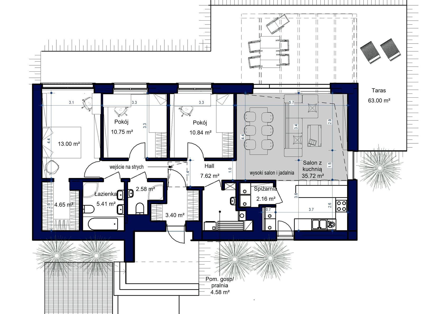
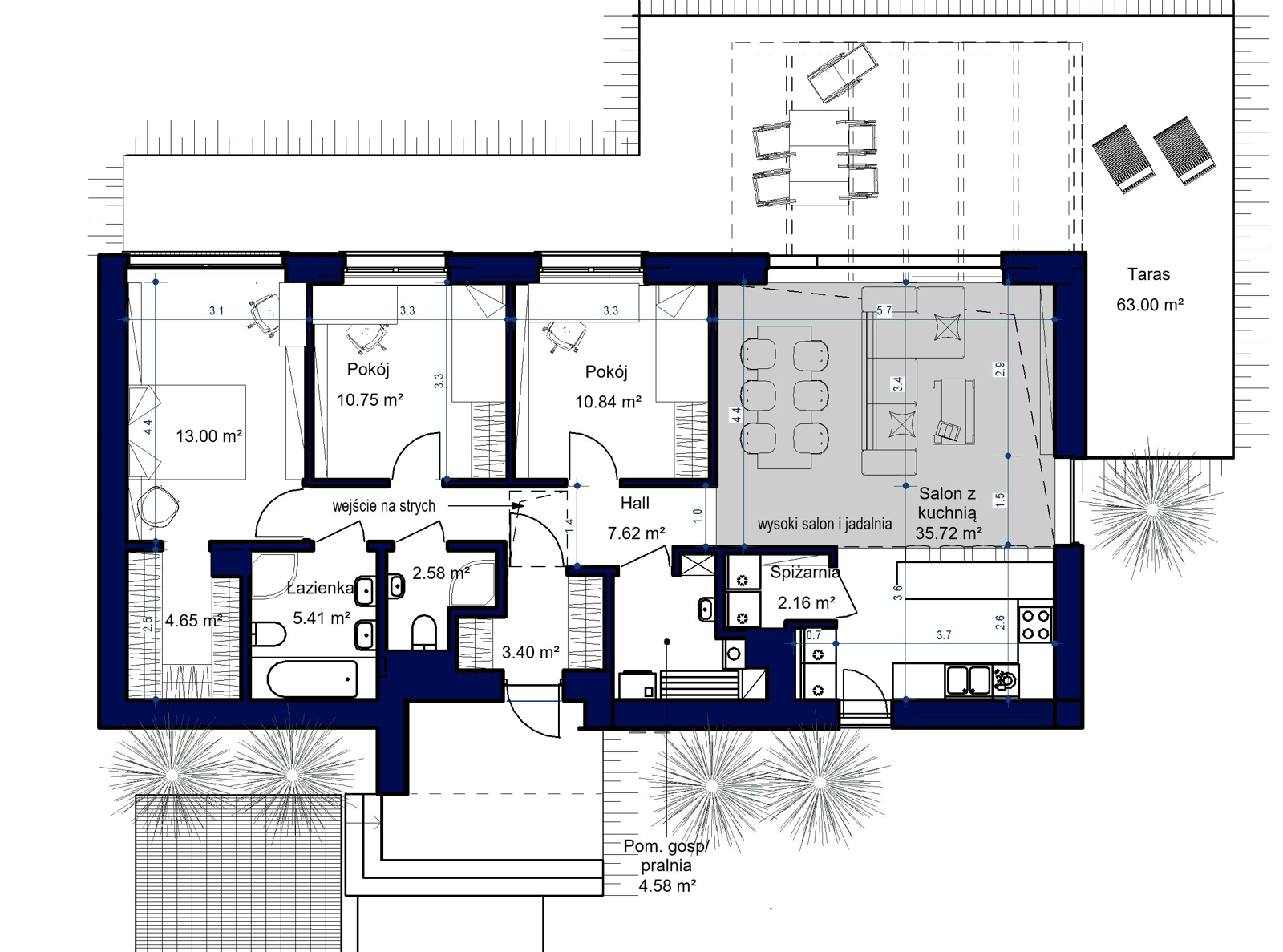
Sercem domu jest imponująca strefa dzienna. Zaprojektowaliśmy tu otwarty, wysoki salon połączony z aneksem kuchennym. Podniesienie sufitu aż do połaci dachu optycznie powiększa to pomieszczenie, nadając wnętrzu niezwykle nowoczesny, „oddechowy” charakter. To idealne miejsce na rodzinny wypoczynek oraz spotkania z przyjaciółmi, które dzięki dużym przeszkleniom płynnie łączy się z tarasem i ogrodem.
Prywatność i wygoda w strefie nocnej
Strefa nocna została wyraźnie oddzielona od gwaru salonu, zapewniając domownikom maksimum prywatności i spokoju. W jej skład wchodzą łącznie 3 ustawne sypialnie, co czyni ten dom idealnym wyborem dla czteroosobowej rodziny. Prawdziwą perełką tego układu jest sypialnia główna (Master Bedroom). Została ona wyposażona w prywatną, wydzieloną garderobę – to niezwykle pożądany detal, który znacząco podnosi codzienny komfort użytkowania i ułatwia utrzymanie idealnego porządku.
Najważniejsze atuty projektu Domidea 12 w.6:
- Prosta i tania w budowie bryła (prostokąt, dach dwuspadowy).
- Brak stropu żelbetowego – wykorzystanie ekonomicznych wiązarów prefabrykowanych.
- Reprezentacyjny, wysoki salon z aneksem kuchennym.
- 3 komfortowe sypialnie, w tym sypialnia Master z własną garderobą.
- Kompaktowy charakter – idealne wykorzystanie każdego metra kwadratowego bez marnowania przestrzeni na zbędne korytarze.
Projekt Domidea 12 w.6 to udowodnienie, że dom tani w budowie może być jednocześnie piękny, przestronny i dopracowany w każdym calu.
Projekty domów z pomysłem









