Projekt domu Domidea 12 w2 – Przestrzeń i ekonomia w jednym
Domidea 12 w2 to kompaktowy dom parterowy, udowadniający, że przemyślany układ to klucz do wygody całej rodziny. Projekt należy do cenionej serii niewielkich domów (od 85 m² do 115 m²), stworzonych z myślą o drastycznym obniżeniu kosztów budowy, przy jednoczesnym maksymalnym wykorzystaniu każdego metra kwadratowego powierzchni. To doskonała, w pełni niezależna alternatywa dla mieszkania w bloku!
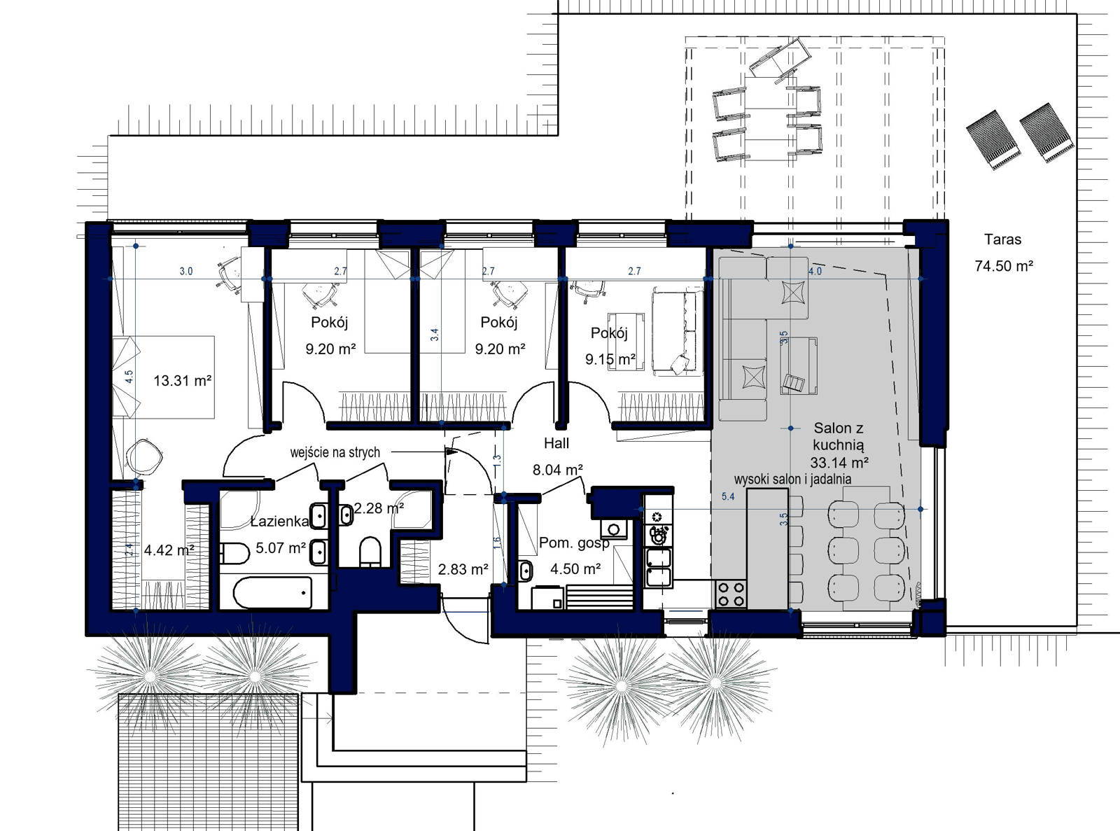
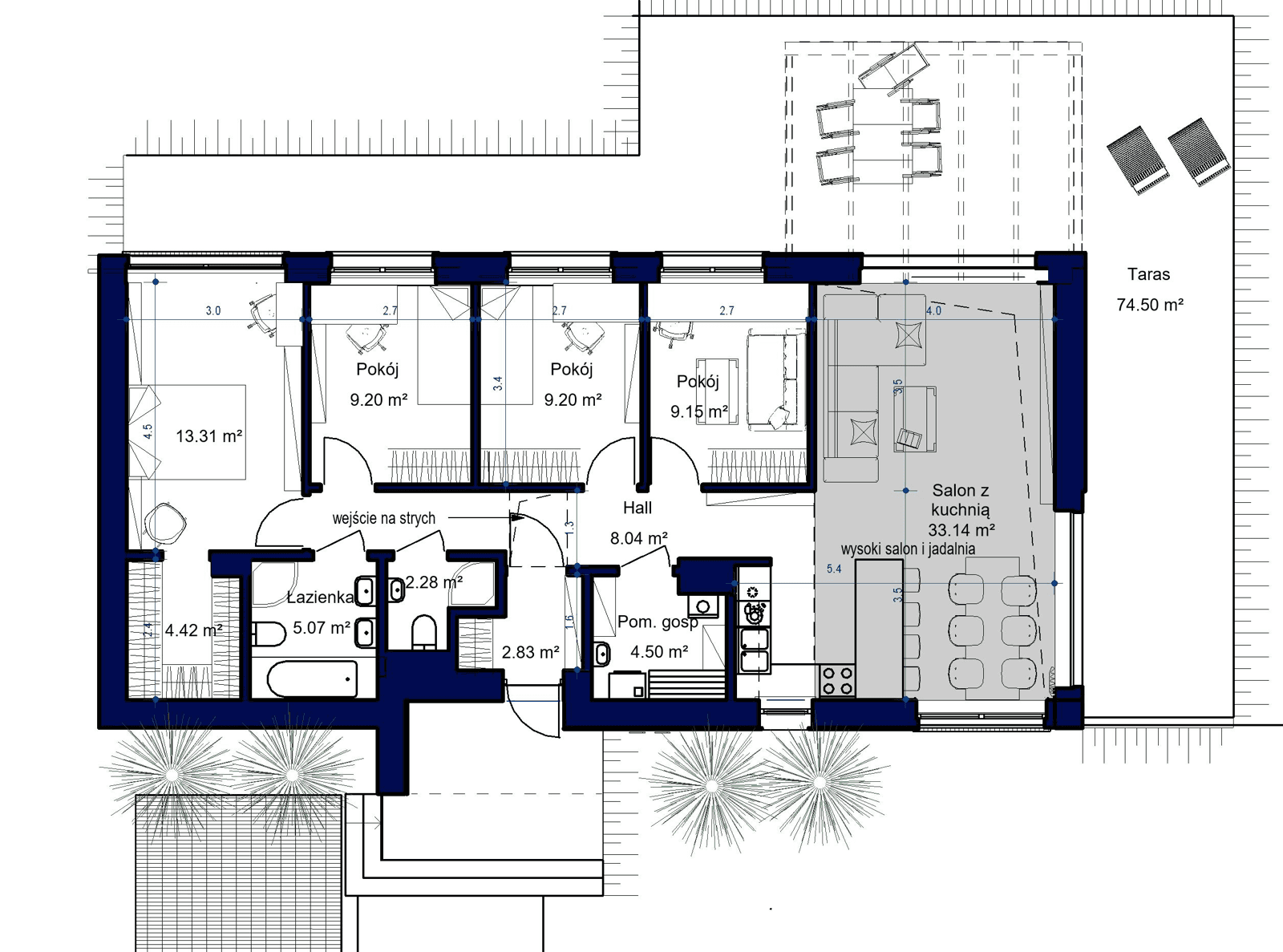
Absolutnym sercem tego projektu jest reprezentacyjna strefa dzienna. Wysoki salon połączony z aneksem kuchennym, otwarty aż po samą połać dachu, potęguje wrażenie ogromnej przestrzeni i nadaje wnętrzu nowoczesny oddech. W intymnej strefie nocnej, pomimo niewielkiego metrażu, zaplanowano aż 4 wygodne pokoje: trzy sypialnie oraz gabinet do pracy zdalnej. Komfort rodziców zapewnia sypialnia typu Master Bedroom z prywatną, pojemną garderobą.
Prosta, prostokątna bryła przekryta klasycznym dachem dwuspadowym to gwarancja taniej realizacji. Zastosowanie lekkich, prefabrykowanych wiązarów dachowych całkowicie eliminuje konieczność wylewania drogiego i czasochłonnego stropu żelbetowego. Dzięki temu budowa przebiega niezwykle szybko, a sam dom jest energooszczędny i tani w codziennym utrzymaniu
Projekty domów z pomysłem








