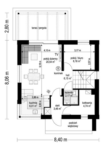
Projekt domu Przyjemny 3, to nieduży dom jednorodzinny o stylistyce nowoczesnej stodoły. Budynek parterowy z poddaszem użytkowym, zaprojektowany na planie prostokąta, przeznaczony dla 3-5osobowej rodziny. Minimalistyczna architektura domu łączy w sobie nowoczesną prostotę, z ciekawie dobranymi materiałami i detalami. Zarówno połacie dachów jak i ściany obłożone są tutaj blachą na rąbek stojący. Z tej jednolitej powierzchni wystają kontrastujące lukarny poddasza i zadaszenie podestu wejściowego. Szczyty domu wykończone są kontrastującą okładziną drewnianą - można ją też zastąpić okładziną włókno-cementową lub po prostu - tynkiem. Nowoczesny styl domu podkreśla jego maksymalną funkcjonalność i prostotę konstrukcji. Najważniejsza jest tutaj ekonomia i zdrowy rozsądek, ale też jakość zastosowanych materiałów i poszczególnych detali. Nie ma zbędnych elementów - wszystko pełni tutaj swoją funkcjonalną rolę. Powierzchnia zabudowy domu jest niższa niż 70 m2, a powierzchnia użytkowa to niespełna 90 m2 - zatem można budować go na zgłoszenie, czyli uproszczone pozwolenie na budowę. Budynek, mimo niewielkich wymiarów i powierzchni, udało się zaprojektować tak, aby normalna pełna rodzina mogła w nim wygodnie i komfortowo mieszkać. Wszystko dzięki prostocie i funkcjonalności wnętrza. Parter to przestrzeń dzienna, połączonych pomieszczeń salonu, holu ze schodami i kuchni, oraz dodatkowy pokój i spora kotłownia. Na poddaszu zaprojektowano trzy pokoje sypialne i łazienkę – dzięki wysokiej ścianie kolankowej i niewielkim skosom – bardziej funkcjonalne. W salonie na uwagę zasługuje szerokie przesuwne okno balkonowe otwierające wnętrze na taras i ogród. Zadaszenie nad tarasem zaproponowaliśmy jako pergolę przykrytą poliwęglanowymi płytami. Można zamienić ją na dowolne inne rozwiązanie : zadaszenie lamelowe, żagiel, lub markizę - wedle decyzji właścicieli. Nie jest to stały element budynku. „Przyjemny 3” to budynek o bardzo prostej konstrukcji - łatwy i niedrogi w budowie. Nie ma tu skomplikowanych lementów, strop jest gęstożebrowy teriva, ściany z bloczków gazobetonowych. Budowa będzie łatwym zadaniem dla dowolnej ekipy. Jedyne trudniejsze zadanie będzie miał tu dekarz, ale trwała ponadczasowa stalowa fasada jest tego warta. Bardzo dobre izolacje termiczne przegród i nowoczesne instalacje, a także nieudziwniona bryła, dają w efekcie dom energooszczędny. Instalacja c.o. bazowo zasilana jest z kotła gazowego, ale można też zastosować tutaj pompę ciepła, albo kocioł na paliwo stałe. „Przyjemny 3” jest propozycją dla Inwestorów zakładających budowę niedużego, funkcjonalnego domu jednorodzinnego, w sensownym budżecie -bez przesady i bujania w obłokach. Dla Inwestorów wolących mieć dom mniejszy, za to lepiej wykończony. To projekt dla osób lubiących architekturę nowoczesną, z ciekawymi oryginalnymi rozwiązaniami, ale też rozsądną, która będzie ponadczasowa i ładnie się zestarzeje z biegiem lat. Zapraszamy !
Materiały:
| Fundamenty: | betonowe ławy i ściany fundamentowe z bloczków betonowych |
| Ściany zewnętrzne: | ściany murowane - bloczki gazobeton + styropian |
| Strop: | betonowy teriva |
| Elewacje: | fasada z blachy na rąbek + deska elewacyjna |
| Pokrycie dachu: | blacha na rąbek |








