Więźba dachowa w systemie prefabrykacji drewnianej w systemie płytki kolczastej MITEK.
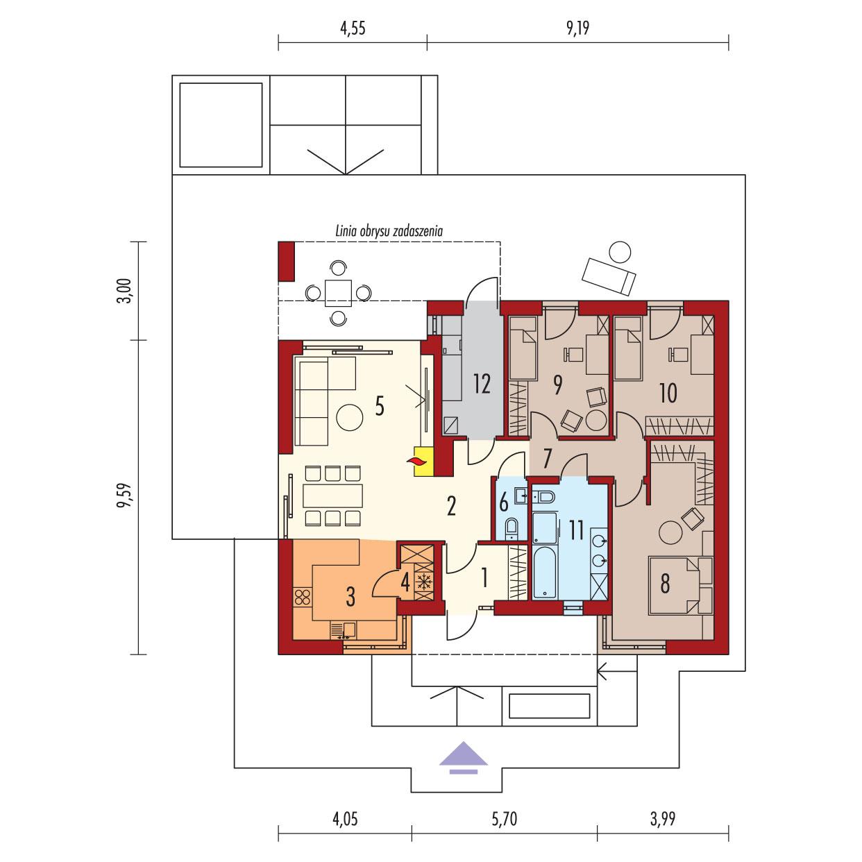
Charakterystyka: Dom parterowy,
niepodpiwniczony
Przeznaczenie: Dom dla 3-4-osobowej
rodziny
Technologia i
konstrukcja:
Ściany zewnętrzne: murowane, dwuwarstwowe,
beton komórkowy firmy Solbet 24 cm, ocieplenie styropian Termo Organika 20 cm
Ściany wewnętrzne: nośne i działowe
murowane, beton komórkowy firmy Solbet 24 cm i 12 cm
Strop: pas dolny wiązara firmy
MiTek stanowi konstrukcję, sufit podwieszony Rigips, ocieplenie wełna mineralna
Isover 30 cm
Dach: blacha na rąbek stojący, wiązary dachowe
prefabrykowane firmy MiTek
Rozwiązania instalacyjne:
Ogrzewanie: kocioł gazowy
kondensacyjny firmy Viessmann, rozprowadzenie ciepła: grzejniki firmy Purmo
Wentylacja: grawitacyjna
OZE: kolektory słoneczne firmy Viessmann
Dodatkowo: stacja uzdatniania wody firmy Viessmann
Wykończenie:
Elewacje: tynk cienkowarstwowy
mineralny w kolorze białym TO-PA 001 z palety firmy Termo Organika okładzina
drewniana
Stolarka: aluminiowa firmy Reynaers Aluminium, drzwi wejściowe oraz
wewnętrzne firmy Hörmann
Otoczenie: kostka betonowa i płyty tarasowe firmy Libet, system tarasowy ProDeck
- deska kompozytowa Terra w kolorze orzech
Wersje domów w serii Mini 24 – zapytaj o dostępność:
-Mini 24 (w. B) - dom z rozwiązaniami
technologicznymi firmy Galeco (odwodnienie połaci dachowej), inne wykończenie
elewacji
-Mini 24 PLUS - instalacje
energooszczędne: pompa ciepła, ogrzewanie podłogowe, wentylacja mechaniczna z
rekuperacją, kolektory słoneczne lub panele fotowoltaiczne, inne wykończenie
elewacji
Istnieją techniczne możliwości wykonania
zmian:
-
podpiwniczenia budynku
- zmiany kąta nachylenia dachu i adaptacji poddasza na cele mieszkalne
- wykonania budynku w technologii szkieletowej
- zbliźniaczenia lub wykonania domu dwulokalowego
- wykonania zabudowy szeregowej
- dokonania zmian funkcjonalnych wg indywidualnych wymagań













