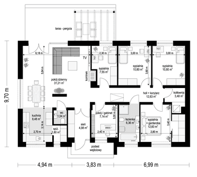
Projekt domu Wymarzony 11 B to jednorodzinny dom parterowy, przeznaczony dla 4-6cioosobowej rodziny z serii projektów „Wymarzony”. Budynek zaprojektowano na planie prostokąta. Przykryty jest symetrycznym czterospadowym dachem z okapami, o kącie 30 stopni. Dom w spokojnej stylistyce, z tradycyjną bryłą i nowoczesnymi detalami, o spójnej nieprzesadzonej kolorystyce. Elewacja frontowa jest symetryczna, z środkowo usytuowanym wejściem, podkreślonym kontrastową cofniętą ścianą i zadaszeniem nad podestem wejściowym. Elewację ogrodową zdobi szerokie przeszklenie otwierające salon na taras, z fragmentem ściany z okładziną drewnianą, oraz częściowym zadaszeniem tarasu. Zadaszenie można wykonać jako pergolę, albo zadaszenie pełne, lub zadaszenie ruchome – na przykład żagiel - dowolnie wedle decyzji właścicieli. Wnętrze domu składa się z części dziennej, z salonem, holem i kuchnią, oraz części prywatnej z pokojami domowników. Do domu wchodzimy przez wygodny przedsionek do holu, a z niego na wprost do części wypoczynkowej salonu ze ścianą telewizyjno-kominkową i wyjściem na taras, natomiast na lewo - do kuchni i jadalni. Kuchnia posiada niewielka spiżarnię, oraz duże okno z widokiem na front posesji. Część z pokojami domowników to w sumie 5 pokoi, w tym : sypialnia master z własną garderobą, dwie sypialnie dzieci plus dodatkowy pokój –np. sypialnia, oraz gabinet / biuro domowe. Dodatkowo duża łazienka i pomieszczenie kotłowni. Wnętrze zaprojektowano w sposób umożliwiający łatwe przestawienie ścian działowych i zmianę aranżacji - wielkości i ilości pokoi. Nad parterem do dyspozycji mamy dużą przestrzeń strychową do dowolnej adaptacji i wykorzystania. W domu nie przewidziano wbudowanego garażu, aby nie marnować cennej powierzchni użytkowej. W budynku zastosowano nowoczesne materiały i technologie, energooszczędne instalacje i dobre izolacje przegród zewnętrznych. Dzięki temu koszt późniejszej eksploatacji będzie niski. Dom ma prostą konstrukcję i będzie łatwy i niedrogi w budowie. Wymarzony 11 B to propozycja dla osób myślących o budowie komfortowego domu parterowego, o ładnej bryle z czterospadowym dachem, o ponadczasowej architekturze - bez udziwnień. Domu, o nieprzesadzonej skali, ale w którym można poczuć przestrzeń i wygodę. W końcu po to buduje się dom jednorodzinny. Zapraszamy !
Materiały:
| Fundamenty: | betonowe ławy i ściany fundamentowe z bloczków betonowych |
| Ściany zewnętrzne: | ściany murowane - bloczki gazobeton + styropian |
| Strop: | monolityczny betonowy |
| Elewacje: | tynk cienkowarstwowy |
| Pokrycie dachu: | dachówka |


















