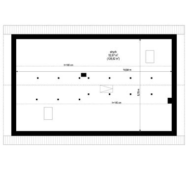
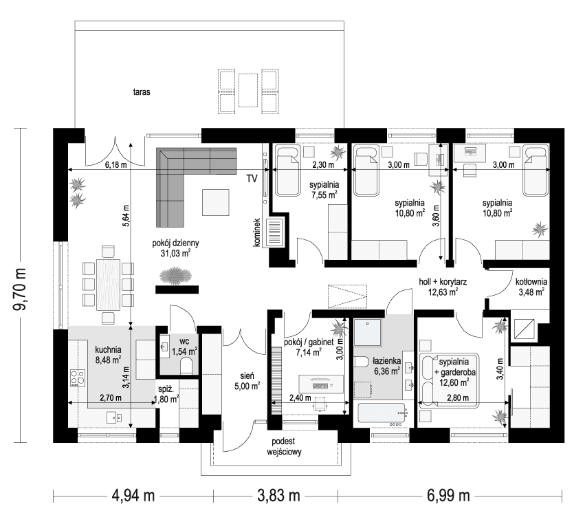
Projekt domu Wymarzony 10 C to dom parterowy, przeznaczony dla 4-6cioosobowej rodziny z serii projektów „Wymarzony”. Budynek zbudowany jest na planie prostokąta, bez załamań i dobudówek. Bryła przykryta jest dwuspadowym dachem z kalenicą równoległą do elewacji frontowej. Dom zaprojektowano w spokojnej współczesnej stylistyce, ze stonowaną kolorystyką i detalami architektonicznymi. Wejście do domu w elewacji frontowej podkreślone jest niewielkim cofnięciem ściany, kontrastową kolorystyką i daszkiem frontowym. Elewacja frontowa jest niemal symetryczna, z podestem wejściowym na środku. Od strony ogrodowej najważniejszą rolę gra taras i szerokie przeszklone wyjście z pokoju dziennego na otaczający ogród. Zadaszenie nad tarasem można wykonać dowolne - wedle uznania Inwestorów. Może to być markiza, albo lekkie zadaszenie, pergola, czy żagiel. W domu celowo nie przewidziano garażu, aby nie zabierać użytkownikom cennej powierzchni użytkowej. Wnętrze budynku podzielono na część dzienną - z salonem, holem i kuchnią, oraz część z pokojami sypialnymi. Przestrzeń dzienna ma wydzielone strefy. Do domu wchodzimy przez wygodny przedsionek z szafami do holu, z niego na wprost do części wypoczynkowej salonu, a na lewo do kuchni i jadalni. Kuchnia posiada niewielka spiżarnię, a za ścianą korytarza mieści się toaleta. Część z pokojami domowników to w sumie 5 pokoi, w tym : sypialnia master z własną garderobą, dwie sypialnie dzieci i dodatkowy pokój - dodatkowa sypialnia, oraz pokój gabinet/biuro domowe. Dodatkowo mamy tutaj dużą łazienkę i pomieszczenie kotłowni. Wnętrze domu urządzono z pewnym zapasem. Dodatkowe pokoje można wykorzystać w różny sposób. Można też bardzo łatwo przestawiać ściany działowe, zmieniając ilość i wielkość pomieszczeń. Nad parterem do dyspozycji mamy dużą przestrzeń strychową do dowolnej adaptacji i wykorzystania. W budynku zastosowano nowoczesne materiały i technologie, energooszczędne instalacje i dobre izolacje przegród zewnętrznych. Dzięki temu koszt późniejszej eksploatacji będzie niski. Dom ma prostą konstrukcję i będzie łatwy i niedrogi w budowie. Wymarzony 10 C to propozycja dla osób planujących budowę wygodnego domu parterowego, o prostej bryle bez udziwnień, o ponadczasowej architekturze. Domu który ma trochę więcej przestrzeni niż 70-80 metrowe wyliczone co do centymetra domy - po to, żeby mieć możliwość dostosowania wnętrza nie tylko do odstawowych funkcji, ale żeby zostawić dla siebie jeszcze szansą na odrobinę szaleństwa we własnym domu i żeby poczuć trochę tą przestrzeń. W końcu po to buduje się dom jednorodzinny. Zapraszamy !
Materiały:
| Fundamenty: | betonowe ławy i ściany fundamentowe z bloczków betonowych |
| Ściany zewnętrzne: | ściany murowane - bloczki gazobeton + styropian |
| Strop: | monolityczny betonowy |
| Elewacje: | tynk cienkowarstwowy |
| Pokrycie dachu: | dachówka |


















