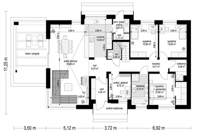
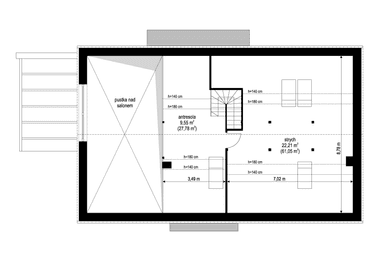
Projekt domu Wymarzony 9 C jest wersją wariantową projektu domu jednorodzinnego z serii „Wymarzony”. Budynek przeznaczony dla 3-4osobowej rodziny. Bryła domu zaprojektowana została na planie prostokąta, przykrytego dwuspadowym bezokapowym dachem. Układ funkcjonalny to salon z antresolą, trzy pokoje sypialne i gabinet, oraz przestrzeń strychowa nad parterem. W budynku nie przewidziano garażu, natomiast są dwa pomieszczenia gospodarcze : spiżarnia i pralnia, oraz kotłownia. Minimalistyczna architektura budynku została zestawiona z wykończeniem fasad w płytce klinkierowej, dzięki czemu dom zyskał bardziej oryginalny wygląd i styl, oraz podkreślenie trwałości solidności. Duże przeszklenia, a w szczególności okna salonu urozmaicają bryłę i otwierają przestrzennie wnętrze na otaczający dom ogród. Salon, z dużymi oknami i otwarciem sufitu aż do kalenicy dachu, sprawia wrażenie dużo większego pomieszczenia. Dodatkowo łączy się przestrzennie z kuchnią z wyspą i z holem. W części prywatnej przewidziano trzy sypialnie, w tym sypialnię master z własną garderobą, oraz pokój do pracy – domowe biuro. Nad parterem znajduje się obszerna przestrzeń strychowa, która może pozostać strychem, albo można ją dowolnie wykorzystać. W budynku zastosowano nowoczesne materiały i technologie, energooszczędne instalacje i dobre izolacje przegród zewnętrznych, dzięki czemu będzie on niedrogi w utrzymaniu i łatwy w eksploatacji. Konstrukcja domu jest prosta i nie będzie problematyczna w budowie. „Wymarzony 9 C” to propozycja dla Inwestorów planujących realizację komfortowego domu parterowego, funkcjonalnego, o sensownej skali i nowoczesnej architekturze, z ciekawą ceramiczną elewacją, wyróżniającego go od masowo budowanych tynkowanych domów. Zapraszamy !
Materiały:
| Fundamenty: | betonowe ławy i ściany fundamentowe z bloczków betonowych |
| Ściany zewnętrzne: | ściany murowane - bloczki gazobeton + styropian |
| Strop: | monolityczny betonowy |
| Elewacje: | płytki klinkierowe |
| Pokrycie dachu: | dachówka |


















