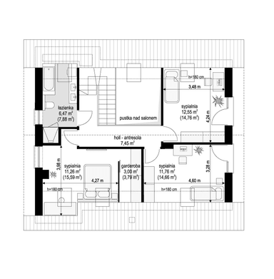
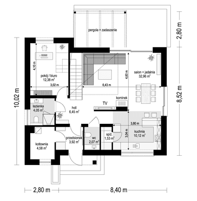
Projekt domu Zefir 2 to nieco mniejsza wersja wariantowa popularnego „Zefira” – parterowy dom jednorodzinny z poddaszem użytkowym, przeznaczony dla 4-6 osobowej rodziny. Budynek zaprojektowano jako prostą bryłę na planie prostokąta, zwieńczoną dwuspadowym dachem z okapami, bez udziwnień i podrażających budowę niepotrzebnych elementów. Zefir 2 jest mniejszy i węższy od bazowego projektu - zmieści się na mniejszej działce. Wyrzuciliśmy z bryły domu garaż aby ograniczyć koszt budynku. Architekturę domu tworzą kontrastujące ze sobą białe ściany z grafitowymi wstawkami. Całość daje nowoczesne i czyste połączenie, zmiękczone oknami i podbitkami w kolorze drewna. Elewacja frontowa jest trochę bardziej zamknięta i powściągliwa, natomiast elewacja ogrodowa to przede wszystkim szerokie przeszklone otwarcie salonu na taras. Wnętrze „Zefira 2” podzielono na część dzienną na parterze, oraz pokoje sypialne na poddaszu. Mimo niewielkiej powierzchni użytkowej domu, udało się tutaj zaprojektować otwarcie przestrzenne nad salonem i antresolę, poprawiające atrakcyjność wizualną i poczucie przestronności wnętrza. Do budynku wchodzimy wygodnym przedsionkiem do holu i dalej do pokoju dziennego, z pustką nad schodami i częścią wypoczynkową. Kuchnia jest częściowo oddzielona od reszty wnętrza ścianą telewizyjno-kominkową. Z lewej strony parteru mamy dodatkowy pokój - gabinet lub sypialnię - łazienkę, oraz sporą kotłownię. Na poddaszu zaprojektowano trzy pokoje sypialne i dużą łazienkę. Sypialnia państwa domu ma wydzieloną garderobę. Wysoka ścianka kolankowa pozwala na zminimalizowanie uciążliwych skosów dachu. „Zefir 2” ma prostą konstrukcję – bryłę bez udziwnień, lany strop, dwuspadowy dach. Wszystko zostało zaprojektowane tak, aby uprościć budowę i zracjonalizować wydatki. Budynek zaprojektowano jako energooszczędny, z dobrymi izolacjami przegród i nowoczesnymi instalacjami. „Zefir 2” to doskonała propozycja dla Inwestorów planujących budowę sensownej wielkości domu. Dla osób chcących uzyskać atrakcyjny efekt, nie wydając przy tym fortuny na budowę własnego „M”. Zapraszamy !
Materiały:
- Fundamenty betonowe ławy i ściany fundamentowe z bloczków betonowych
- Ściany zewnętrzne bloczki gazobetonowe + styropian
- Strop monolityczny betonowy
- Elewacje tynk cienkowarstwowy
- Pokrycie dachu dachówka




















