Projekt domu jednorodzinnego Arabeska - opis taniego w budowie domu
Dom Arabeska to tani budynek jednorodzinny z poddaszem użytkowym przykryty dwuspadowym dachem. Jego rozsądna wielkość i bardzo prosta konstrukcja pozwoli na wybudowanie go szybko i relatywnie tanio. Zaletą domu na prostym rzucie i rozplanowanego na dwóch poziomach jest niewielka powierzchnia przegród zewnętrznych. Jeżeli będą starannie docieplone, to także możemy się spodziewać niskich kosztów eksploatacyjnych w przyszłości.Projekty tanich domów z garażem jednostanowiskowym
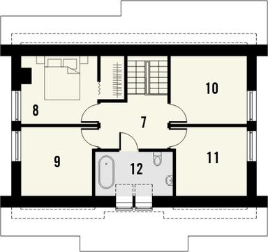
Garaż na jedno auto to zawsze dodatkowe około 20m2 kwadratowych powierzchni, które musimy najpierw wybudować, a potem ogrzać, więc jest to większa kubatura niż zajmuje na przykład duża sypialnia z garderobą. Żeby mimo to utrzymać wydatki na rozsądnym poziomie, garaż wbudowaliśmy w parter, żeby pozostawić prostą i kompaktową bryłę domu, która gwarantuje małe straty ciepła. Część mieszkalna domu Arabeska także jest rozplanowana ekonopmicznie i funkcjonalnie. Na parterze pozostała otwarta przestrzeń strefy dziennej, natomiast poddasze jest podzielone na cztery sypialnie i dużą, widną łazienkę. Dom jednorodzinny Arabeska - materiały i technologie podane w projekcie typowym
Zaproponowaliśmy wymurowanie wszystkich ścian z gazobetonu i docieplenie elewacji styropianem. Strop jest przewidziany w formie gęstożebrowego, a więźba nad poddaszem jest w całości drewniana i opiera się na ścianach zewnętrznych domu, bez żadnych podpór wewnętrznych. Projekt gotowy oferujemy w wersji podstawowej i lustrzanej oraz wariantowo z ogrzewaniem gazowym i grzejnikami, albo z pompą ciepła powietrze-woda i z podłogówką. Dokumentacja zawiera też wentylację mechaniczną z odzyskiem ciepła i panele fotowoltaiczne na dachu.Gotowe projekty


















