Projekt architektoniczno-budowlany Świetlicy modułowej – dach jednospadowy
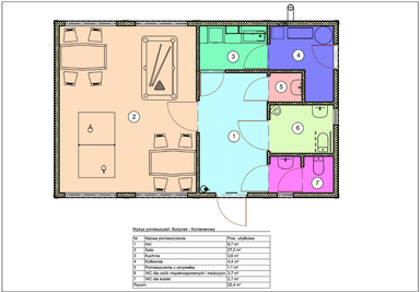
Projektowany budynek o powierzchni użytkowej 52,3m2 może pełnić funkcję np. świetlicy wiejskiej, służącej jako miejsce spotkań, realizacji zainteresowań, rozrywki lub organizacji imprez okolicznościowych. Projekt przedstawia budynek 1 kondygnacji z pomieszczeniami tj. hol, sala, aneks, kotłownia, pomieszczenie gospodarcze ze zlewem, toaleta przystosowana dla osób niepełnosprawnych wraz z toaletą męską, toaleta damska. Główne wejście do budynku na elewacji frontowej, wschodniej. Osobne wejście do kotłowni. Bryła budynku na rzucie prostokąta, pokryta dachem dwuspadowym o kącie nachylenia połaci 1O. Budynek publiczny został zaprojektowany w technologii modułowej z czterech kontenerów o konstrukcji stalowej w całości dostarczanych na plac budowy. Kontenery należy ustawić na uprzednio przygotowanej żelbetowej płycie fundamentowej lub utwardzeniu z kostki brukowej na rzucie w kształcie prostokąta o wymiarach budynku. Cztery kontenery po połączeniu tworzą budynek o długości 9,67m i szerokości 6,06m wysokość od poziomu terenu do okapu 2,65m, a do kalenicy 3,00m. Świetlica wiejska przeznaczona jest do równoczesnego przebywania do 50 osób. Kolorystykę elewacji i stolarki, rodzaj blachy wykończenia elewacji można dostosować do indywidualnych potrzeb klienta.
Dokumentacja w zakresie części Architektoniczno-Budowlanej (PAB) dla projektu budowlanego zawiera kluczowe elementy niezbędne do uzyskania pozwolenia na budowę
Projekt Architektoniczny: Szczegółowo przedstawia rozwiązania architektoniczne budynku. Składa się z:
- Rzutów wszystkich kondygnacji: Pokazują układ funkcjonalny pomieszczeń na każdym poziomie, ich wymiary, powierzchnie, rozmieszczenie drzwi i okien, wyposażenie stałe (np. kominki, schody), a także oznaczenia materiałów wykończeniowych podłóg.
- Rzutu dachu: Przedstawia kształt dachu, jego konstrukcję, spadki, rozmieszczenie kominów, wyłazów dachowych, paneli fotowoltaicznych (jeśli są przewidziane) oraz materiał pokrycia.
- Elewacji: Pokazują wygląd zewnętrzny budynku z każdej strony, z uwzględnieniem materiałów wykończeniowych ścian, stolarki okiennej i drzwiowej, detali architektonicznych oraz kolorystyki.
- Przekrojów: Ilustrują budowę budynku w pionie, pokazując powiązanie poszczególnych kondygnacji, wysokość pomieszczeń, konstrukcję stropów, dachu, fundamentów oraz warstwy przegród budowlanych (ściany, stropy, dach).
- Zestawienia stolarki okiennej i drzwiowej: Zawierają wymiary, typy i ilości okien oraz drzwi zewnętrznych i wewnętrznych.
- Opisu technicznego architektury: Zawiera informacje o zastosowanych materiałach budowlanych i wykończeniowych, rozwiązaniach konstrukcyjnych (ogólnych), charakterystyce energetycznej budynku (w zakresie architektury), a także o spełnieniu wymagań akustycznych i przeciwpożarowych (w zakresie rozwiązań architektonicznych).
Projekty domów jednorodzinnych Nasza pracownia oferuje szeroki wybór projektów domów jednorodzinnych, które spełnią oczekiwania każdego inwestora. W naszej ofercie znajdują się domy parterowe, z poddaszem i piętrowe, o powierzchni użytkowej od 50 do ponad 200 m2. Domy jednorodzinne z naszej pracowni charakteryzują się wysoką funkcjonalnością i estetyką. Przy ich projektowaniu uwzględniliśmy wszystkie potrzeby domowników, dbając o to, aby każdy dom był idealnym miejscem do życia. Projekty w technologii drewnianej Drewniane domy jednorodzinne to coraz popularniejsze rozwiązanie. Drewno jest materiałem naturalnym, który zapewnia komfortowy i zdrowy mikroklimat w domu. Domy drewniane są również energooszczędne, co przekłada się na niższe koszty eksploatacji. W naszej pracowni oferujemy projekty domów drewnianych w różnych stylach, od klasycznych po nowoczesne. Projekty jednorodzinne w technologii tradycyjnej Domy jednorodzinne w technologii tradycyjnej to sprawdzone rozwiązanie, które cieszy się niesłabnącą popularnością. Domy te są trwałe i solidne, a ich budowa jest stosunkowo niedroga. W naszej pracowni oferujemy projekty domów jednorodzinnych w technologii tradycyjnej w różnych stylach, od klasycznych po nowoczesne. Projekty typu nowoczesna stodoła Domy typu nowoczesna stodoła to nowoczesne i stylowe rozwiązanie, które zyskuje coraz więcej zwolenników. Domy te charakteryzują się prostą bryłą i dużymi przeszkleniami, które zapewniają mnóstwo światła dziennego. W naszej pracowni oferujemy projekty domów typu nowoczesna stodoła w różnych rozmiarach i stylach. Domy ekonomiczne Domy ekonomiczne to rozwiązanie dla osób, które chcą wybudować dom bez nadmiernego obciążania swojego budżetu. Domy te są zaprojektowane tak, aby były energooszczędne i łatwe w budowie. W naszej pracowni oferujemy projekty domów ekonomicznych w różnych stylach i rozmiarach.















