W projekcie zastosowano systemy zabudowy ścian działowych i sufitów
podwieszonych Rigips. Więźba dachowa w systemie prefabrykacji drewnianej w
systemie płytki kolczastej Mitek.
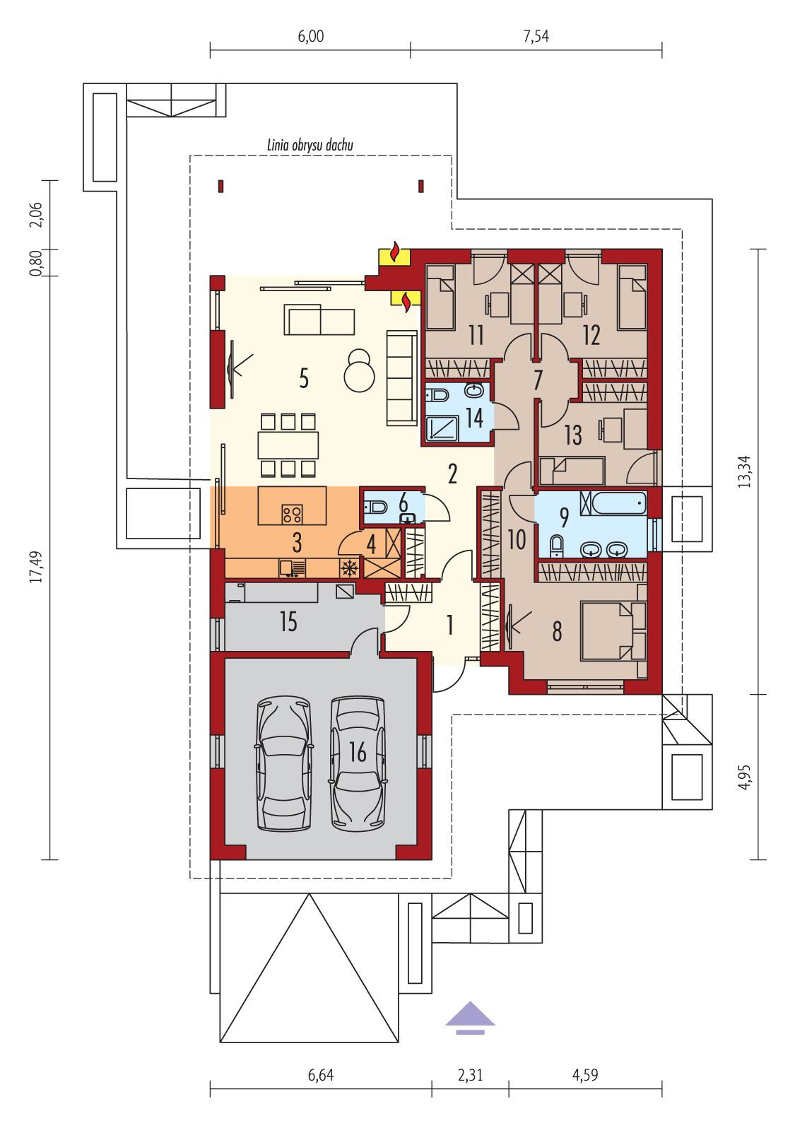
Charakterystyka: Dom parterowy, niepodpiwniczony, z garażem
dwustanowiskowym
Przeznaczenie: Dom dla 4-5-osobowej rodziny
Technologia i konstrukcja:
Ściany zewnętrzne: murowane, dwuwarstwowe, beton komórkowy firmy
Solbet 24 cm, ocieplenie wełna mineralna Fasoterm 35 i Super-Vent gr. 20 cm
Ściany wewnętrzne: ścianki działowe w systemie suchej zabudowy
Rigips 12 cm
Strop: pas dolny wiązara stanowi konstrukcję, sufit podwieszony
Rigips, ocieplenie wełna mineralna Isover Super-Mata 30 cm
Dach: wiązary dachowe prefabrykowane, dachówka ceramiczna płaska typ
Bergamo firmy Röben
Rozwiązania instalacyjne:
Ogrzewanie: kocioł gazowy kondensacyjny firmy
Viessmann, rozprowadzenie ciepła: grzejniki firmy Purmo
Wentylacja: grawitacyjna
OZE: kolektory słoneczne firmy Viessmann
Wykończenie:
Elewacje: okładzina z płytek klinkierowych firmy Röben typ Sydney
antracytowa cieniowana, system elewacji
wentylowanej: deski włóknocementowe Cedral w kolorze drewnopodobnym CL104 jasny
dąb
Stolarka: drewniana, PVC lub aluminiowa, drzwi tarasowe
podnoszono-przesuwne typu HS aluminiowo-drewniane Innoview firmy Fakro, rolety
zewnętrzne w systemie QuadBox firmy BeClever, drzwi wejściowe i brama garażowa firmy Hörmann
Otoczenie: kostka betonowa i płyty tarasowe firmy Libet, system
tarasowy ProDeck - deska kompozytowa Terra w kolorze orzech
Inne: dom spełnia standardy Grupy Saint-Gobain; marka Isover,
Rigips i Weber zapewniają najwyższą jakość wbudowanych produktów: systemy
ociepleń, okładziny ścienne i sufitowe, paroizolacje, systemy podłogowe,
zaprawy, kleje, hydroizolacje
Wersje domów w
serii Simon - zapytaj o dostępność:
- Simon – dom z poddaszem do adaptacji, 3 sypialnie, dach o kącie
nachylenia 30°
- Simon II – dom z poddaszem użytkowym, 3 sypialnie + gabinet, dach
o kącie nachylenia 35°
- Simon III – dom parterowy, 4 sypialnie, dach o kącie nachylenia
25°
- Simon IV – dom parterowy, 3 sypialnie, dach o kącie nachylenia
25°
- Simon (mały) – dom z poddaszem do adaptacji, mniejsza
powierzchnia użytkowa, 3 sypialnie, dach o kącie nachylenia 35°
- Simon III (wiązary) – system suchej zabudowy ścian
działowych Rigips, wiązary prefabrykowane, rozwiązania
materiałowo-technologiczne Grupy Saint-Gobain, układ funkcji jak w domu Simon
III G2, dom parterowy, 4 sypialnie, dach o kącie nachylenia 25°
- Simon IV (bliźniak) – dom parterowy w zabudowie bliźniaczej, 3
sypialnie, dach o kącie nachylenia 25°
- Simon 01 (dwulokalowy) – dom z dwoma mieszkaniami, z poddaszem do
adaptacji, dach o kącie nachylenia 30°
– wszystkie wersje o podobnym układzie funkcji oraz
z inną propozycją wykończenia elewacji
– wszystkie wersje z trzema wariantami garaży: bez garażu, z
garażem jedno- i dwustanowiskowym (wyjątek: dom dwulokalowy – tylko w wariancie
bez garażu)
– odbicie lustrzane do każdej wersji
Wszystkie wersje
domów możliwe w dwóch standardach/wariantach instalacyjnych:
- ENERGO: kocioł gazowy kondensacyjny, grzejniki, wentylacja
grawitacyjna, OZE: kolektory słoneczne
- ENERGO PLUS: pompa ciepła, ogrzewanie podłogowe, wentylacja
mechaniczna, OZE: kolektory słoneczne lub panele fotowoltaiczne
Istnieją techniczne możliwości wykonania zmian:
- podpiwniczenia budynku
- zmiany kąta nachylenia dachu do 30°
- wykonania budynku w technologii szkieletowej
- dokonania zmian funkcjonalnych wg indywidualnych wymagań
Warianty działek dla wersji domu z garażem jednostanowiskowym i bez garażu:















