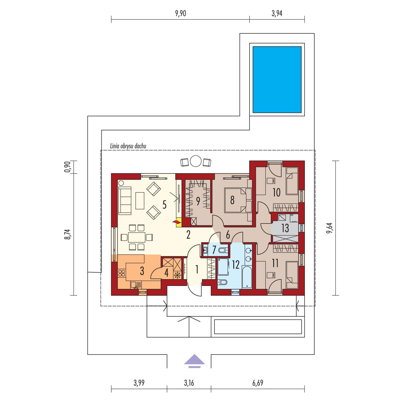
Charakterystyka: Dom parterowy, niepodpiwniczony
Przeznaczenie: Dom dla 3-4-osobowej rodziny
Technologia
i konstrukcja:
Ściany
zewnętrzne: murowane,
dwuwarstwowe, beton komórkowy firmy Solbet 24 cm, ocieplenie styropian Termo
Organika 20 cm
Ściany
wewnętrzne: nośne i
działowe murowane, beton komórkowy firmy Solbet 24 cm i 12 cm
Strop: ocieplenie styropian 30 cm, strop gęstożebrowy
Teriva, ocieplenie wełna mineralna firmy Isover 30 cm
Dach: konstrukcja drewniana, dachówka ceramiczna
płaska Bergamo firmy Röben
Rozwiązania instalacyjne:
Ogrzewanie:
kocioł gazowy kondensacyjny
firmy Viessmann, rozprowadzenie ciepła: grzejniki firmy Purmo
Wentylacja: grawitacyjna
OZE: kolektory słoneczne firmy
Viessmann
Dodatkowo: stacja uzdatniania wody
firmy Viessmann
Wykończenie:
Elewacje:
płytki
klinkierowe CALAIS firmy Röben, okładzina
drewniana w układzie pionowym
Stolarka:
aluminiowa firmy Reynaers
Aluminium
drzwi wejściowe i wewnętrzne firmy Hörmann
Otoczenie: kostka betonowa i płyty tarasowe firmy Libet,
system tarasowy ProDeck - deska kompozytowa Terra w kolorze orzech
Wszystkie wersje domów możliwe w dwóch standardach/wariantach
instalacyjnych:
– ENERGO: kocioł gazowy
kondensacyjny, grzejniki, wentylacja grawitacyjna, OZE: kolektory słoneczne
– ENERGO PLUS: pompa ciepła,
ogrzewanie podłogowe, wentylacja mechaniczna, OZE: kolektory słoneczne lub
panele fotowoltaiczne
Istnieją
techniczne możliwości wykonania zmian:
– podpiwniczenia budynku
– zmiany kąta nachylenia dachu
– wykonania budynku w technologii szkieletowej
– zbliźniaczenia lub wykonania domu dwulokalowego
– dokonania zmian funkcjonalnych wg indywidualnych wymagań















