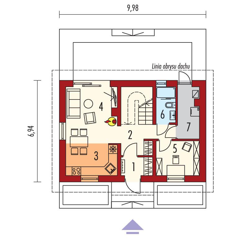
Charakterystyka:
Dom parterowy z poddaszem użytkowym
Przeznaczenie: Dom dla 3-4-osobowej
rodziny
Technologia
i konstrukcja:
Ściany
zewnętrzne: murowane, dwuwarstwowe, beton komórkowy firmy Solbet 24 cm,
ocieplenie styropian Termo Organika 20 cm,
Ściany
wewnętrzne: nośne i działowe murowane, beton komórkowy firmy Solbet 24 cm i 12 cm
Strop:
międzypiętrowy gęstożebrowy Teriva,
Dach:
konstrukcja drewniana, ocieplenie wełna mineralna Isover 30 cm, dachówka ceramiczna
płaska Bergamo firmy Röben
Schody: schody wewnętrzne drewniane
Rozwiązania
instalacyjne:
Ogrzewanie:
kocioł gazowy kondensacyjny firmy Viessmann, rozprowadzenie
ciepła: grzejniki firmy Purmo
Wentylacja:
grawitacyjna
OZE: kolektory słoneczne firmy Viessmann
Dodatkowo: stacja uzdatniania wody firmy Viessmann
Wykończenie:
Elewacje:
tynk cienkowarstwowy mineralny w kolorze białym TO-PA 001 z palety
firmy Termo Organika okładzina drewniana
Stolarka:
drewniana, PVC lub aluminiowa, drzwi tarasowe
podnoszono-przesuwne typu HS aluminiowo-drewniane Innoview firmy Fakro, drzwi
wejściowe, drzwi wewnętrzne firmy Hörmann, rolety zewnętrzne w systemie QuadBox firmy BeClever
Okna
połaciowe: rozwiązania technologiczne firmy Fakro, świetlik dachowy firmy Fakro
Otoczenie: kostka betonowa i płyty tarasowe
firmy Libet, system tarasowy ProDeck - deska kompozytowa Terra w kolorze
orzech, meble ogrodowe firmy B&B Italia
Wersje domów w serii Mini 22 – zapytaj o dostępność:
-
Mini 22 ENERGO PLUS – dach bez okapowy, instalacje
energooszczędne firmy Viessmann: pompa ciepła, wentylacja mechaniczna z
rekuperacją, system fotowoltaiczny oraz ogrzewanie podłogowe firmy Purmo
- wszystkie wersje o podobnym takim samym układzie funkcji oraz z inną
propozycją wykończenia elewacji
- wszystkie wersje dostępne z dachem o kącie nachylenia 30°
- wszystkie wersje z trzema wariantami garaży: bez garażu, z garażem
jedno- i dwustanowiskowym
- odbicie lustrzane do każdej wersji
Wszystkie wersje domów możliwe w dwóch standardach/wariantach
instalacyjnych:
- ENERGO: kocioł gazowy kondensacyjny, grzejniki, wentylacja
grawitacyjna, OZE: kolektory słoneczne
- ENERGO PLUS: pompa ciepła, ogrzewanie podłogowe, wentylacja
mechaniczna, OZE: kolektory słoneczne lub panele fotowoltaiczne
Istnieją techniczne możliwości
wykonania zmian:
- podpiwniczenia budynku
- zmiany kąta nachylenia dachu
- wykonania budynku w technologii szkieletowej
- zbliźniaczenia lub wykonania domu dwulokalowego
- wykonania zabudowy szeregowej
- dokonania zmian funkcjonalnych wg indywidualnych wymagań




















