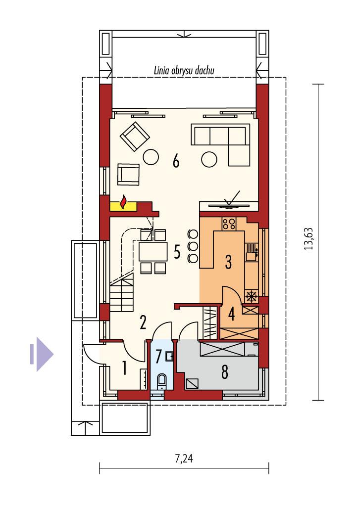
Charakterystyka: Dom piętrowy,
niepodpiwniczony
Przeznaczenie: Dom dla 3-4-osobowej
rodziny
Technologia i
konstrukcja:
Ściany zewnętrzne: murowane,
dwuwarstwowe, beton komórkowy firmy Solbet 24 cm, ocieplenie styropian Termo
Organika 20 cm
Ściany wewnętrzne: nośne i działowe
murowane, beton komórkowy firmy Solbet 24 cm i 12 cm
Strop: międzypiętrowy gęstożebrowy
Teriva
Dach: konstrukcja drewniana,
ocieplenie wełna mineralna Isover 30
cm, dachówka ceramiczna płaska Bergamo firmy Röben, więźba dachowa dostępna również w prefabrykacji drewnianej w systemie płytki kolczastej Mitek
Inne: schody wewnętrzne
drewniane
Rozwiązania
instalacyjne:
Ogrzewanie: kocioł gazowy
kondensacyjny firmy Viessmann, rozprowadzenie ciepła: grzejniki firmy Purmo
Wentylacja: grawitacyjna
OZE: kolektory słoneczne
Wykończenie:
Elewacje: tynk cienkowarstwowy
mineralny w kolorze białym TO-PA001 z palety firmy Termo Organika, okładzina klinkierowa
firmy Röben w kolorze szarym, np. typ Margate, Aarhus, Calais lub Faro
Stolarka: drewniana, PVC lub
aluminiowa, drzwi tarasowe podnoszono-przesuwne typu HS aluminiowo-drewniane
Innowiev firmy Fakro, drzwi zewnętrzne energooszczędne firmy Hörmann
Otoczenie: kostka betonowa i
płyty tarasowe firmy Libet, system tarasowy ProDeck - deska kompozytowa Terra w
kolorze orzech
Wersje w
serii Mika - zapytaj o dostępność:
- Mika, Mika II – domy piętrowe o podobnym układzie funkcjonalnym, z
innymi propozycjami wykończenia elewacji i zagospodarowania otoczenia
- odbicie lustrzane do każdej wersji
Wszystkie wersje domów możliwe w dwóch standardach/wariantach instalacyjnych:
- ENERGO: kocioł gazowy kondensacyjny, kolektory słoneczne, grzejniki, wentylacja grawitacyjna
- ENERGO PLUS: pompa ciepła, ogrzewanie podłogowe, wentylacja
mechaniczna, dodatkowo system solarny lub panele fotowoltaiczne
Istnieją
techniczne możliwości wykonania zmian:
-
podpiwniczenia budynku
- wykonania budynku w technologii szkieletowej
- dokonania zmian funkcjonalnych wg indywidualnych wymagań


















