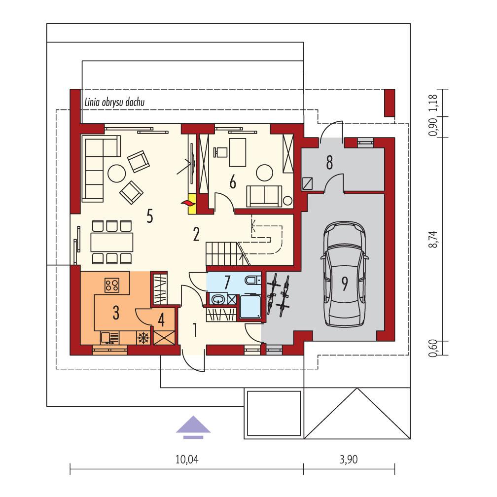
Charakterystyka: Dom parterowy z
poddaszem użytkowym, niepodpiwniczony, z garażem jednostanowiskowym
Przeznaczenie: Dom dla 3-4-osobowej
rodziny
Technologia i
konstrukcja:
Ściany zewnętrzne: murowane,
dwuwarstwowe, beton komórkowy firmy Solbet 24 cm, ocieplenie wełna mineralna
typ Fasoterm 35 firmy Isover 20 cm
Ściany wewnętrzne: nośne i działowe
murowane, beton komórkowy firmy Solbet 24 cm i 12 cm
Strop: międzypiętrowy gęstożebrowy Teriva,
ocieplenie wełna mineralna firmy Isover 30 cm
Dach: konstrukcja drewniana,
ocieplenie wełna mineralna Isover 30
cm, dachówka ceramiczna płaska Bergamo firmy Röben,
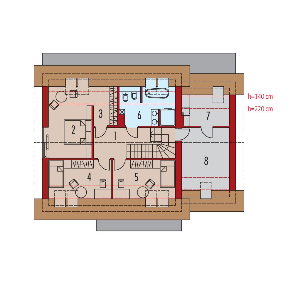
Schody: schody wewnętrzne
drewniane
Inne: Dom spełnia standardy Grupy Saint-Gobain; Marka Isover, Rigips i Weber zapewniają najwyższą jakość wbudowanych produktów: systemy ociepleń, okładziny ścienne i sufitowe, paroizolacje, systemy podłogowe, zaprawy, kleje, hydroizolacje
Rozwiązania instalacyjne:
Ogrzewanie: kocioł gazowy
kondensacyjny firmy Viessmann, rozprowadzenie ciepła: grzejniki firmy Purmo
Wentylacja: grawitacyjna
OZE: kolektory słoneczne firmy Viessmann
Dodatkowo: stacja uzdatniania wody firmy Viessmann
Wykończenie:
Elewacje: tynk cienkowarstwowy
mineralny w kolorze białym TO-PA 001 z palety firmy Termo Organika Weber, okładzina
- system elewacji wentylowanej: deski włóknocementowe Cedral w kolorze CL104
Stolarka: drewniana, PVC lub
aluminiowa, drzwi tarasowe podnoszono-przesuwne typu HS
aluminiowo-drewniane Innowiev firmy Fakro, drzwi wejściowe i brama garażowa firmy Hörmann, rolety
zewnętrzne w systemie QuadBox firmy BeClever
Okna połaciowe: rozwiązania
technologiczne i wyłaz dachowy firmy Fakro
Otoczenie: kostka betonowa i
płyty tarasowe firmy Libet, system tarasowy ProDeck - deska kompozytowa Terra w
kolorze orzech, meble ogrodowe firmy B&B Italia
Wersje domów w serii Iga – zapytaj o dostępność:
- Iga
II G1 – wersja
podstawowa, standardowe instalacje: kocioł gazowy kondensacyjny, wentylacja
grawitacyjna, dom z rozwiązaniami materiałowo-technologicznymi Grupy
Saint-Gobain
-
IGA III G1 ENERGO PLUS reco - instalacje energooszczędne firmy Vaillant: pompa
ciepła, wentylacja mechaniczna z rekuperacją, system fotowoltaiczny oraz
ogrzewanie podłogowe firmy Purmo, podobny układ funkcjonalny, inne wykończenie
elewacji, dom z rozwiązaniami materiałowo-technologicznymi Grupy Saint-Gobain
- wszystkie wersje o podobnym układzie funkcji oraz z inną propozycją
wykończenia elewacji
- wszystkie wersje z trzema wariantami garaży: bez garażu, z garażem
jedno- i dwustanowiskowym
- odbicie lustrzane do każdej wersji
Istnieją techniczne możliwości wykonania
zmian:
-
podpiwniczenia budynku
- wykonania budynku w technologii szkieletowej
- zbliźniaczenia lub wykonania domu dwulokalowego
- dokonania zmian funkcjonalnych wg indywidualnych wymagań




















