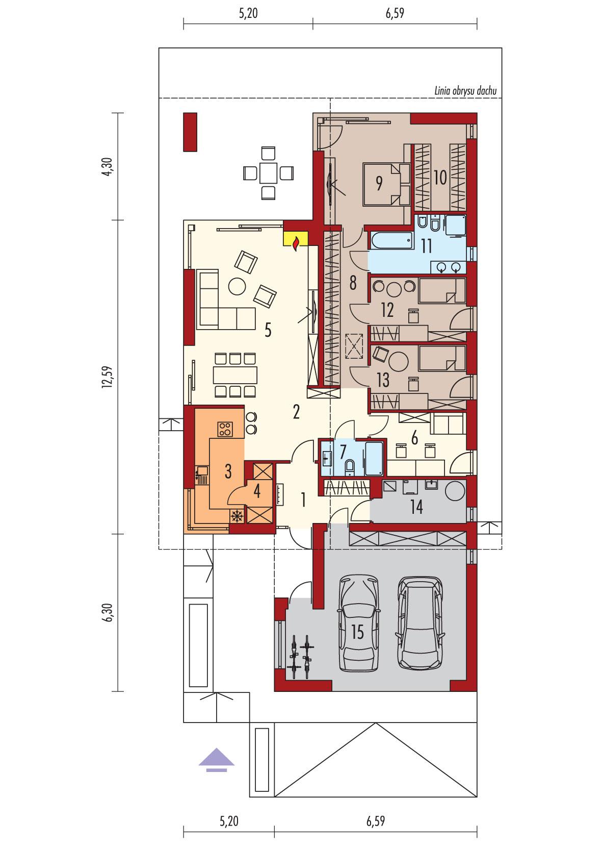
Charakterystyka: Dom parterowy,
niepodpiwniczony z garażem dwustanowiskowym
Przeznaczenie: Dom dla 3-4-osobowej rodziny
Technologia i konstrukcja:
Ściany zewnętrzne: murowane, dwuwarstwowe,
beton komórkowy firmy H+H 24 cm, ocieplenie styropianem Termo Organika 20cm
Ściany wewnętrzne: ścianki działowe murowane, beton komórkowy H+H
12 cm
Strop: gęstożebrowy Teriva, ocieplenie
wełna mineralna Isover 30 cm
Dach: konstrukcja drewniana, dachówka ceramiczna
płaska Bergamo firmy Röben
Rozwiązania instalacyjne:
Ogrzewanie: kocioł gazowy
kondensacyjny firmy Viessmann, rozprowadzenie ciepła: grzejniki płytowe firmy
Purmo
Wentylacja: grawitacyjna
Dodatkowo: stacja uzdatniania wody firmy Viessmann
OZE: system solarny firmy Viessmann
Wykończenie:
Elewacje: tynk cienkowarstwowy
mineralny w kolorze białym TO-WH002 z palety firmy Termo Organika, okładzina
drewniana w pionowym układzie desek
Stolarka: drewniana, PVC lub
aluminiowa, drzwi wejściowe i brama garażowa firmy Hörmann
Wersje w serii Daniel VIII - zapytaj o dostępność:
- Daniel VIII G2 ENERGO PLUS reco – inne wykończenie elewacji,
wentylacja mechaniczna, pompa ciepła
- wszystkie wersje o takim samym układzie funkcji
- odbicie lustrzane do każdej wersji
Wszystkie wersje domów możliwość w dwóch standardach/wariantach
instalacyjnych:
- ENERGO: kocioł gazowy kondensacyjny, grzejniki, wentylacja
grawitacyjna, OZE: kolektory słoneczne
- ENERGO PLUS: pompa ciepła, ogrzewanie podłogowe, wentylacja
mechaniczna, OZE: panele fotowoltaiczne
Istnieją techniczne możliwości wykonania zmian:
- podpiwniczenia budynku
- wykonania budynku w technologii szkieletowej
- dokonania zmian funkcjonalnych wg indywidualnych wymagań


















