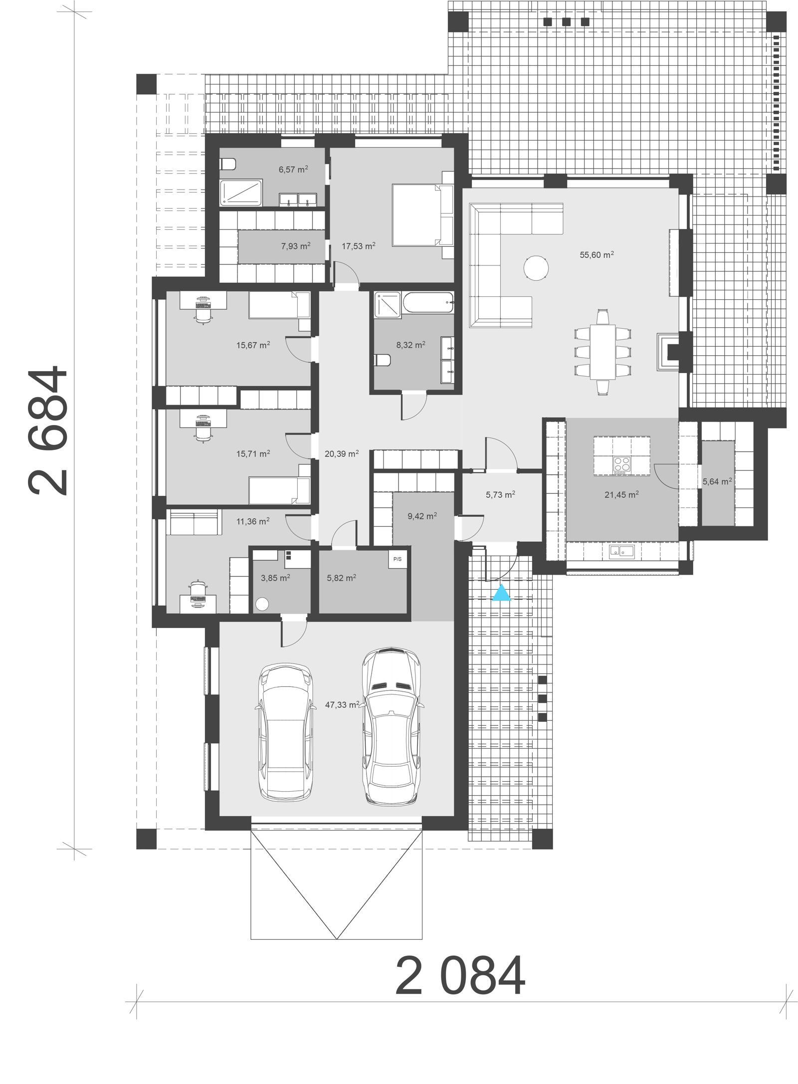
Gotowy projekt uA343 jest to propozycja okazałego i efektownego projektu domu parterowego z płaskim dachem. Ten nowoczesny gotowy projekt domu charakteryzuje ciekawa, rozrzeźbiona licznymi betonowymi pergolami, bogata bryła. Na uwagę zasługuje imponujący, zadaszony taras, który świetnie sprawdzi się jako miejsce organizacji letnich przyjęć w ogrodzie. Ten gotowy projekt domu zapewnia swoim domownikom dostęp to funkcjonalnego garażu na dwa auta oraz części mieszkalnej. Powierzchnia użytkowa mieszkalna w projekcie uA343 to 205 m2. Przestronne, jasne wnętrza to cecha tego projektu domu. Zaplanowano tu podział na strefy dzienną i nocną. W strefie nocnej znajdują się duże okna, które zapewniają dostęp do strefy relaksu na tarasie oraz gwarantują stały dostęp światła słonecznego do tej części domu, otwierając ją na ogród. Okazały salon z kominkiem i strefą jadalnianą zajmuje 56 m2. W jego pobliżu ulokowano funkcjonalną i przestronną kuchnię powierzchni 21 m2 z wyspą kuchenną w centralnej części oraz podręczną spiżarnią. Po lewej stronie, w głębi domu architekt zaplanował prywatną strefę domowników, a w niej masterbedroom, czyli komfortową główną sypialnię z prywatną łazienką i garderobą, trzy sypialnie dla domowników oraz wspólną łazienkę z wanną i prysznicem. Dopełnieniem układu funkcjonalnego tego parterowego projektu domu jest praktyczna pralnia. Bogaty program funkcjonalny i atrakcyjny wygląd zewnętrzny zadowoli nawet najbardziej wymagających inwestorów.
Technologia:
Fundamenty: bloczek betonowy, lany beton
Ściany: gazobeton, silikaty, cermika
Strop: żelbetowy
Dach: wstropodach system SPS
Ogrzewanie: pompa ciepła, podłogówka
Wentylacja: mechaniczna







