Technologia:
Fundamenty: bloczek betonowy, lany beton
Ściany: gazobeton, silikaty, ceramika
Strop: żelbetowy
Dach: płaski SPS
Ogrzewanie: gaz, kaloryfery
Wentylacja: grawitacyjna
🌷 Świętujemy Wiosnę! Wymarzony projekt domu z bonusem:
Karta ALLEGRO lub EXTRA rabat! 🎁 Oferta znika 21 marca.
Fundamenty: bloczek betonowy, lany beton
Ściany: gazobeton, silikaty, ceramika
Strop: żelbetowy
Dach: płaski SPS
Ogrzewanie: gaz, kaloryfery
Wentylacja: grawitacyjna
Nasze biuro posiada szeroki zakres usług związanych z adaptacją gotowych projektów do warunków konkretnej działki, doradztwem w zakresie kosztorysów i technologii oraz budową domu. Do zakupu każdego projektu dodajemy również obszerny pakiet korzyści.
Skorzystaj z bezpłatnej pomocy eksperta finansowego
Każdy PROJEKT GOTOWY to wysokiej jakości dokumentacja architektoniczno-techniczna sporządzona wedle wytycznych Prawa Budowlanego, pozwalajaca złożyć dokumentację w urzędzie do zgłoszenia budowy lub do pozwolenia na budowę. Wszystkie nasze projekty gotowe i projekty gotowe autorów, z którymi współpracujemy są zweryfikowane i posiadają zaświadczenie o zgodności projektu z PB. Dostępność i aktualizacje każdego projektu są indywidualnie potwierdzane.
Każdy gotowy projekt jest zgodny z Prawem Budowlanym i zawiera:
Szczegółową zawartość projektu możesz sprawdzić na stronie:
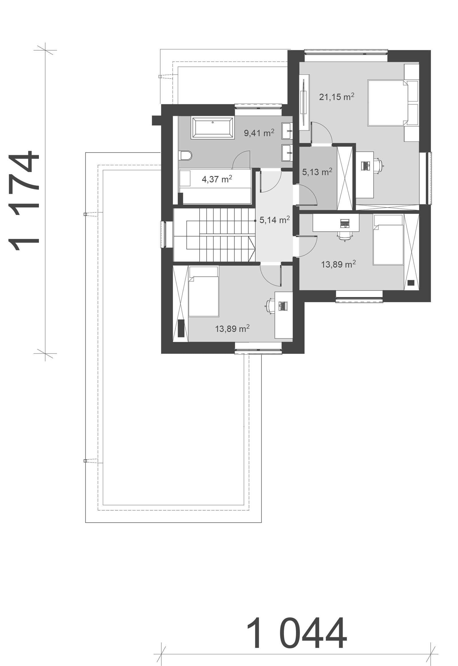
Zawartość projektu gotowego
Każdy projekt gotowy domu jednorodzinnego możemy zanalizować pod kątem zgodności z działką i omówić zmiany planowane w projekcie. Z nami zyskujesz kompleksowo bezpieczeństwo zakupu projektu!
Co możesz modyfikować?
Standardowa zgoda to szeroki zakres możliwości. Pamiętaj od nas UZYSKASZ INDYWIDUALNĄ DODTAKOWĄ ZGODĘ BEZPŁATNIE na Twoje życzenie.
STANDARDOWO DOŁĄCZANA ZGODY NA ZMIANY obejmuje:
w/w zmiany pojawiają się bardzo często już na etapie wykonywania adaptacji, czy też realizacji budowy.
Potrzebujesz więcej informacji technicznych dotyczących projektu, by zamówić projekt domu, zapraszamy. Informację dotyczące warunków zakupu i zwrotów dostępne są na stronie Regulaminu, o szczegółach dotyczących czasu realizacji projektu, warunków zakupu i warunków wymian lub zwrotów poinformuje doradca po sprawdzeniu konkretnych warunków zakładanych przez konkretnego autora projektu.
ZWROT I WYMIANA DO 14 DNI
Zwrotom nie podlegają projekty koncepcyjne, na które czas oczekiwnia wynosi 4 tygodnie oraz wszelkie pliki elektroniczne PDF, DWG oraz kosztorysy. Nie podlegają zwrotowi projekty do których zostały zakupione pliki elektroniczne PDF, DWG.
Warunkiem przyjęcia zwrotu jest poprawne wypełnienie i podpisanie oświadczenia o odstąpieniu od umowy zawartej na odległość i przesłania go w terminie 14 dni od dnia dostarczenia na adres e-mail Sprzedającego, bądź tez listownie na adres siedziby Sprzedającego.
Szczegóły na temat zwrotu i wzór oświadczenia o odstąpieniu od umowy dostępny jest na stronie "jak zamówić projekt".
W sytuacji odstąpienia od umowy otrzymana przesyłka zawierająca towar powinna zostać zwrócona do Sprzedającego w stanie nie zmienionym, na koszt Kupującego w terminie 10 dni od dnia złożenia oświadczenia o odstąpieniu od umowy.
Pieniądze za odesłany Towar (zwrotowi nie podlegają koszty dostawy i pakowanie) zostaną przekazane Kupującemu w terminie 14 dni roboczych od dnia otrzymania od Kupującego towaru na wskazane przez Niego konto bankowe.
Informacje ogólne dotyczące działania sklepu internetowego zawarte są na stronie Regulaminu

Daniel Dalecki
Ocena: 5/5
Z całego serca mogę polecić współpracę z firmą MD PROJEKT & KONSULTING SP. Z O. O.. Wybór projektu rozpocząłem we wrześniu ubiegłego roku zadając wiele pytań, prosząc o porady i wyjaśnienia. Pani Magda, zawsze profesjonalnie i rzetelnie starała wyjaśnić wszystkie niejasności i zawiłości moich pytań. Decyzja o zakupie zapadła i jak zwykle pojawiły się nowe pytania i wątpliwości. Zostały one wyjaśnione w rekordowym tępie, a moja dociekliwość zaspokojona rzeczowym i fachowym wyjawieniem odpowiedzi na nurtujące mnie tematy. Jeśli macie wątpliwości jaki projekt wybrać i czy spełni Wasze oczekiwania to polecam kontakt z Panią Magdą, która fachowo doradzi i pomoże w wyborze Waszego wymarzonego domu. Gorąco polecam i dziękuję za miłą obsługę i profesjonalne doradztwo.

Adrian Kanz
Ocena: 5/5
Bardzo profesjonalna, przemiła obsługa. Wracam do Pani Magdy przy każdej nowej inwestycji i za każdym razem dostaje, sprawne odpowiedzi na każde moje pytania, błyskawiczną realizacje zamówienia. Zdecydowanie firma nr 1 na najwyższym poziomie pod każdym możliwym względem Polecam!

Anna Z.
Ocena: 5/5
Bardzo duży wybór projektów i profesjonalne doradztwo. Szukałam projektu domu w stylu wiejskim, otrzymałam kilka różnych opcji do wyboru i telefonicznie mogłam się doradzić i przeanalizować z Magdą moje wątpliwości. Rozmowa przebiegała bez stresu, bez nachalności, z dużą dozą informacji. Bardzo mile mi się współpracowało i chętnie polecam wybieramprojekt.pl.

Marek Banaszewski
Ocena: 5/5
Professionelle ,fachowedoradctwo,fachowa odowiedz na kazde pytanie,jako klient czulem sie jak krol ,bo tak powinno byc,zyjemy z klieta,pani Zachuta,b,dobrze to robi ,polecam,i bende polecal,pozdrawiam wszystkich.czytajacych....

Wojtek Sawina
Ocena: 5/5
Rewelacyjna współpraca.Indywidualne podejście i poświęcenie uwagi na każdym etapie.Zawsze można liczyć na pomoc i wyjaśnienie wątpliwości.Fajne dopasowanie projektu do działki, przystępna cena adaptacji i innych opracowań.Najważniejsza zaleta Pani Magdy to pełen profesjonalizm i uczciwość.Nie ma niespodzianek w stylu dopłaćcie jeszcze za to czy tamto.

Magdalena Zahuta,
CEO wybieramprojekt.pl
Telefon:
Doradztwo i sprzedaż: 791 258 345
Biznes i Marketing: 600 160 765
Adres email:
kontakt@wybieramprojekt.pl
adaptacja@wybieramprojekt.pl
Godziny pracy:
pn.-sb.: 9:00 - 18:00
Wizyty stacjonarne umawiamy indywidualnie na konkretny termin, ul Traugutta
Pełna nazwa:
MD PROJEKT & KONSULTING SP. ZO.O.
Siedziba firmy
Klasztorna 35, 52-234 Wrocław
Numery rejestrowe:
KRS: 0000878772,
REGON: 387947490,
NIP: 8992891755
Konta bankowe:
Santander:
11 1090 2226 0000 0001 4747 8663