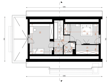
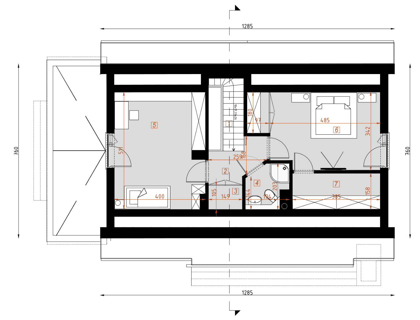
Oferta: Projekt D321 z adaptacją do działki.
Zamów projekt, wykonamy adaptację do działki, PAB gotowe do złożenia w urzędzie. Oferujemy kompleksową usługę, która obejmuje:
- Gotowy projekt domu: Wybierz spośród n aszych sprawdzonych projektów, np. D321 - WT2021.
- Adaptacja do Twojej działki: Dostosujemy projekt do sp ecyfiki Twojej działki i lokalnych warunków. Projekt zagospodarowania terenu (rysunki wraz z opisami), wrysowanie obrysu budynku na mapę do celów projektowych i wykonanie dostosowania budynku do warunków terenowych oraz wykonanie bilansu powierzchni, opis techniczny, wypełnienie wymaganych arkuszy w projekcie typowym.
- Sprawdź pełną ofertę: adaptacja do działkiWsparcie na każdym etapie: Pomożemy Ci w załatwieniu wszelkich formalności.
Dlaczego warto wybrać projekt z adaptacją?
- Szybko i sprawnie: Skróć czas oczekiwania na rozpoczęcie budowy.
- Indywidualne podejście: Dostosujemy projekt do Twoich potrzeb i preferencji.
- Kompleksowa obsługa: Wszystko załatwisz w jednym miejscu.
- Doświadczeni specjaliści: Nasz zespół zapewni wysoką jakość usług.
Dodatkowe usługi wymagają spersonalizowanej wyceny z uwagi na konkretne warunki działki, w tym:
- autoryzacja badań geotechnicznych,
- oświadczenie odnośnie sieci cieplnej,
- implementacja z autoryzacją urządzeń na działce, w tym: szambo, studnia, mini oczyszczalnią,
- wsparcie na etapie uzyskiwania dokumentów inwestorskich,
- wsparcie na etapie procedury.
Co potrzebujesz?
- Mapa do celów projektowych
- Warunki przyłączenia mediów
- Dostęp do drogi publicznej
- Badanie geotechniczne gruntu
Napisz do nas: adaptacja@wybieramprojekt.pl lub zadzwoń: 791 258 345
Sprawdż pelna ofertę adaptacji do działki (tutaj)
Projekty domów jednorodzinnych Nasza pracownia oferuje szeroki wybór projektów domów jednorodzinnych, które spełnią oczekiwania każdego inwestora. W naszej ofercie znajdują się domy parterowe, z poddaszem i piętrowe, o powierzchni użytkowej od 50 do ponad 200 m2. Domy jednorodzinne z naszej pracowni charakteryzują się wysoką funkcjonalnością i estetyką. Przy ich projektowaniu uwzględniliśmy wszystkie potrzeby domowników, dbając o to, aby każdy dom był idealnym miejscem do życia. Projekty w technologii drewnianej Drewniane domy jednorodzinne to coraz popularniejsze rozwiązanie. Drewno jest materiałem naturalnym, który zapewnia komfortowy i zdrowy mikroklimat w domu. Domy drewniane są również energooszczędne, co przekłada się na niższe koszty eksploatacji. W naszej pracowni oferujemy projekty domów drewnianych w różnych stylach, od klasycznych po nowoczesne. Projekty jednorodzinne w technologii tradycyjnej Domy jednorodzinne w technologii tradycyjnej to sprawdzone rozwiązanie, które cieszy się niesłabnącą popularnością. Domy te są trwałe i solidne, a ich budowa jest stosunkowo niedroga. W naszej pracowni oferujemy projekty domów jednorodzinnych w technologii tradycyjnej w różnych stylach, od klasycznych po nowoczesne. Projekty typu nowoczesna stodoła Domy typu nowoczesna stodoła to nowoczesne i stylowe rozwiązanie, które zyskuje coraz więcej zwolenników. Domy te charakteryzują się prostą bryłą i dużymi przeszkleniami, które zapewniają mnóstwo światła dziennego. W naszej pracowni oferujemy projekty domów typu nowoczesna stodoła w różnych rozmiarach i stylach. Domy ekonomiczne Domy ekonomiczne to rozwiązanie dla osób, które chcą wybudować dom bez nadmiernego obciążania swojego budżetu. Domy te są zaprojektowane tak, aby były energooszczędne i łatwe w budowie. W naszej pracowni oferujemy projekty domów ekonomicznych w różnych stylach i rozmiarach.
















