Super Oferta: Projekt D316B z adaptacją - Gotowy do Budowy!
W skrócie: projekt, adaptacja, pełna dokumentacja do złożenia projektu.
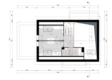
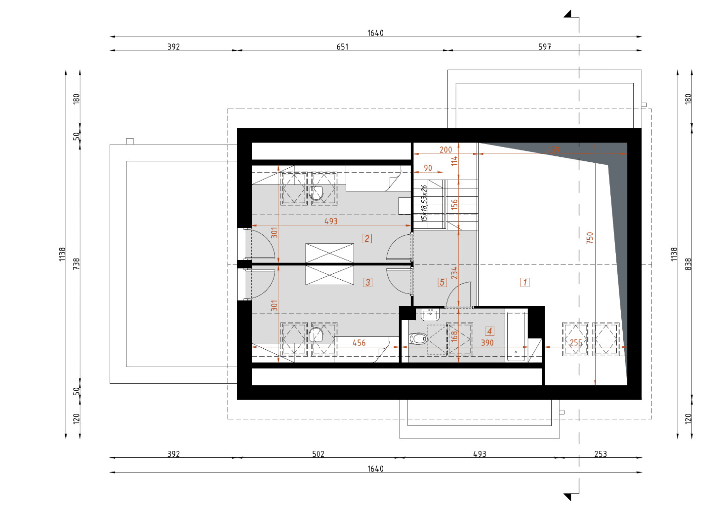
Projekt D316B - sprawdź wszystkie paramtery projektu domu (tutaj)
Z nami zrealizujesz swoje marzenie szybko i bez stresu! Oferujemy kompleksową usługę, która obejmuje:
- Projekt domu: Pełna, branż owa dokumentacja w 6 egzemplarzach, gotowa do złożenia wniosku o pozwolenie na budowę.
- Adaptacja projektu: Dostosujemy projekt do specyfiki Twojej działki i lokalnych warunków. Projekt zagospodarowania terenu (rysunki wraz z opisami), wrysowanie obrysu budynku na mapę do celów projektowych i wykonanie dostosowania budynku do warunków terenowych oraz wykonanie bilansu powierzchni, opis techniczny, wypełnienie wymaganych arkuszy w projekcie typowym.
Dodatkowe usługi wymagają spersonalizowanej wyceny z uwagi na konkretne warunki działki, w tym:
- autoryzacja badań geotechnicznych,
- oświadczenie odnośnie sieci cieplnej,
- implementacja z autoryzacją urządzeń na działce, w tym: szambo, studnia, mini oczyszczalnią,
- wsparcie na etapie uzyskiwania dokumentów inwestorskich,
- wsparcie na etapie procedury.
Co potrzebujesz?
Mapa do celów projektowych
Warunki przyłączenia mediów
Dostęp do drogi publicznej
Badanie geotechniczne gruntu
Napisz do nas: adaptacja@wybieramprojekt.pl lub zadzwoń: 791 258 345
Sprawdż pelna ofertę adaptacji do działki (tutaj).
Ile trwa adaptacja projektu?
A. Wsparcie zamawiającego w zakresie uzyskania niezbędnych dokumentów inwestorskich, w tym :
1.wskazanie potrzebnych dokumentów- 3 dni
2.udzielenie informacji o parametrach technicznych do wypełnienia wniosków, wsparcie w wypełnieniu wniosków, wsparcie w. wypełnieniu wniosku o Pozwolenie na budowę- 3-5 dni
B. Projekt Zagospodarowania Terenu - adaptacja projektu domu do działki wg zapisów MPZP lub Dec. WZiZT - przygotowanie na roboczo - 2 dni następnie naniesienie uwag Klienta - 2 dni
C. Zeszyt Dokumentów Inwestorskich(niezbędny załącznik do wniosku o Pozwolenie na budowę)
- kompletacja dokumentów otrzymanych od Klienta 3-5 dni
UWAGA! Każdorazowo czas liczony od dnia otrzymania niezbędnych wytycznych i materiałów lub dokumentów inwestorskich od Klienta , w tym: warunki na media, uzgodnienie obsługi komunikacyjnej wyjazdu na drogę publiczną, mapa zasadnicza, mapa do celów projektowych , badania gruntowe, itp.
Jesteś zainteresowany innym projektem domu? Napisz: adaptacja@wybieramprojekt.pl wyślemy Ci ofertę! Warto - szybki start do pozwolenia na budowę!
Zobacz inne projekty domów dostępne w pakiecie z adaptacją
Pomocny artykuł: Dom zaczyna się od adaptacji do działki!
Projekty domów jednorodzinnych Nasza pracownia oferuje szeroki wybór projektów domów jednorodzinnych, które spełnią oczekiwania każdego inwestora. W naszej ofercie znajdują się domy parterowe, z poddaszem i piętrowe, o powierzchni użytkowej od 50 do ponad 200 m2. Domy jednorodzinne z naszej pracowni charakteryzują się wysoką funkcjonalnością i estetyką. Przy ich projektowaniu uwzględniliśmy wszystkie potrzeby domowników, dbając o to, aby każdy dom był idealnym miejscem do życia. Projekty w technologii drewnianej Drewniane domy jednorodzinne to coraz popularniejsze rozwiązanie. Drewno jest materiałem naturalnym, który zapewnia komfortowy i zdrowy mikroklimat w domu. Domy drewniane są również energooszczędne, co przekłada się na niższe koszty eksploatacji. W naszej pracowni oferujemy projekty domów drewnianych w różnych stylach, od klasycznych po nowoczesne. Projekty jednorodzinne w technologii tradycyjnej Domy jednorodzinne w technologii tradycyjnej to sprawdzone rozwiązanie, które cieszy się niesłabnącą popularnością. Domy te są trwałe i solidne, a ich budowa jest stosunkowo niedroga. W naszej pracowni oferujemy projekty domów jednorodzinnych w technologii tradycyjnej w różnych stylach, od klasycznych po nowoczesne. Projekty typu nowoczesna stodoła Domy typu nowoczesna stodoła to nowoczesne i stylowe rozwiązanie, które zyskuje coraz więcej zwolenników. Domy te charakteryzują się prostą bryłą i dużymi przeszkleniami, które zapewniają mnóstwo światła dziennego. W naszej pracowni oferujemy projekty domów typu nowoczesna stodoła w różnych rozmiarach i stylach. Domy ekonomiczne Domy ekonomiczne to rozwiązanie dla osób, które chcą wybudować dom bez nadmiernego obciążania swojego budżetu. Domy te są zaprojektowane tak, aby były energooszczędne i łatwe w budowie. W naszej pracowni oferujemy projekty domów ekonomicznych w różnych stylach i rozmiarach.














