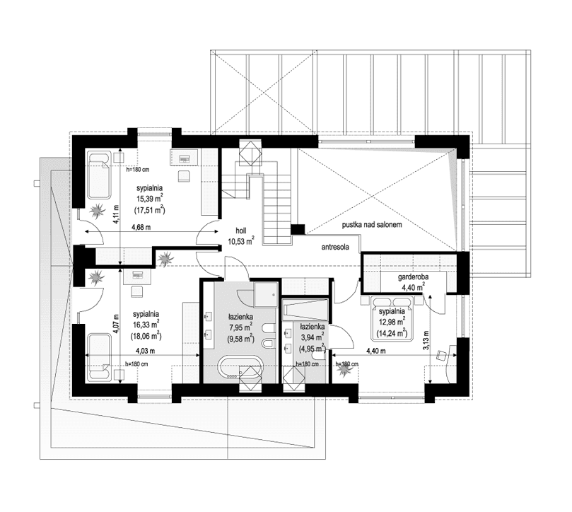
Projekt domu Mambo to kolejna propozycja z naszej serii „imprezowych” domów (projekt domu Makarena, projekt domu Bolero, projekt domu Lambada, projekt domu Party, projekt domu Party 2, projekt domu Biba, projekt domu Tango, projekt domu Salsa, projekt domu Rumba, projekt domu Fokstrot, projekt domu Samba). Projekt domu Mambo to propozycja praktycznego, funkcjonalnego domu jednorodzinnego, parterowego z poddaszem użytkowym, o nowoczesnej architekturze, w popularnej stylistyce domu-stodoły. Bryła budynku i zastosowane detale architektoniczne tworzą nastrój komfortowej wygodnej podmiejskiej willi. Ciekawie zaprojektowane narożne przeszklenia salonu z pustką i antresolą, przełamują monotonię i oczywistość rozwiązań typowych dla domu parterowego z poddaszem i wprowadzają efekt jak w budynku piętrowym. Przeszklenia salonu na dwóch ścianach mają wysokość 1,5 kondygnacji i równej wysokości nadproża, nawiązując tym samym do dwukondygnacyjnych salonów domów piętrowych. Takie rozwiązanie dodaje domowi elegancji i oryginalności, zarówno jego fasadzie, jak i wnętrzu. Prostokątny rzut budynku przykryto dwuspadowym symetrycznym dachem z wysoką ścianą kolankową poddasza, a sylwetkę urozmaicają: od frontu - wbudowany w bryłę parterowy garaż, kubiczne lukarny poddasza i od tyłu - dobudowana pergola przykrywająca taras. Fasada domu została podzielona kolorystycznie i materiałowo na poziome pasy. Mamy tutaj: biel tynkowanych ścian, fragmenty kontrastowe tynku w odcieniach szarości, fragmenty elewacji drewnianej i dach pokryty antracytową płaską dachówką. Wnętrze budynku zaskakuje poczuciem przestrzeni, niełatwym do uzyskania w 150-metrowym domu. Największym zaskoczeniem jest tu pokój dzienny, którego narożne podwyższone okna sprawiają wrażenie jakbyśmy znaleźli się w wysokim salonie domu piętrowego. Pokój dzienny jest bardzo reprezentacyjny i oryginalny. Gubimy tutaj typowy motyw skośnego dachu we wnętrzu domu z poddaszem. Na parterze prócz salonu zaprojektowano dodatkowy pokój z łazienką, oraz garaż z pomieszczeniem kotłowni. Na poddaszu przewidziano trzy pokoje z dwiema łazienkami, w tym apartament master z własną łazienką i garderobą. Wnętrze można dowolnie kształtować, ale bez problemu zmieści się tutaj 4- 6-osobowa rodzina. Budynek zaprojektowano jako energooszczędny, z dobrymi izolacjami i nowoczesnymi instalacjami. Dom ma prostą konstrukcję i zwartą bryłę, dzięki czemu będzie łatwy w budowie i niedrogi w późniejszej eksploatacji. Mambo to propozycja dla Inwestorów pragnących zbudować nowoczesny, ciekawy i oryginalny architektonicznie dom o sensownej skali. Budynek o wysokiej jakości, ale niekoniecznie wielki. Dom dla Inwestorów chcących połączyć tradycyjną funkcjonalność z ciekawymi designerskimi detalami. Zapraszamy do zapoznania się z całą serią "roztańczonych domów" MGProjekt
Materiały:
| Fundamenty: | betonowe ławy i ściany fundamentowe z bloczków betonowych |
| Ściany zewnętrzne: | ściany murowane - pustaki porotherm 25 + styropian |
| Strop: | Teriva |
| Elewacje: | płytki klinkierowe i elewacja drewniana |
| Pokrycie dachu: | dachówka |















