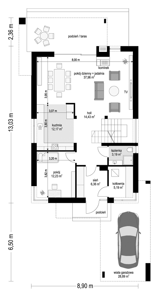
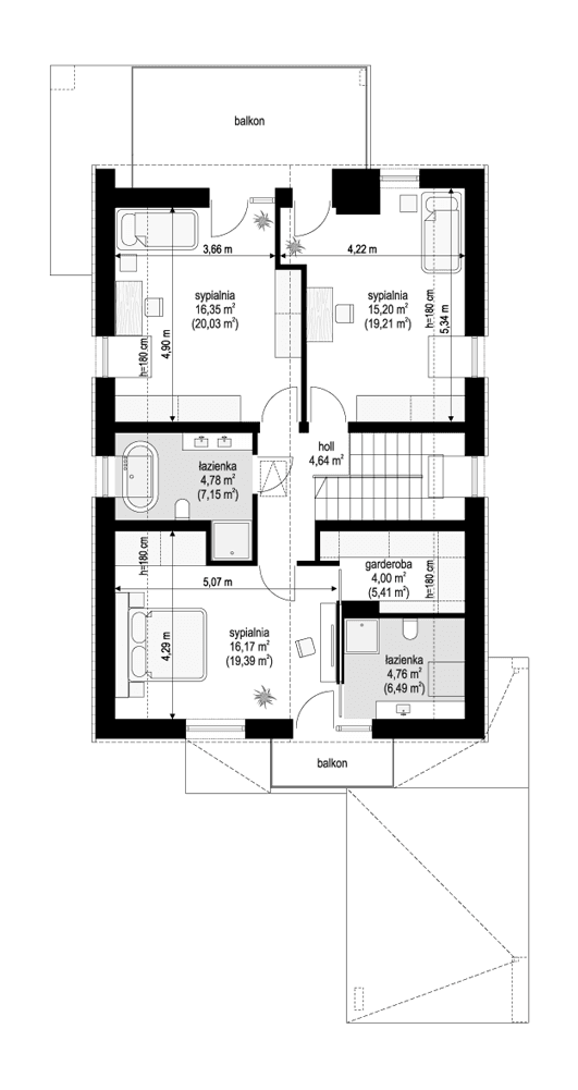
Projekt domu Miejski 4 to projekt z serii projektów ”Miejski” z naszej pracowni. Budynek jednorodzinny parterowy z poddaszem użytkowym zaprojektowany na planie prostokąta, o smukłej sylwetce, nadający się doskonale na wąską parcelę. Dom przykryty jest dwuspadowym dachem bez okapów, o prostej bryle i nowoczesnej architekturze w modnej stylistyce „domu-stodoły”. Dach domu zawieszono dość wysoko na podniesionych ścianach kolankowych, dla zapewnienia maksymalnego wykorzystania powierzchni poddasza użytkowego. Zewnętrzny design domu to połączenie prostoty, czystości formy i ciekawych architektonicznych detali i smaczków. Elewacje podzielono na kontrastujące kolorystycznie pola białych tynkowanych ścian, ścian wykończonych ciemnoszarym tynkiem i fragmentów w pionowej okładzinie drewnianej rombus. Obróbki blacharskie, glify otworów okiennych i ramy okien utrzymano w antracytowym kolorze. Całość kolorystyki domu daje ciekawą, elegancką, czystą architekturę zewnętrzną budynku. Ciekawa kompozycja okien przełamuje monotonię prostopadłościennej bryły. Frontowe i ogrodowe zadaszenia, kryjące wiatę garażową, daszek nad podestem wejściowym, oraz zadaszenie części tarasu od strony ogrodowej, dodatkowo wzbogacają bryłę. Dzięki zachowaniu właściwych proporcji, podziałom elewacji, budynek przyciąga wzrok i ma w sobie coś interesującego – wyróżniającego go spośród wielu podobnych domów z poddaszem. Wnętrze Miejskiego 4 podzielono na część dzienną na parterze i sypialnie na poddaszu. Do domu wchodzimy przez duży przedsionek z szafami do holu i części dziennej. Z holu dostępne są wygodne schody na poddasze użytkowe, widoczne częściowo z pokoju dziennego. Salon podzielony jest na cześć wypoczynkową - z kanapami, ścianą TV, szerokim oknem ogrodowym, ozdobnym kominkiem, oraz jadalnię z dużym stołem i wyjściem na taras przesuwnymi drzwiami. Do przestronnej kuchni dostajemy się z holu lub jadalni. Na parterze zaprojektowano też dodatkowy pokój, łazienkę i kotłownię. Poddasze domu to trzy ładne sypialnie i łazienka. Sypialnia master posiada dodatkowo własną drugą łazienkę i garderobę. Wnętrze można dowolnie aranżować – według koncepcji właścicieli. Nad poddaszem znajduje się sporych rozmiarów strych, do wykorzystania jako domowy magazyn. W budynku nie przewidziano garażu, wychodząc z założenia, że szkoda jest powierzchni domu na „salon” dla samochodu. Natomiast zaprojektowana została zadaszona wiata na samochód, z daszkiem prowadzącym wprost do drzwi wejściowych domu. Budynek zaprojektowano jako energooszczędny, z dobrymi izolacjami i nowoczesnymi instalacjami. Dom ma prostą konstrukcję i zwartą bryłę, dzięki czemu będzie łatwy w budowie i niedrogi w późniejszej eksploatacji. Miejski 4 to bardzo dobra propozycja dla Inwestorów planujących budowę energooszczędnego nowoczesnego domu jednorodzinnego, o nieprzesadzonej skali, jednocześnie funkcjonalnego, o atrakcyjnym przyciągającym wzrok wyglądzie. Domu na wskroś praktycznego, który przez wiele lat będzie wymagał minimalnej obsługi, a tego będzie oryginalny, ciekawy architektonicznie i ponadczasowy. Zapraszamy do zapoznania się ze wszystkimi domkami z tej serii: https://www.mgprojekt.com.pl/miejski, https://www.mgprojekt.com.pl/miejski-2, https://www.mgprojekt.com.pl/miejski-3, https://www.mgprojekt.com.pl/miejski-4
Materiały:
| Fundamenty: | betonowe ławy i ściany fundamentowe z bloczków betonowych |
| Ściany zewnętrzne: | ściany murowane - pustaki porotherm 25 + styropian |
| Strop: | Teriva |
| Elewacje: | tynk cienkowarstwowy |
| Pokrycie dachu: | blacha na rąbek |


















