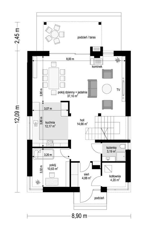
Projekt domu Miejski 2 to projekt domu jednorodzinnego parterowego z poddaszem użytkowym z serii projektów ”Miejski”. Dom zbudowany na planie prostokąta, przykryty dwuspadowym dachem z okapami, o prostej sylwetce, nowoczesnej architekturze i stylistyce, w tradycyjnej bryle typowego „dachowca”. To co wyróżnia architekturę budynku i sprawia jest ona oryginalna, to ciekawe detale urozmaicające elewacje, oraz wnętrze domu. Front budynku to ścian szczytowa, podzielona zmieniającą się kolorystyką ścian na dwa poziome pasy. Kontrastowy ciemny tynk podkreśla strefę wejściową do domu. Górna biała elewacja szczytu dodaje budynkowi lekkości. Pionowe pasy okien, oraz okładziny drewnianej dzielą elewację na dodatkowe sekcje. Całość stanowi zgrabną kompozycję, przerywającą monotonię prostej bryły domu. Wejście podkreślono szerokimi drzwiami z naświetlem bocznym, z daszkiem – balkonem nad podestem wejściowym. Duże przeszklenia dodają budynkowi dynamiki i nowoczesności. Od strony ogrodu wprowadzono w ścianie szczytowej masywny komin z podwójnym kominkiem – wewnętrznym i zewnętrznym, obłożony płytkami klinkierowymi. Duże szerokie przeszklenie salonu otwiera pokój dzienny na taras i ogród. Sam taras jest częściowo przykryty zadaszeniem balkonu poddasza. Architektura zewnętrzna domu łączy tradycyjny kształt bryły budynku z nowoczesnością i współczesnym designem, oraz ciekawym zestawieniem materiałowo-kolorystycznym. Wnętrze zaprojektowano dzieląc je na część dzienną na parterze i sypialnie na poddaszu. Do domu wchodzimy przez wygodny przedsionek do holu i części dziennej. Salon podzielony jest na cześć wypoczynkową z dużą ścianę TV, oraz jadalnię z wyjściem na taras przesuwnymi drzwiami HS. Do częściowo otwartej kuchni dostajemy się z holu lub jadalni. Na parterze przewidziano także dodatkowy pokój, łazienkę i kotłownię. Na poddaszu mamy trzy duże sypialnie, oraz wygodną łazienkę. Sypialnia master posiada własną garderobę. Wnętrze można aranżować w dowolny sposób – według koncepcji właścicieli. Nad poddaszem znajduje się jeszcze spory stryszek, który można dowolnie zagospodarować. W domu celowo nie przewidziano garażu, wychodząc z założenia, że szkoda jest powierzchni domu na „salon” dla samochodu – auto stoi na zewnątrz, lub w wolnostojącej wiacie czy garażu. Budynek zaprojektowano jako energooszczędny, z dobrymi izolacjami i nowoczesnymi instalacjami. Dom ma prostą konstrukcję i zwartą bryłę, dzięki czemu będzie łatwy w budowie i niedrogi w późniejszej eksploatacji. Miejski 2 to propozycja dla Inwestorów pragnących zbudować nowoczesny, ciekawy architektonicznie dom o nieprzesadzonej wielkości. Dom dla Inwestorów chcących połączyć funkcjonalność, tradycyjną bryłę i ciekawą nowoczesną architekturę. Zapraszamy !
Materiały:
| Fundamenty: | betonowe ławy i ściany fundamentowe z bloczków betonowych |
| Ściany zewnętrzne: | ściany murowane - pustaki porotherm 25 + styropian |
| Strop: | Teriva |
| Elewacje: | tynk cienkowarstwowy |
| Pokrycie dachu: | blacha na rąbek |




















