DomPasja 61 - Kompaktowy raj funkcjonalności i nowoczesnego designu
Marzysz o wymarzonym domu, który łączy w sobie nowoczesną estetykę, funkcjonalność i niskie koszty budowy? DomPasja 61 to idealna propozycja dla Ciebie!
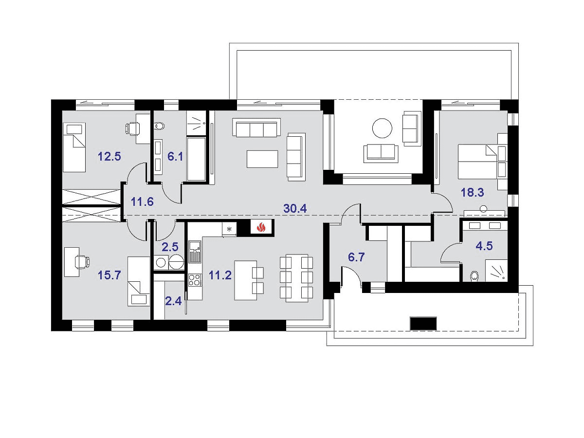
Ten parterowy projekt o powierzchni 119,5 m² zachwyca przemyślanym układem pomieszczeń, nienagannie skrojoną przestrzenią i nowoczesną bryłą, oferując komfortowe warunki życia dla całej rodziny. Dom wyróżnia się kompaktową formą, niskimi kosztami eksploatacji i budowy, a także unikalnym rozwiązaniem zadaszonego tarasu.
Funkcjonalna przestrzeń dopasowana do Twoich potrzeb
Wnętrze DomPasja 61 to przykład przemyślanego układu funkcjonalnego. Na parterze znajdują się 3 przestronne sypialnie, komfortowy salon połączony z jadalnią, praktyczna kuchnia ze spiżarnią, łazienka oraz hol. Przestrzeń została zaprojektowana tak, aby zapewnić maksymalny komfort i wygodę wszystkim domownikom.
Unikatowe rozwiązanie zadaszonego tarasu
DomPasja 61 wyróżnia się unikalnym rozwiązaniem zadaszonego tarasu, który płynnie łączy się z salonem, tworząc otwartą strefę wypoczynkową. To idealne miejsce na relaks i wspólne spędzanie czasu z rodziną i przyjaciółmi.
Prosta bryła budynku, połączona z dwuspadowym dachem bez okapów, tworzy harmonijną całość, która doskonale wpisuje się w otoczenie. Elewacja domu może zostać wykończona w dowolnym stylu, co pozwala na dopasowanie go do indywidualnych gustów inwestorów. Duże okna zapewniają doskonałe doświetlenie wnętrza i nadają domowi nowoczesny charakter.
Kompaktowy dom bez garażu - idealne rozwiązanie na wąską działkę
DomPasja 61 to idealny wybór dla osób poszukujących kompaktowego domu bez garażu. Taka forma budynku doskonale sprawdza się na wąskich działkach i pozwala na zaoszczędzenie miejsca na ogód lub inne strefy rekreacyjne.
Tani w budowie i eksploatacji
DomPasja 61 to nie tylko piękny i funkcjonalny dom, ale również inwestycja w komfort i oszczędność. Prosta konstrukcja budynku i energooszczędne rozwiązania technologiczne przyczyniają się do obniżenia kosztów eksploatacji. Dom jest również tani w budowie, co czyni go atrakcyjną propozycją dla osób poszukujących optymalnego rozwiązania.
DomPasja 61 to idealny wybór dla:
- Rodzin z dziećmi szukających przestronnego i funkcjonalnego domu bez garażu.
- Osób ceniących nowoczesny design i nienagannie skrojoną przestrzeń.
- Inwestorów szukających projektu o niskich kosztach eksploatacji i budowy.
- Właścicieli wąskich działek.
Skontaktuj się z nami już dziś i poznaj więcej szczegółów projektu DomPasja 61!
Projekty domów jednorodzinnych Nasza pracownia oferuje szeroki wybór projektów domów jednorodzinnych, które spełnią oczekiwania każdego inwestora. W naszej ofercie znajdują się domy parterowe, z poddaszem i piętrowe, o powierzchni użytkowej od 50 do ponad 200 m2. Domy jednorodzinne z naszej pracowni charakteryzują się wysoką funkcjonalnością i estetyką. Przy ich projektowaniu uwzględniliśmy wszystkie potrzeby domowników, dbając o to, aby każdy dom był idealnym miejscem do życia. Projekty w technologii drewnianej Drewniane domy jednorodzinne to coraz popularniejsze rozwiązanie. Drewno jest materiałem naturalnym, który zapewnia komfortowy i zdrowy mikroklimat w domu. Domy drewniane są również energooszczędne, co przekłada się na niższe koszty eksploatacji. W naszej pracowni oferujemy projekty domów drewnianych w różnych stylach, od klasycznych po nowoczesne. Projekty jednorodzinne w technologii tradycyjnej Domy jednorodzinne w technologii tradycyjnej to sprawdzone rozwiązanie, które cieszy się niesłabnącą popularnością. Domy te są trwałe i solidne, a ich budowa jest stosunkowo niedroga. W naszej pracowni oferujemy projekty domów jednorodzinnych w technologii tradycyjnej w różnych stylach, od klasycznych po nowoczesne. Projekty typu nowoczesna stodoła Domy typu nowoczesna stodoła to nowoczesne i stylowe rozwiązanie, które zyskuje coraz więcej zwolenników. Domy te charakteryzują się prostą bryłą i dużymi przeszkleniami, które zapewniają mnóstwo światła dziennego. W naszej pracowni oferujemy projekty domów typu nowoczesna stodoła w różnych rozmiarach i stylach. Domy ekonomiczne Domy ekonomiczne to rozwiązanie dla osób, które chcą wybudować dom bez nadmiernego obciążania swojego budżetu. Domy te są zaprojektowane tak, aby były energooszczędne i łatwe w budowie. W naszej pracowni oferujemy projekty domów ekonomicznych w różnych stylach i rozmiarach.












