Otto - nowoczesna stodoła z tarasem nad garażem - idealny dom dla całej rodziny!
Szukasz wyjątkowego domu, który łączy w sobie nowoczesny design z funkcjonalnością i przestronnością? Poznaj projekt Otto - dom inspirowany nowoczesnymi stodołami, stworzony z myślą o współczesnych rodzinach.
Wyjątkowy i ciekawy projekt Otto to w podsumowaniu:
- Piękny dom z tarasem nad garażem - idealne miejsce na relaks i wspólne spędzanie czasu z rodziną i przyjaciółmi.
- Dom z poddaszem - oferujący dodatkową przestrzeń do aranżacji sypialni, pokoju gier lub biura.
- Nowoczesny dom w stylu stodoły - wyróżniający się elegancką bryłą i starannie dobranymi materiałami.
- Dom z wejściem od szczytu - oryginalny element architektoniczny, który nadaje domowi niepowtarzalny charakter.
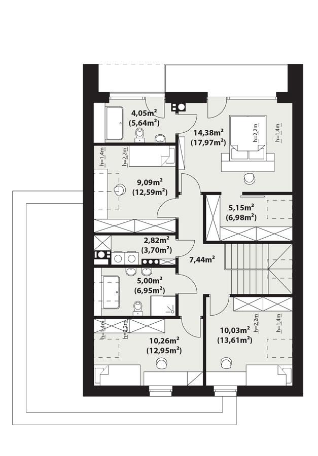
Przestronne wnętrze i funkcjonalny układ:
Parter: Przestronny salon połączony z jadalnią i kuchnią, dodatkowy pokój, spiżarnia, garaż dwustanowiskowy.
Poddasze: Cztery sypialnie, duża łazienka, pralnia, największa sypialnia z własną łazienką i garderobą.
Otto to dom, który zapewnia jakość i energooszczędność:
Komfort i wygodę użytkowania - idealny dla dużej rodziny.
Dużo naturalnego światła - dzięki licznym przeszkleniom.
Energooszczędność - nowoczesne rozwiązania konstrukcyjne i materiały zapewniają niskie koszty eksploatacji.
Możliwość modyfikacji - dostosuj projekt do swoich indywidualnych potrzeb.
Otto - to nie tylko dom, to styl życia!
Dodatkowe informacje:
Powierzchnia użytkowa: 149,58 m2
Liczba pokoi: 6
Liczba łazienek: 2
Dach: dwuspadowy bez okapów
Garaż: dwustanowiskowy
Możliwość modyfikacji projektu: tak - zapytaj nas o zmiany w projekcie
Zapraszamy do kontaktu!


















