Ka268P: Przytulny dom parterowy z piwnicą i pompą ciepła - idealny dla całej rodziny!
Szukasz funkcjonalnego i niedrogiego domu o przestronnym wnętrzu i wygodnej piwnicy? Poznaj projekt Ka268P - parterowy dom wolnostojący z pompą ciepła, idealny dla 4-5 osobowej rodziny!
Przemyślana konstrukcja i funkcjonalne wnętrze:
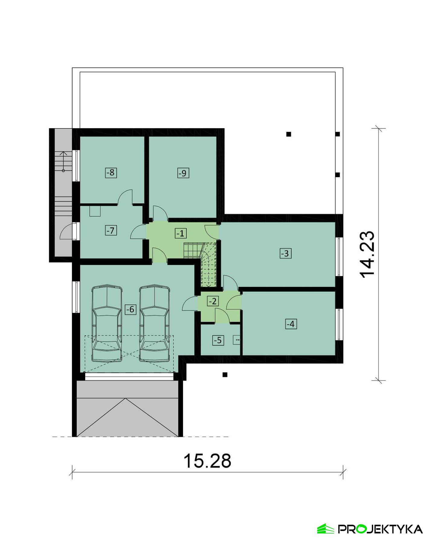
Projekt Ka268P to dom parterowy z piwnicą o prostokątnej bryle o wymiarach 11,2 x 8,5 m.
Parter domu to strefa dzienna, gdzie znajdziesz przestronny salon połączony z aneksem kuchennym (około 35 m2), trzy sypialnie, łazienkę i hall.
Piwnica to dodatkowa przestrzeń, którą możesz wykorzystać na pomieszczenia gospodarcze, pralnię, salę kinową lub hobby room.
Zalety projektu Ka268P:
- Funkcjonalny układ pomieszczeń - zapewnia komfortowe warunki życia dla 4-5 osobowej rodziny.
- Duża piwnica - otwiera szerokie możliwości aranżacyjne i pozwala na zwiększenie powierzchni użytkowej domu.
- Pompa ciepła - ekologiczne i ekonomiczne źródło ogrzewania.
- Prosta konstrukcja - ułatwia i obniża koszty budowy.
- Możliwość modyfikacji projektu - możesz dostosować dom do swoich potrzeb i preferencji.
- Energooszczędność - projekt Ka268P spełnia wysokie standardy energooszczędności, co oznacza niskie rachunki za ogrzewanie.
Ka268P - idealny wybór dla:
Młodych rodzin szukających funkcjonalnego i niedrogiego domu.
Par szukających komfortowego miejsca do życia.
Inwestorów szukających domu o niskich kosztach budowy i utrzymania.
Dodatkowe informacje:
Powierzchnia użytkowa: 120 m2 (w tym piwnica 58 m2)
Liczba pokoi: 4 (w tym 3 sypialnie)
Liczba łazienek: 1
Dach: wielospadowy
Garaż: jednostanowiskowy (opcja)
Możliwość modyfikacji projektu: tak
Zapraszamy do kontaktu!












