NASZA STODOŁA: Współczesna Oaza Spokoju w Stylu Nowoczesnej Stodoły
NASZA STODOŁA to wyjątkowy projekt domu z poddaszem użytkowym, który zachwyca nowoczesnym designem i funkcjonalnym rozkładem pomieszczeń. Ten piękny dom o powierzchni użytkowej 184,5 m² to idealna propozycja dla rodzin 4-5 osobowych.
Unikatowe połączenie prostoty i elegancji
Bryła domu NASZA STODOŁA wyróżnia się prostą formą na planie prostokąta i symetrycznym dwuspadowym dachem, nawiązując do stylu nowoczesnej stodoły. Elewacja w stonowanych kolorach z elementami drewna nadaje domowi ponadczasowy charakter. Charakterystycznym elementem jest zadaszony taras z pergolą i ażurowymi elementami, a także wysunięcie nad drzwiami wejściowymi.
Przestronne i komfortowe wnętrze
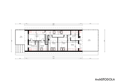
Wnętrze domu zostało zaprojektowane z myślą o komforcie i funkcjonalności. Na parterze znajduje się otwarta przestrzeń dzienna łącząca salon, jadalnię i kuchnię. Duże przeszklenia zapewniają dużo naturalnego światła i poczucie przestronności. Przy kuchni znajduje się spiżarnia, a także sypialnia gościnna, która może pełnić rolę gabinetu. Na parterze znajduje się również łazienka oraz pralnia.
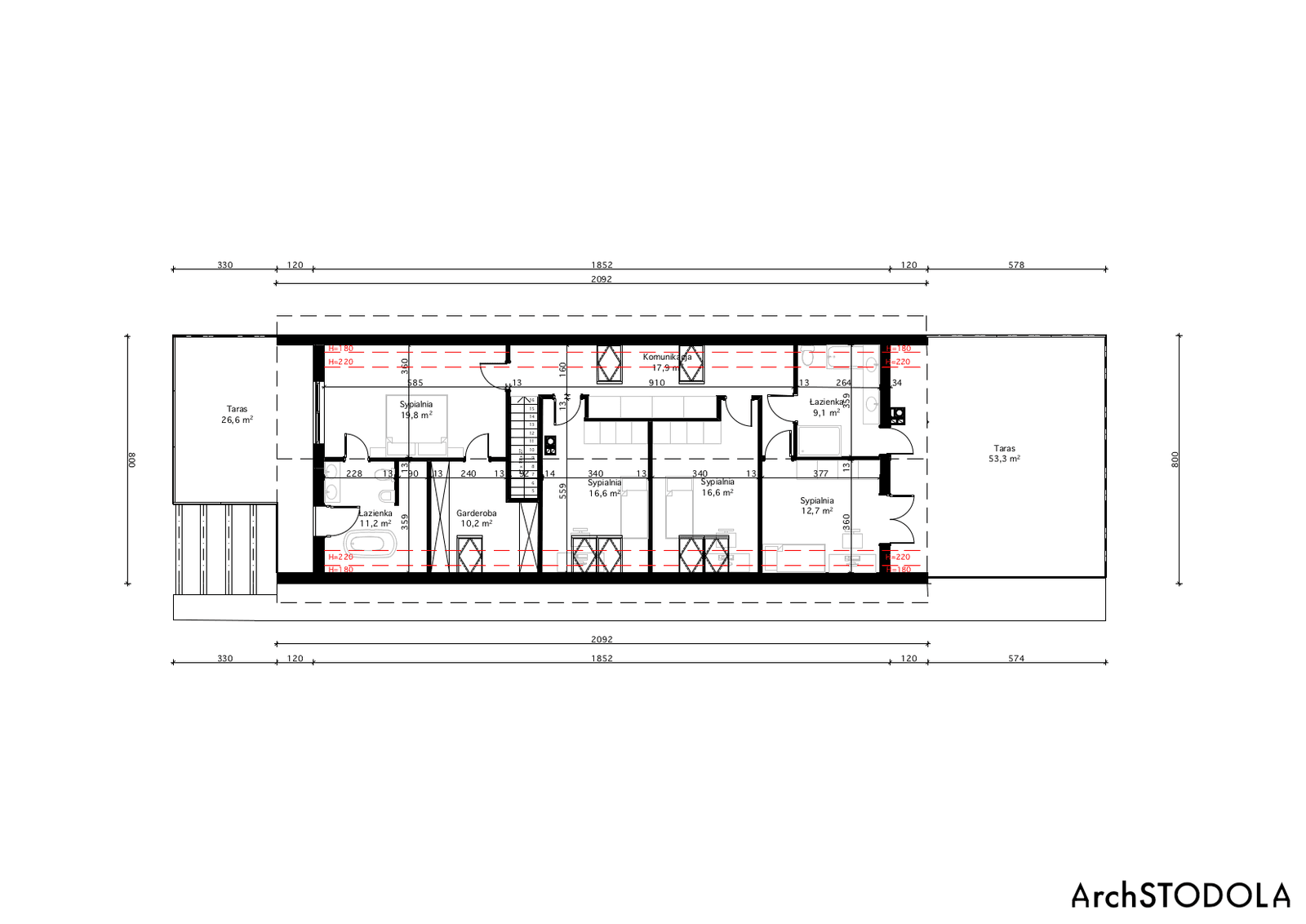
Poddasze to strefa nocna z czterema sypialniami, garderobą oraz dwoma łazienkami. W korytarzu na poddaszu wygospodarowano miejsce na dużą szafę.
Dodatkowe atuty:
- Dwustanowiskowy garaż z przejściem do domu ułatwia codzienne życie.
- Zadaszony taras z sauną i łazienką to idealne miejsce na relaks w otoczeniu natury.
- Pomieszczenie gospodarcze zapewnia miejsce do przechowywania narzędzi i innych przedmiotów.
- Reprezentacyjne schody dodają wnętrzu elegancji.
Dlaczego warto wybrać NASZA STODOŁA?
- Unikatowy design
- Przestronne i komfortowe wnętrze
- Funkcjonalne rozwiązania
- Dodatkowe atuty, takie jak garaż, sauna i taras
- Możliwość dostosowania do indywidualnych potrzeb
NASZA STODOŁA to dom marzeń dla rodziny, która szuka komfortowego i stylowego miejsca do życia.
Nowoczesna stodoła, domy jednorodzinne, projekty domów z dachem dwuspadowym, projekty domów z poddaszem



















