NASZA STODOŁA M: Wspaniały Dom w Stylu Nowoczesnej Stodoły
NASZA STODOŁA M to niezwykły projekt domu z poddaszem użytkowym, który zachwyca oryginalną bryłą i nowoczesnym designem. Ten wspaniały dom o powierzchni użytkowej 161,7 m² to idealna propozycja dla rodzin 4-5 osobowych.
Unikatowe połączenie prostoty i nowoczesności
Piękny dom z poddaszem NASZA STODOŁA M wyróżnia się nietuzinkowym obrysem. Prosta bryła na planie prostokąta z dwuspadowym dachem pokrytym blachą na rąbek stojący nawiązuje do stylu nowoczesnej stodoły. Elewacja w stonowanych kolorach z elementami drewna nadaje domowi ponadczasowy charakter. Charakterystycznym elementem jest zadaszony taras z pergolą i ażurowymi elementami oraz wysunięcie nad drzwiami wejściowymi.
Przestronne i komfortowe wnętrze
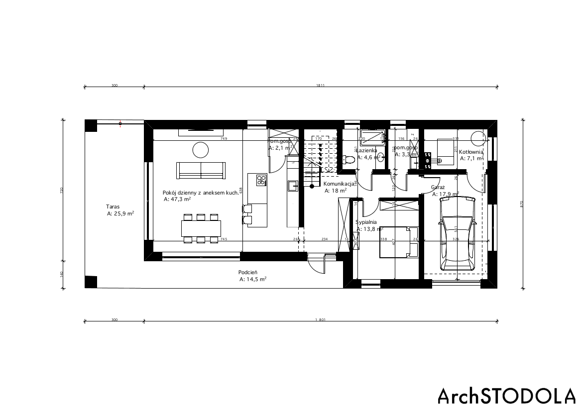
Wnętrze domu zostało zaprojektowane z myślą o komforcie i funkcjonalności. Na parterze znajduje się otwarta przestrzeń dzienna łącząca salon, jadalnię i kuchnię. Duże przeszklenia zapewniają dużo naturalnego światła i poczucie przestronności. Przy kuchni znajduje się spiżarnia, a także sypialnia gościnna, która może pełnić rolę gabinetu. Na parterze znajduje się również łazienka oraz pralnia.
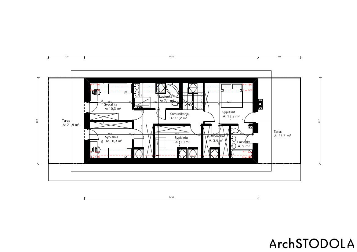
Poddasze to strefa nocna z czterema sypialniami, garderobą oraz dwoma łazienkami. W korytarzu na poddaszu wygospodarowano miejsce na dużą szafę.
Praktyczne rozwiązania
Projekt w technologii szkieletowej zapewnia szybki i tani montaż oraz doskonałą izolację termiczną. Dwustanowiskowy garaż z przejściem do domu ułatwia codzienne życie. Zadaszony taras to idealne miejsce na relaks w otoczeniu natury.
NASZA STODOŁA M - idealny dla:
Rodzin 4-5 osobowych
Inwestorów szukających nowoczesnego i funkcjonalnego domu
Miłośników oryginalnej architektury
Osób ceniących komfort i prywatność
Dlaczego warto wybrać NASZA STODOŁA M?
- Unikatowy design
- Przestronne i komfortowe wnętrze
- Funkcjonalne rozwiązania
- Praktyczne rozwiązania
- Możliwość dostosowania do indywidualnych potrzeb
NASZA STODOŁA M to dom marzeń dla rodziny, która szuka komfortowego i stylowego miejsca do życia.
Nowoczesna stodoła, domy jednorodzinne, projekty domów z dachem dwuspadowym, projekty domów z poddaszem













