Projekt Ka260 Sz: Perełka wśród prostych i tanich domów szkieletowych
Szukasz stylowego, a zarazem funkcjonalnego domu jednorodzinnego, który nie zrujnuje Twojego budżetu? Projekt Ka260 Sz to idealna propozycja dla Ciebie! Ten dom szkieletowy wyróżnia się prostą konstrukcją, przestronnym wnętrzem i zachwycającą antresolą, która nadaje mu wyjątkowy charakter.
Piękno prostoty
Ka260 Sz to przykład na to, że proste rozwiązania mogą być niezwykle efektowne. Bryła domu jest zwarta i elegancka, a dwuspadowy dach podkreśla jego klasyczny styl. Elewacja wykończona została tynkiem i drewnem, co nadaje jej ciepły i przytulny wygląd.
Przestrzeń i funkcjonalność
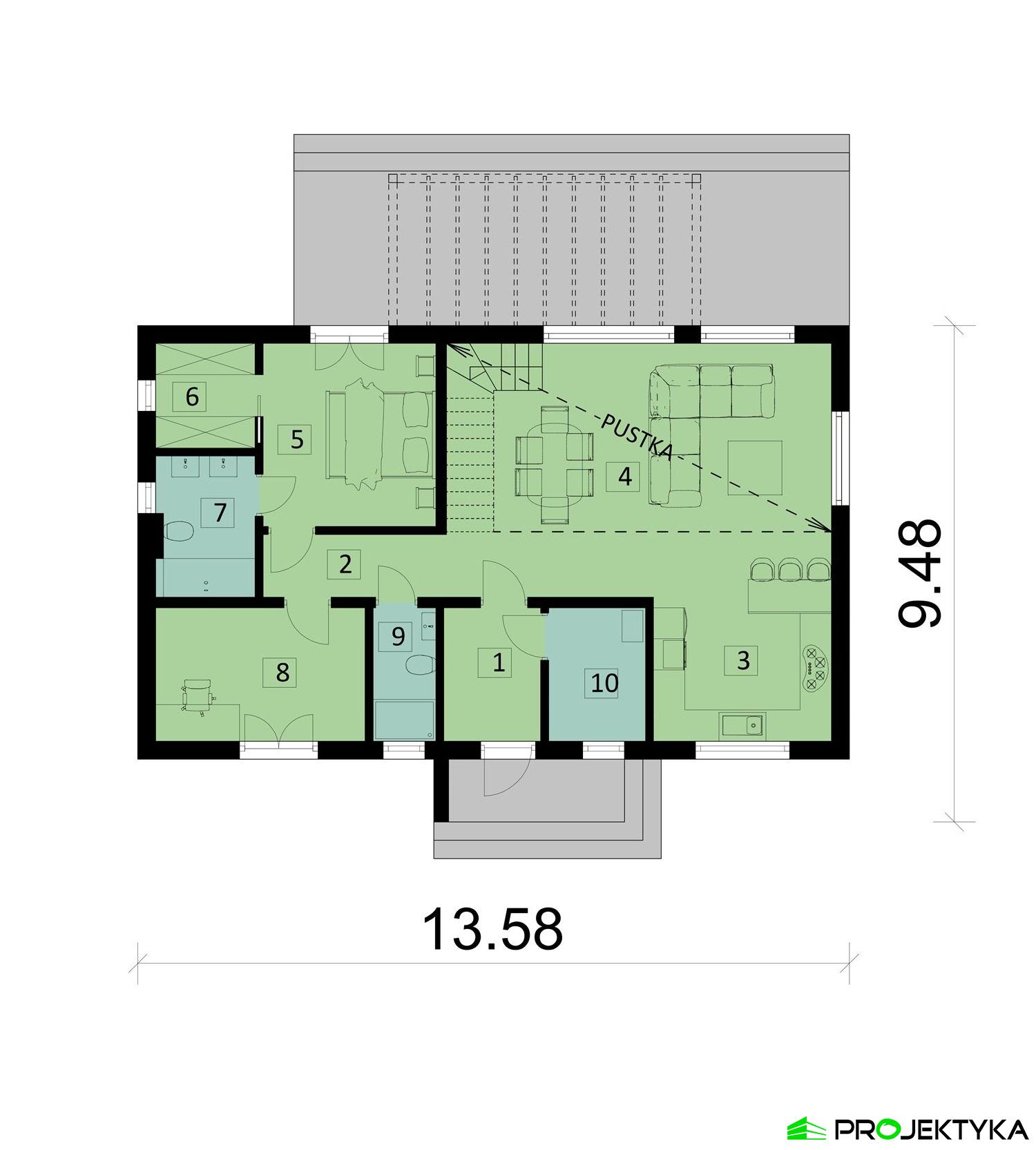
Wnętrze domu zostało zaprojektowane z myślą o komforcie i funkcjonalności. Na parterze znajduje się przestronny salon z kominkiem, połączony z jadalnią i kuchnią. Duże okna zapewniają doskonałe nasłonecznienie pomieszczeń, a otwarta przestrzeń sprzyja wspólnemu spędzaniu czasu. Na parterze znajduje się również sypialnia, łazienka i pomieszczenie gospodarcze.
Antresola - serce domu
Głównym atutem projektu Ka260 Sz jest niewątpliwie antresola, która nadaje wnętrzu wyjątkowego charakteru. To miejsce idealne na stworzenie kącika wypoczynkowego, biblioteki lub biura. Antresola dodaje przestrzeni i przestronności, a jednocześnie tworzy przytulną atmosferę.
Tani w budowie
Dom Ka260 Sz został zaprojektowany z myślą o ekonomicznej budowie. Prosta konstrukcja i szkieletowy system budowy pozwalają na znaczące obniżenie kosztów. Dodatkowo, zastosowanie energooszczędnych rozwiązań zapewnia niskie koszty eksploatacji.
W skrócie: Projekt Ka260 Sz to idealna propozycja dla osób szukających prostego, stylowego i funkcjonalnego domu jednorodzinnego. Przestronne wnętrze, piękna antresola i niska cena budowy sprawiają, że ten projekt jest prawdziwą perełką wśród domów szkieletowych.

















