Zx38v1: Kompaktowy Dom Pełen Przestrzeni - Idealny Wybór dla Rodziny
Zx38v1 to zgrabny dom z poddaszem o prostej, energooszczędnej formie. Ten kompaktowy dom łączy w sobie funkcjonalność z atrakcyjnym wyglądem, a jego niska cena budowy czyni go idealnym wyborem dla rodziny.
Przemyślana bryła
Wysunięty przed bryłę garaż z ciekawą formą zadaszenia tworzy atrakcyjną strefę wejściową. Prosta bryła domu z dwuspadowym dachem zapewnia energooszczędność i łatwość budowy.
Funkcjonalne wnętrze
Część dzienna na parterze skupiona jest wokół centralnie umieszczonego kominka, tworząc przytulną atmosferę. Salon z jadalnią i otwarta kuchnia z długim blatem roboczym to idealne miejsce do wspólnego spędzania czasu. Z holu dostępna jest łazienka z prysznicem i oknem oraz dodatkowy pokój, który może pełnić funkcję sypialni, gabinetu lub pokoju dla gości. Program parteru uzupełnia jednostanowiskowy garaż dostępny z sieni i obszerne pomieszczenie gospodarcze.
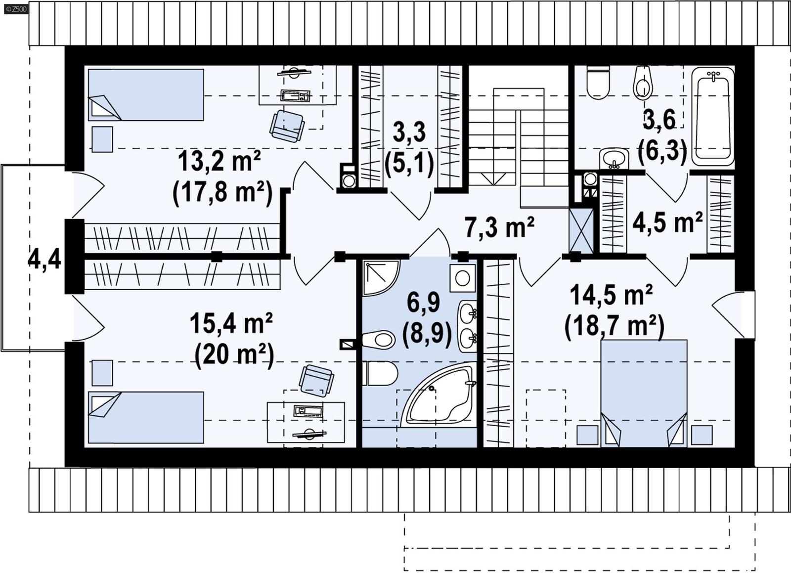
Komfortowe poddasze
Na poddaszu mieszczą się trzy wygodne sypialnie, duża łazienka i garderoba. Dwa bliźniacze pokoje łączy wspólny balkon. Master bedroom to komfortowy apartament gospodarzy z osobną garderobą i łazienką.
Zx38v1 - idealny dla:
- Rodzin 3-4 osobowych
- Inwestorów szukających taniego i funkcjonalnego domu
- Miłośników tradycyjnego wyglądu
- Osób pragnących posiadać kompaktowy dom z poddaszem














