Projekt Stodoła Chalet murowany - dom do 70m2
Projekt Chalet murowany to dom do zabudowy rekreacyjnej, dom jednorodzinny - mały dom z ogromnymi możliwościami! doskonały mały domek z dużym potencjałem. Ten mały domek to prawdziwa rewelacja architektoniczna. Prosta bryła z dużymi przeszkleniami sprawia, że dom jest jasny i przytulny. Elewacje domu wykonane są z drewna, co nadaje mu ciepłego i naturalnego wyglądu.
Funkcjonalność i wnętrze domu Chalet murowany
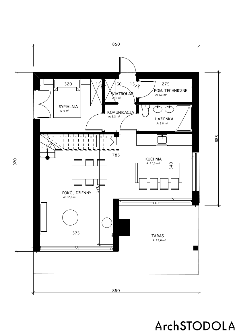
Układ wnętrza domu Chalet został starannie przemyślany. Na parterze znajduje się otwarta przestrzeń dzienna, która łączy salon, jadalnię i kuchnię. Dzięki temu dom jest bardzo przestronny i idealny do wspólnego spędzania czasu. Na parterze znajduje się również sypialnia gościnna, która może pełnić rolę gabinetu, łazienka oraz pomieszczenie gospodarcze.
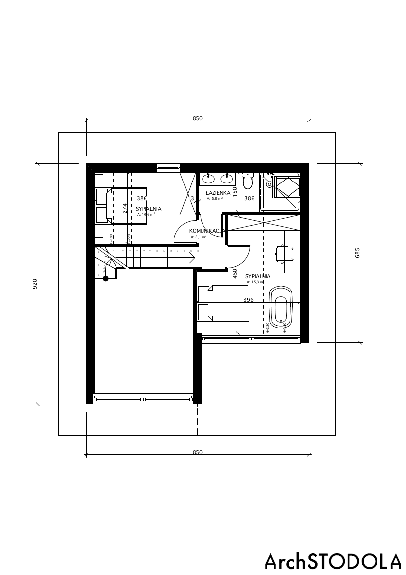
Na poddaszu domu Chalet znajdują się dwie sypialnie oraz łazienka. Dzięki temu dom jest idealny dla rodziny z dziećmi lub dla osób, które chcą mieć dodatkowe miejsce do spania gości.
Dom "Stodoła Chalet" to doskonały wybór dla osób, które poszukują małego i funkcjonalnego domu z dużym potencjałem. Dom jest prosty w budowie, co sprawia, że jest tani w realizacji.
Dom "Stodoła Chalet" to wyjątkowy dom, który wyróżnia się na tle innych projektów. Jest to mały i tani w budowie dom, który oferuje duże możliwości aranżacji wnętrza. Dom jest idealny dla osób, które poszukują niebanalnego i przytulnego miejsca do życia.
Walory domu typu stodoła Chalet murowany
- Unikat - dom wyróżnia się na tle innych projektów.
- Prosty - dom jest prosty w budowie, co sprawia, że jest tani w realizacji.
- Cud - dom jest piękny i przytulny.
Nowoczesna stodoła, domy jednorodzinne, projekty domów z dachem dwuspadowym, projekty domów z poddaszem
















