Cudny, niebanalny, wyjątkowy dom nowoczesnej stodoły
Parterowy dom z antresolą, projekt z dachem dwuspadowym w niebanalnej estetyce architektonicznej, możliwość zabudowy poddasza, wygodna przestrzeń i piękne przeszklenia stanowią o wyjatkowości projektu
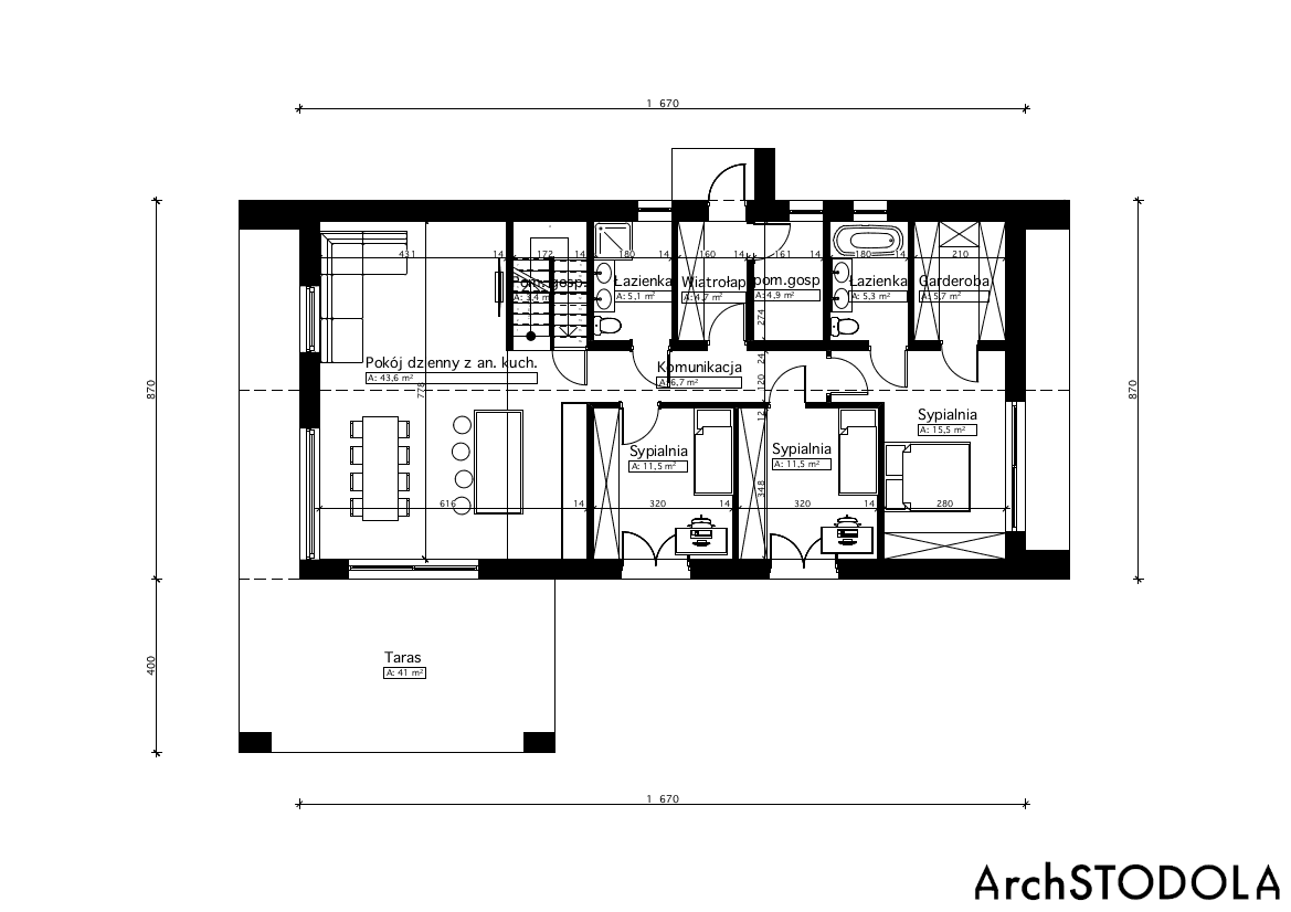
Ten cudowny dom to propozycja dla osób, które poszukują przestronnego i funkcjonalnego domu parterowego w stylu nowoczesnej stodoły. Dom o powierzchni użytkowej 138,20 m2 został zaprojektowany w stylu nowoczesnej stodoły. Prosta bryła z dużymi przeszkleniami sprawia, że dom jest jasny i przytulny. Elewacje domu wykonane są z naturalnych materiałów, takich jak drewno i tynk, co nadaje mu ponadczasowy wygląd.
Otwarta przestrzeń dzienna
Na parterze znajduje się otwarta przestrzeń dzienna, która łączy salon, jadalnię i kuchnię. Dzięki temu dom jest bardzo przestronny i idealny do wspólnego spędzania czasu. Salon jest duży i jasny, z wyjściem na taras. Jadalnia jest wygodna i przestronna, idealna na rodzinne spotkania. Kuchnia jest funkcjonalna i wyposażona w wszystkie niezbędne sprzęty.
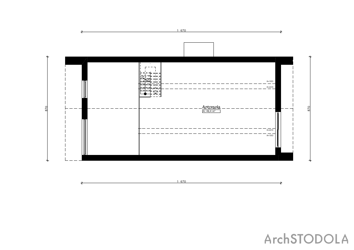
Antresola z możliwością dowolnej aranżacji
Na antresoli znajduje się przestrzeń o powierzchni 30 m2, którą można wykorzystać na różne sposoby, np. jako pokój gościnny, biuro, czy pokój zabaw dla dzieci.
Zadaszony taras z pergolą
Charakterystycznym elementem projektu jest zadaszony taras z pergolą, który jest idealnym miejscem do wypoczynku na świeżym powietrzu.
Projekt "Nasza Stodoła Parterowa" to doskonała propozycja dla osób, które poszukują wyjątkowego domu nowoczesnej stodoły. Dom wyróżnia się jasną i przytulną architekturą, ponadczasowym wyglądem oraz funkcjonalnym układem wnętrza.
Najważniejsze atuty:
- Prosta bryła z dużymi przeszkleniami
- Otwarta przestrzeń dzienna
- Antresola z możliwością dowolnej aranżacji
- Zadaszony taras z pergolą
Więcej o atutach projektu:
- Prosta bryła z dużymi przeszkleniami sprawia, że dom jest jasny i przytulny. Duże przeszklenia zapewniają dostęp do naturalnego światła, dzięki czemu wnętrze jest jasne i ciepłe.
- Otwarta przestrzeń dzienna to idealne miejsce do wspólnego spędzania czasu. Salon, jadalnia i kuchnia tworzą jedną, przestronną przestrzeń, która jest idealna do rodzinnych spotkań i imprez.
- Antresola z możliwością dowolnej aranżacji daje możliwość stworzenia dodatkowej przestrzeni do spania, pracy lub zabawy.
- Zadaszony taras z pergolą jest idealnym miejscem do wypoczynku na świeżym powietrzu. Taras jest zadaszony, dzięki czemu można korzystać z niego nawet w czasie niepogody.
Walory:
Cudny - dom zachwyca swoją jasnością i przytulnością.
Niebanalny - dom wyróżnia się nowoczesną architekturą.
Wyjątkowy - dom oferuje wiele możliwości aranżacji wnętrza.
Dom "Nasza Stodoła Parterowa z garażem" to prawdziwa perełka w kolekcji domów w stylu nowoczesnej stodoły. To dom dla osób, które poszukują wyjątkowego miejsca do życia, które będzie pasowało do każdego otoczenia.
Nowoczesna stodoła, domy jednorodzinne, projekty domów z dachem dwuspadowym, projekty domów z poddaszem





















