Projekt Nasza Stodoła Parterowa - piękna, doskonała stodoła z antresolą
Przestronny i funkcjonalny dom parterowy w stylu nowoczesnej stodoły z antresolą. Idealny wybór dla rodzin z dziećmi.
Głowne cechy projektu: projekt stodoły z antresolą, projekt domu parterowego, parterowa stodoła z możliwoscią adaptacji podddasza, parterowa stodoła z antresolą.
Funkcjonalność, układ wnętrza domu
Dom o powierzchni użytkowej 138,20 m2 został zaprojektowany w stylu nowoczesnej stodoły. Prosta bryła z dużymi przeszkleniami sprawia, że dom jest jasny i przytulny. Elewacje domu wykonane są z naturalnych materiałów, takich jak drewno i tynk, co nadaje mu ponadczasowy wygląd.
Układ wnętrza domu został starannie przemyślany. Na parterze znajduje się otwarta przestrzeń dzienna, która łączy salon, jadalnię i kuchnię. Dzięki temu dom jest bardzo przestronny i idealny do wspólnego spędzania czasu. Na parterze znajduje się również 3 sypialnie, 2 łazienki, garderoba oraz pomieszczenie gospodarcze.
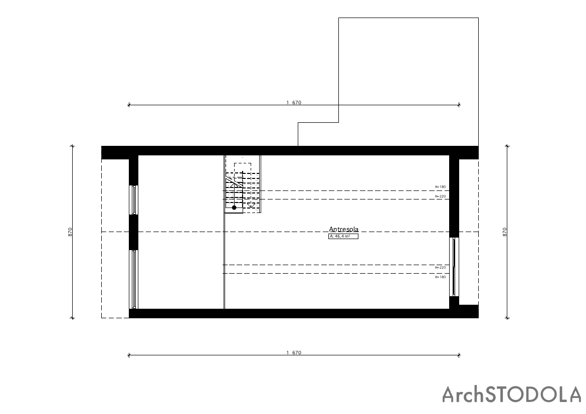
Na antresoli znajduje się przestrzeń o powierzchni 30 m2, którą można wykorzystać na różne sposoby, np. jako pokój gościnny, biuro, czy pokój zabaw dla dzieci.
Charakterystycznym elementem projektu jest zadaszony taras z pergolą, który jest idealnym miejscem do wypoczynku na świeżym powietrzu. Dodatkowo, garaż dwustanowiskowy zapewnia komfortowe parkowanie samochodu.
Cechy szczególne projektu:
- Nowoczesny styl
- Przestronny i funkcjonalny układ wnętrza
- Duże przeszklenia
- Ponadczasowa elewacja z elementami drewna
- Zadaszony taras z pergolą
- Garaż dwustanowiskowy
Projekt "Nasza Stodoła Parterowa z garażem" to doskonała propozycja dla osób, które poszukują przestronnego i funkcjonalnego domu parterowego w stylu nowoczesnej stodoły. Dom wyróżnia się jasną i przytulną architekturą, ponadczasowym wyglądem oraz funkcjonalnym układem wnętrza.
Nowoczesna stodoła, domy jednorodzinne, projekty domów z dachem dwuspadowym, projekty domów z poddaszem























