NASZA STODOŁA M - ergonomiczny dom z niebanalnie rozwiązaną przestrzenią
NASZA STODOŁA pow. użytkowa 248,9 m2 + pow. garażu, kotłowni i sauny 55,3 m2
Projekt domu z poddaszem użytkowym, który zachwyca funkcjonalnością, nowoczesnością i elegancją. Dom NASZA STODOŁA M to doskonały wybór dla osób, które cenią sobie komfort i wygodę. Projekt został starannie przemyślany, aby zapewnić mieszkańcom maksymalną ergonomię i funkcjonalność.
Funkcjonalność i ścieżka użytkowania domu
Układ funkcjonalny domu jest jasny i przejrzysty. Na parterze znajduje się strefa dzienna, w której znajduje się otwarty salon połączony z jadalnią i kuchnią. Strefa dzienna jest przestronna i jasna, dzięki dużym przeszkleniom. W kuchni znajduje się spiżarnia, która zapewnia wygodne przechowywanie produktów spożywczych. Na parterze znajduje się również sypialnia gościnna, która może pełnić rolę gabinetu, łazienka oraz pralnia.
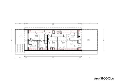
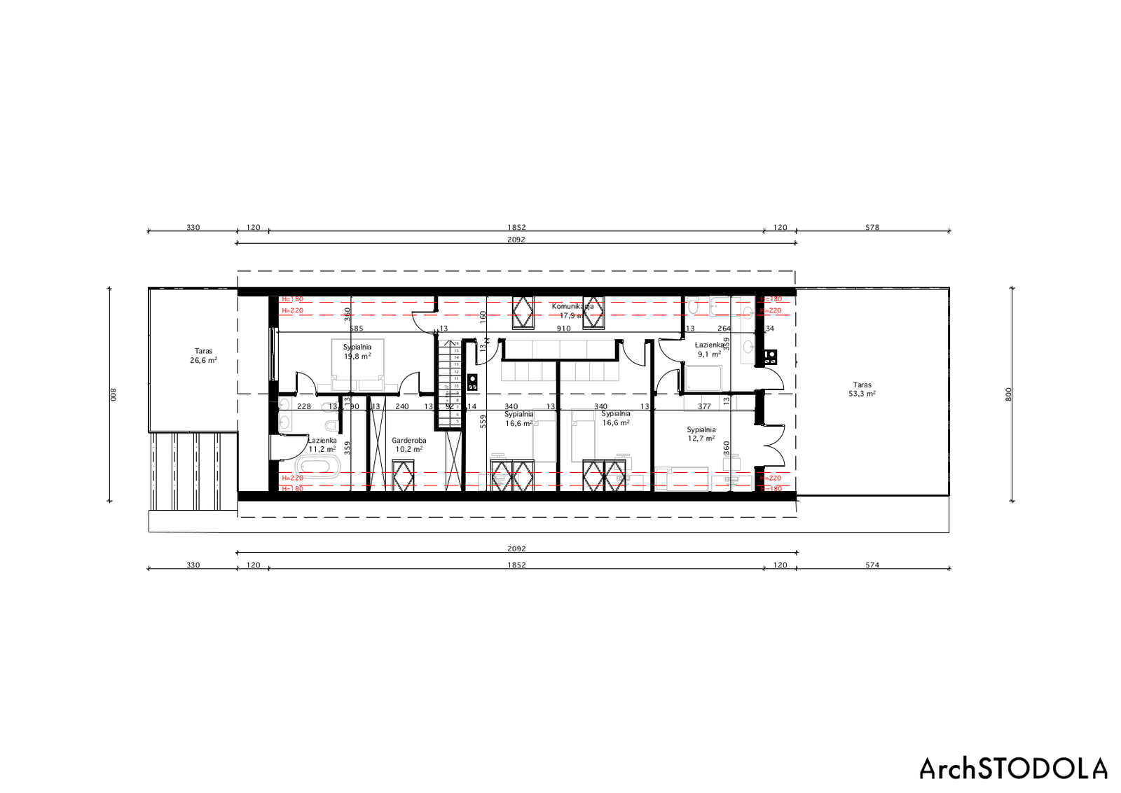
Poddasze to strefa nocna, w której znajdują się cztery sypialnie, garderoba oraz dwie łazienki. W korytarzu na poddaszu wygospodarowano miejsce na dużą szafę.
Dom wyposażony jest w nowoczesne rozwiązania techniczne, które zapewniają jego energooszczędność i komfort użytkowania. W standardzie znajdują się m.in.: pompa ciepła, rekuperacja oraz ogrzewanie podłogowe.
Charakterystycznym elementem projektu jest zadaszony taras z pergolą i ażurowymi elementami. Taras wychodzi na ogród, zapewniając wypoczynek na świeżym powietrzu. Charakterystycznym elementem jest również wysunięcie drzwi wejściowych, które nadają budynkowi oryginalny wygląd.
Oto kilka szczegółów, które sprawiają, że dom NASZA STODOŁA M jest wyjątkowy:
- Parter w ciekawym układzie funkcjonalnym: Otwarta przestrzeń dzienna łączy w sobie salon, jadalnię i kuchnię. Dzięki temu domownicy mogą swobodnie spędzać czas razem, nie tracąc kontaktu wzrokowego. W kuchni znajduje się spiżarnia, która zapewnia wygodne przechowywanie produktów spożywczych. Na parterze znajduje się również sypialnia gościnna, która może pełnić rolę gabinetu, łazienka oraz pralnia. Taki układ funkcjonalny zapewnia wyraźnie określoną ścieżkę użytkowania i sprawia, że dom jest bardzo wygodny w codziennym użytkowaniu.
- Obłędnie dużo przestrzeni na poddaszu: Poddasze to strefa nocna, w której znajdują się cztery sypialnie, garderoba oraz dwie łazienki. W korytarzu na poddaszu wygospodarowano miejsce na dużą szafę. Taki układ zapewnia komfort i wygodę dla wszystkich domowników.
- Niebanalnie rozwiązana przestrzeń: Dom NASZA STODOŁA M zachwyca niebanalnie rozwiązaną przestrzenią. Duże przeszklenia zapewniają doskonałe doświetlenie wnętrz, a wysunięcie drzwi wejściowych nadaje budynkowi oryginalny wygląd.
Podsumowując, dom NASZA STODOŁA M to ergonomiczny dom z niebanalnie rozwiązaną przestrzenią. Projekt został starannie przemyślany, aby zapewnić mieszkańcom maksymalny komfort i wygodę. Dom jest nowoczesny, elegancki i zachwyca swoim wyglądem.
Dom NASZA STODOŁA M to doskonały wybór dla osób, które szukają nowoczesnego, funkcjonalnego i komfortowego domu.
Nowoczesna stodoła, domy jednorodzinne, projekty domów z dachem dwuspadowym, projekty domów z poddaszem




















