Projekt NASZA STODOŁA M - wyjątkowy dom o arcyfunkcjonalnej powierzchni
Zachwycający dom z poddaszem. Dom z 5 pokojami i ustawnymi pomieszczeniami, bardzo przemyślanie rozwiązana przestrzeń. Projekt domu z poddaszem użytkowym w stylu nowoczesnej stodoły o wybitnie urządzonym wnętrzu. Twoja ścieżka użytkowania domu będzie wygodna i zorganizowana z dbałoscią o każdą przestrzeń!
Nowoczesna stodoła to idealny wybór dla osób, które cenią sobie minimalizm, funkcjonalność i nowoczesny design. Projekt NASZA STODOŁA M to doskonały przykład tego, jak można połączyć te wszystkie cechy w jednym domu.
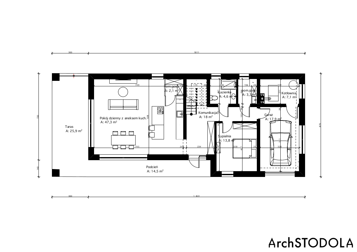
Plan domu i aranżacja funkcjonalna
Budynek o powierzchni 200 m2 został zaprojektowany na planie prostokąta. Bryła jest prosta i minimalistyczna, z dużymi przeszkleniami, które zapewniają doskonałe doświetlenie wnętrz. Dach dwuspadowy pokryty jest blachą na rąbek stojący o kącie nachylenia 40o.
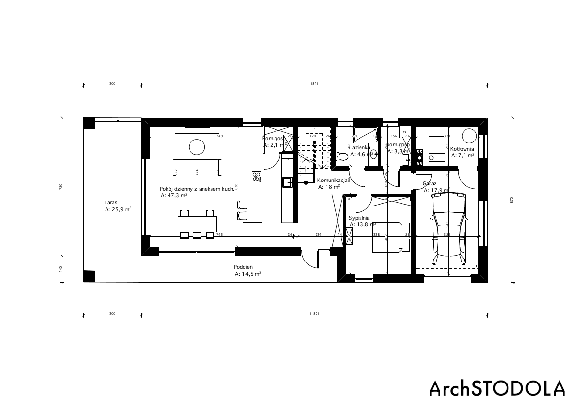
Układ funkcjonalny domu jest przemyślany i funkcjonalny. Na parterze znajduje się strefa dzienna, w której znajduje się otwarty salon połączony z jadalnią i kuchnią. Przy kuchni znajduje się spiżarnia, a na parterze znajduje się również sypialnia gościnna, która może pełnić rolę gabinetu, łazienka oraz pralnia.
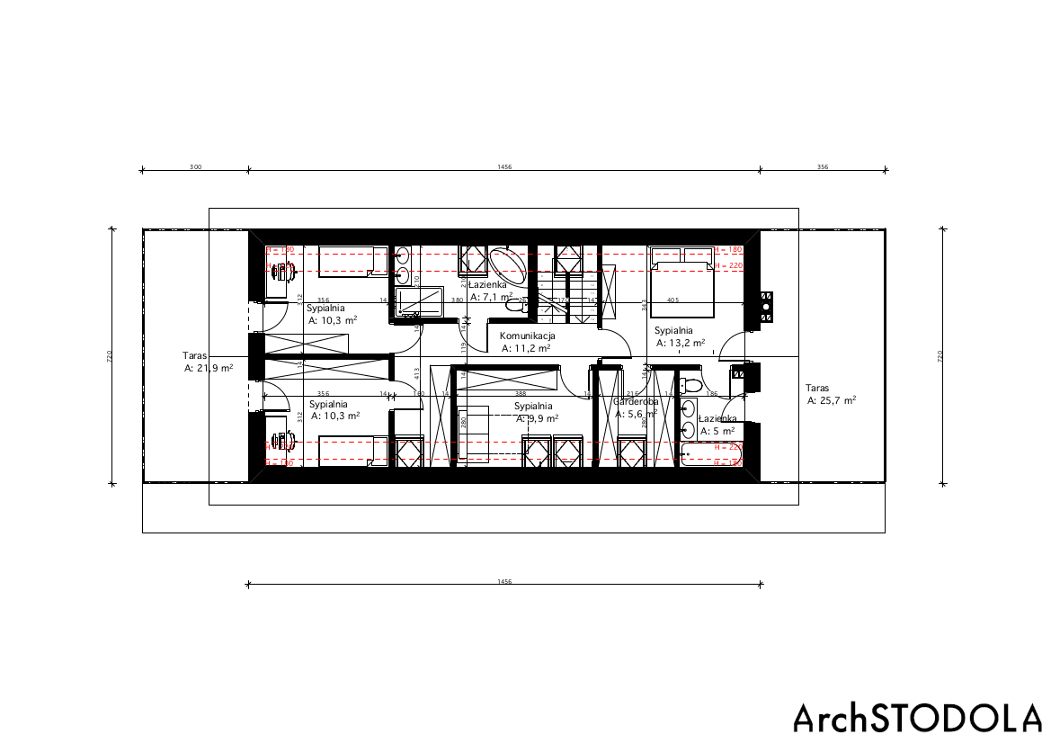
Poddasze to strefa nocna, w której znajdują się cztery sypialnie, garderoba oraz dwie łazienki. W korytarzu na poddaszu wygospodarowano miejsce na dużą szafę.
Energooszczędność domu:
Dom wyposażony jest w nowoczesne rozwiązania techniczne, które zapewniają jego energooszczędność. W standardzie znajdują się m.in.: pompa ciepła, rekuperacja oraz ogrzewanie podłogowe.
Charakterystycznym elementem projektu jest zadaszony taras z pergolą i ażurowymi elementami. Taras wychodzi na ogród, zapewniając wypoczynek na świeżym powietrzu. Charakterystycznym elementem jest również wysunięcie drzwi wejściowych, które nadają budynkowi oryginalnego wyglądu.
NASZA STODOŁA M to wymarzony dom dla rodzin z dziećmi lub dla osób, które prowadzą aktywny tryb życia. Dom jest funkcjonalny, wygodny i zapewnia komfortowe warunki do życia.
Nowoczesna stodoła, domy jednorodzinne, projekty domów z dachem dwuspadowym, projekty domów z poddaszem

















