Piękna perełka projektowa - Nasza Stodoła S powiększona
Piękny projekt domu z poddaszem, tani w budowie, ergonomiczny w użytkowaniu. Wyjątkowy design: Prosta bryła budynku z dużymi przeszkleniami sprawia, że dom jest nowoczesny i stylowy. Funkcjonalny układ.
Projekt Nasza Stodoła S powiększona jest dla Ciebie!
Elewacja i bryła & wnętrze:
Dom Nasza Stodoła S powiększona to nowoczesny dom w stylu stodoły. Prosta bryła budynku z dużymi przeszkleniami sprawia, że dom jest jasny i przestronny. Elewacja wykonana jest z tynku i drewna, co nadaje jej naturalny i ciepły charakter.
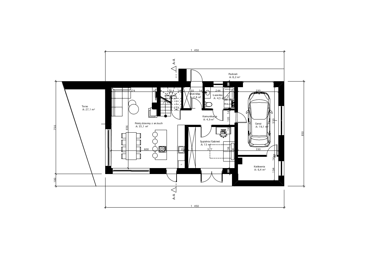
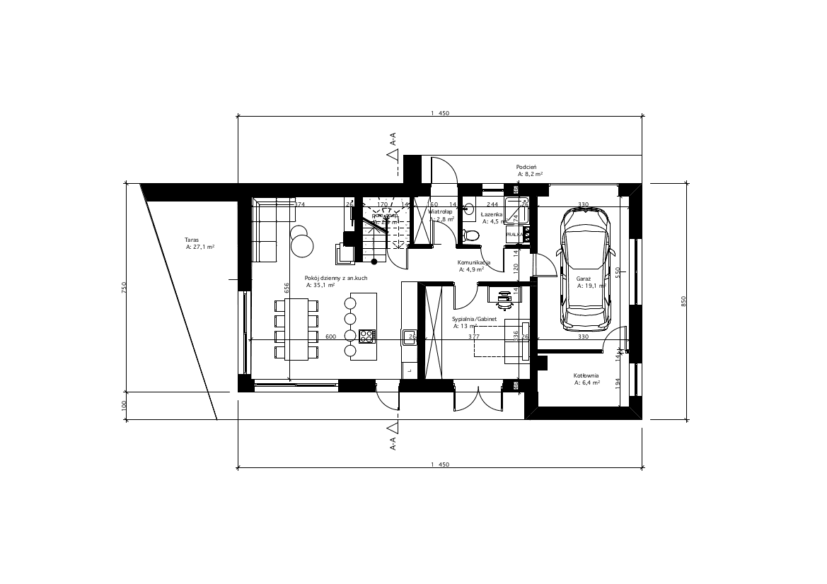
We wnętrzu domu Nasza Stodoła S powiększona dominuje przestronna strefa dzienna, składająca się z salonu, kuchni i jadalni. Salon o powierzchni 37 m² jest jasnym i ciepłym pomieszczeniem, z dużymi przeszkleniami wychodzącymi na ogród. Kuchnia o powierzchni 13 m² jest funkcjonalnie zaprojektowana i wyposażona w niezbędne sprzęty AGD.
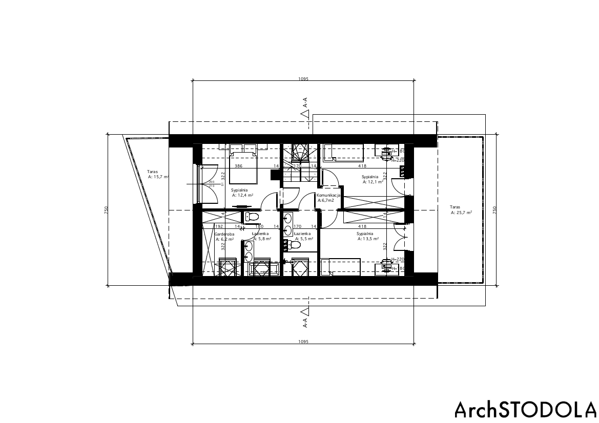
W części prywatnej domu znajdują się trzy sypialnie, garderoba i dwie łazienki. Sypialnia master bedroom o powierzchni 17 m² posiada własną łazienkę i garderobę.
Funkcjonalność ogólnie:
Dom Nasza Stodoła S powiększona to projekt funkcjonalny, który zapewnia komfortowe warunki do życia dla nawet 5 osób. W domu znajduje się wszystko, co niezbędne do codziennego funkcjonowania, a także przestrzeń do relaksu i wypoczynku.
Zalety projektu:
- Piękny wygląd: Dom Nasza Stodoła S powiększona to prawdziwa perełka projektowa. Prosta bryła budynku z dużymi przeszkleniami sprawia, że dom jest nowoczesny i stylowy. Elewacja wykonana z tynku i drewna nadaje mu naturalny i ciepły charakter.
- Funkcjonalność: Dom zapewnia komfortowe warunki do życia dla nawet 5 osób. Przestronna strefa dzienna, trzy sypialnie, garderoba i dwie łazienki to wszystko, czego potrzebujesz do szczęśliwego życia.
- Niska cena: Dom Nasza Stodoła S powiększona to doskonała propozycja dla osób, które szukają pięknego i funkcjonalnego domu w rozsądnej cenie.
Dom Nasza Stodoła S powiększona to strzał w dziesiątkę dla osób, które szukają pięknego i funkcjonalnego domu, który będzie idealnym miejscem do życia dla ich rodziny.
Nowoczesna stodoła, domy jednorodzinne, projekty domów z dachem dwuspadowym, projekty domów z poddaszem











