Słoneczny wariant E - dom dla rodziny i przyjaciół
Projekt domu Słoneczny wariant E to doskonały wybór dla rodzin z dziećmi lub par, które szukają wygodnego i funkcjonalnego domu. Dom jest również dobrym rozwiązaniem dla osób, które chcą wynająć dom na wakacje lub weekendy.
Zalety projektu
Duża powierzchnia użytkowa - dom o powierzchni użytkowej 89,78 m2 zapewnia komfortowe warunki do życia dla rodziny lub grupy przyjaciół.
Funkcjonalny układ - dom jest podzielony na strefę dzienną i nocną, co zapewnia wygodę i prywatność.
Estetyczny wygląd - dom o prostej bryle i nowoczesnym wykończeniu będzie się dobrze prezentował w każdym otoczeniu.
Wnętrze domu
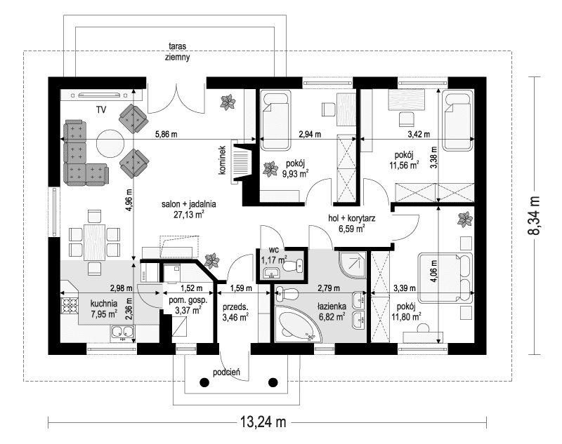
Na parterze domu znajduje się strefa dzienna, w której znajduje się salon z jadalnią, otwarta kuchnia i łazienka. Salon jest przestronny i jasny, dzięki dużym oknom wychodzącym na ogród. Kuchnia jest funkcjonalna i wyposażona w niezbędne sprzęty. Łazienka jest wygodna i wyposażona w prysznic, umywalkę i toaletę.
Na piętrze znajduje się strefa nocna, w której znajdują się trzy sypialnie i łazienka. Sypialnie są przestronne i jasne, dzięki dużym oknom. Łazienka jest wygodna i wyposażona w prysznic, umywalkę i toaletę.
Elewacje domu
Elewacje domu są wykonane z drewna i tynku. Drewno nadaje domowi ciepły i naturalny wygląd. Tynk natomiast chroni drewno przed działaniem czynników atmosferycznych.
Dach domu jest dwuspadowy o kącie nachylenia 35 stopni. Dach jest pokryty blachą.
Taras
Do domu przylega niezadaszony taras, który jest idealnym miejscem do wypoczynku na świeżym powietrzu. Taras zapewnia dostęp do ogrodu i jest doskonałym miejscem do grillowania lub spotkań z przyjaciółmi.
Słoneczny wariant E to funkcjonalny i estetyczny dom, który zapewnia komfortowe warunki do życia dla rodziny lub grupy przyjaciół. Dom jest również dobrym rozwiązaniem dla osób, które chcą wynająć dom na wakacje lub weekendy.














