Projekt domu NewHouse 715 G2 - nowoczesny dom parterowy w stylu stodoły
Dom parterowy NewHouse 715 G2 to wyjątkowy projekt, który łączy w sobie nowoczesność z urokiem stylu stodoły. Prosta bryła, duże okna i drewniane detale tworzą harmonijną całość, która zachwyci każdego miłośnika architektury.
Jeśli szukasz wyjątkowego projektu domu parterowego, który jest funkcjonalny, przestronny i energooszczędny, to NewHouse 715 G2 jest idealną propozycją dla Ciebie.
Architektura domu NewHouse 715 G2:
Dom składa się z dwóch brył połączonych stropodachem. Pierwsza bryła to część mieszkalna z dachem dwuspadowym, a druga to dwustanowiskowy garaż z dachem płaskim. Fasada domu jest minimalistyczna i elegancka, z dużymi przeszkleniami, które zapewniają dostęp do światła dziennego. Drewniane detale podkreślają styl stodoły i nadają budynkowi ciepłego charakteru.
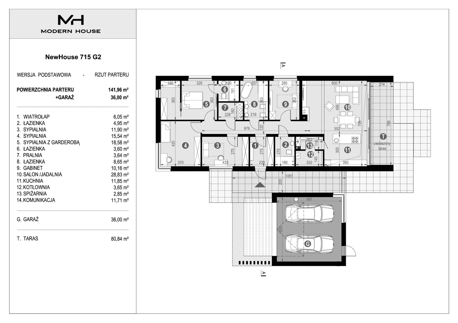
Funkcjonalność domu NewHouse 715 G2:
Wnętrze domu jest przestronne i funkcjonalnie zaprojektowane. Strefa dzienna składa się z salonu, kuchni i jadalnie. Salon z wysokim sufitem i przeszkloną ścianą jest jasny i przytulny. Kuchnia jest przestronna i wyposażona w nowoczesny sprzęt. Jadalnia jest idealnym miejscem na wspólne posiłki z rodziną i przyjaciółmi.
Strefa nocna składa się z czterech sypialni, każdej z własną łazienką. Sypialnia master jest szczególnie przestronna i wyposażona w garderobę.
W domu znajduje się również garaż dwustanowiskowy, pralnia, spiżarnia oraz kotłownia.
Taras - miejsce do relaksu wyjątkowo zaplanowane w NH 715 G2
Obszerny, częściowo zadaszony taras to idealne miejsce do relaksu na świeżym powietrzu. Możesz tam wypić poranną kawę, zjeść obiad na świeżym powietrzu lub po prostu odpocząć po ciężkim dniu.
Dlaczego warto wybrać projekt domu parterowego NewHouse 715 G2?
- Wyjątkowy styl - ten dom to połączenie nowoczesnej elegancji z urokiem stylu stodoły. Prosta bryła, duże okna i drewniane detale tworzą harmonijną całość, która zachwyca swoim wyglądem.
- Funkcjonalność - wszystkie pomieszczenia znajdują się na jednym poziomie, dzięki czemu dom jest wygodny w użytkowaniu, zwłaszcza dla osób starszych i niepełnosprawnych, rodzin z dziećmi.
- Przestronny - powierzchnia użytkowa domu to 142 m2, dzięki czemu każdy znajdzie w nim miejsce dla siebie.
- Energooszczędność - dom został wyposażony w nowoczesne systemy grzewcze i wentylacyjne, dzięki czemu jest ekonomiczny w eksploatacji.
Nowoczesny dom parterowy w stylu stodoły to styl, który nigdy nie wychodzi z mody. Jest prosty, minimalistyczny i elegancki. Dom w tym stylu będzie doskonale prezentował się zarówno na działce w mieście, jak i na wsi.
Opinia projekt NewHouse 715 G2:
"Piękny dom! Jest to dom, który spełnia wszystkie moje oczekiwania. Jest funkcjonalny, stylowy i energooszczędny. Jest to dom, który będzie idealnym miejscem do życia dla mnie i mojej rodziny. Ekstra, wow - słów mi brak" - Aśka
Nowoczesne projekty domów


























