Projekt domu piętrowego z dużym garażem dwustanowiskowym - Boss Bravo
Projekt domu piętrowego z dużym garażem dwustanowiskowym Boss Bravo to propozycja dla osób, które szukają nowoczesnego, komfortowego i funkcjonalnego domu. Dom spełni oczekiwania nawet najbardziej wymagających inwestorów.
Projekt domu piętrowego Boss Bravo - komfort i elegancja w jednym
Charakterystyka projektu
Dom Boss Bravo ma powierzchnię użytkową 240 m2 i składa się z dwóch kondygnacji. Na parterze znajduje się przestronny salon z wyjściem na taras, kuchnia z wyspą, jadalnia, pokój gościnny, łazienka i garaż dwustanowiskowy. Na piętrze znajdują się cztery sypialnie, z których jedna to sypialnia master z łazienką i garderobą.
Na parterze znajduje się duży salon z kominkiem, kuchnia z wyspą, jadalnia, łazienka i garaż. Salon jest otwarty na kuchnię i jadalnię, dzięki czemu wnętrze jest przestronne i jasne. Kuchnia jest wyposażona w dużą wyspę, która zapewnia wygodną przestrzeń do gotowania i spożywania posiłków. Jadalnia może pomieścić do 10 osób. Łazienka jest przestronna i wygodna. Garaż jest dwustanowiskowy i ma powierzchnię 40 m².
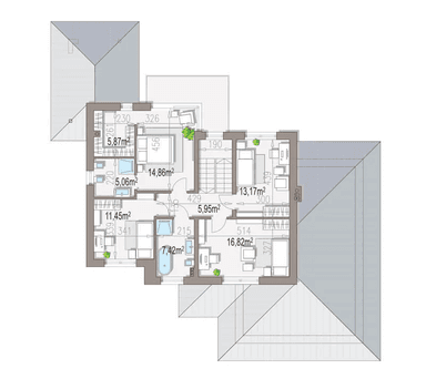
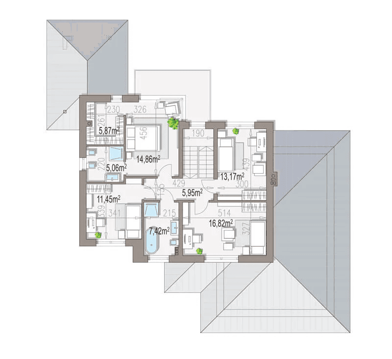
Na piętrze znajdują się cztery sypialnie, dwie łazienki i garderoba. Wszystkie sypialnie są duże i wygodne. Łazienki są wyposażone w wannę i prysznic. Garderoba zapewnia miejsce do przechowywania ubrań i akcesoriów.
Dom jest funkcjonalny i wygodny w użytkowaniu. Na parterze znajduje się wszystko, co potrzebne do codziennego życia. Na piętrze znajdują się wygodne sypialnie i łazienki.
Wygodny i przestronny dom dla rodziny
Projekt piętrowego domu jednorodzinnego Boss Bravo to doskonała propozycja dla rodzin, które cenią sobie komfort i przestronność. Dom o powierzchni użytkowej 250 m² oferuje aż 5 sypialni, duży salon z wyjątkowym widokiem na ogród, przestronną kuchnię z wyspą oraz wygodny garaż dwustanowiskowy.
Wygodne wnętrze
Parter domu przeznaczony jest na strefę dzienną. Znajduje się tu duży salon z wyjściem na taras, kuchnia z wyspą oraz jadalnia. Salon jest jasny i przestronny, dzięki dużym przeszkleniom wychodzącym na ogród. Kuchnia jest wygodna i funkcjonalna, z dużą ilością blatów roboczych i miejscami do przechowywania. Jadalnia może pomieścić nawet 10 osób.
Dom jest energooszczędny, dzięki zastosowaniu nowoczesnych rozwiązań, takich jak:
- izolacja termiczna o wysokim współczynniku przewodzenia ciepła
- wentylacja mechaniczna z rekuperacją
- ogrzewanie podłogowe
Atuty projektu domu Boss Bravo
- Przestronna bryła domu zapewnia dużo naturalnego światła
- Wygodne wnętrze z dużym salonem, wygodną kuchnią i 5 sypialniami
- Szerszy, wygodniejszy garaż dwustanowiskowy
- Możliwość aranżacji przestrzeni zgodnie z indywidualnymi potrzebami
Projekty domów jednorodzinnych i bliźniaczych


























